














Book your tour. Save an average of $18,473. We'll handle the rest.
- Confirmed tours
- Get matched & compare top deals
- Expert help, no pressure
- No added fees
Estimated value based on Jome data, T&C apply




















Why tour with Jome?
- No pressure toursTour at your own pace with no sales pressure
- Expert guidanceGet insights from our home buying experts
- Exclusive accessSee homes and deals not available elsewhere
Jome is featured in
- Single-Family
- Under construction
- $124.84/sqft
- $65/monthly HOA
Home description
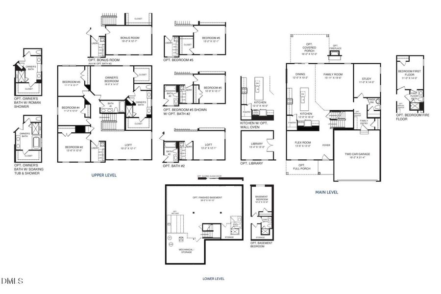
TO BE BUILT: Welcome to Ryan Homes at Highland Ridge in Wake County, where spacious homes offer flexible living and high-end finishes, including a finished basement, first-floor guest suite, and over 4,000 square feet. The Lehigh is a thoughtfully designed 4 bedroom, 3.5 bath home with a 2-car garage and 4,033 square feet of living space. Inside, you'll find white cabinets, quartz countertops, stainless steel appliances, luxury vinyl plank and carpet throughout the home, and a covered porch. The open layout connects the kitchen, dining, and living areas, creating a welcoming space for everyday life and entertaining. Fully sodded yards, city water and sewer, natural gas, and fiber Internet are all included. Schedule your visit today and start your homebuying journey.
Esteem Properties, MLS 10131332
May also be listed on the Ryan Homes website
Information last verified by Jome: Today at 10:11 AM (December 5, 2025)
Home highlights
Raleigh’s premier arena hosting NHL games, concerts, and events near NC State and suburban neighborhoods.
Book your tour. Save an average of $18,473. We'll handle the rest.
We collect exclusive builder offers, book your tours, and support you from start to housewarming.
- Confirmed tours
- Get matched & compare top deals
- Expert help, no pressure
- No added fees
Estimated value based on Jome data, T&C apply
Home details
- Property status:
- Under construction
- Lot size (acres):
- 0.16
- Size:
- 4,033 sqft
- Stories:
- 2
- Beds:
- 4
- Baths:
- 3
- Half baths:
- 1
- Garage spaces:
- 2
Construction details
- Builder Name:
- Ryan Homes
- Year Built:
- 2026
- Roof:
- Shingle Roofing
Home features & finishes
- Construction Materials:
- Cement
- Cooling:
- Central Air
- Flooring:
- Vinyl FlooringCarpet Flooring
- Foundation Details:
- Slab
- Garage/Parking:
- GarageFront Entry Garage/ParkingAttached Garage
- Interior Features:
- Walk-In Closet
- Kitchen:
- Stainless Steel AppliancesQuartz countertopKitchen Island
- Laundry facilities:
- Laundry Facilities On Upper LevelUtility/Laundry Room
- Property amenities:
- BasementWalk-in ShowerFireplacePorch
Utility information
- Heating:
- Gas Heating

Community details
Highland Ridge
by Ryan Homes, Willow Spring, NC
- 11 homes
- 7 plans
- 1,823 - 4,755 sqft
View Highland Ridge details
Community amenities
- Sidewalks Available
More homes in Highland Ridge
Floor plans in Highland Ridge
About the builder - Ryan Homes
Neighborhood
Home address
Schools in Wake County Schools
GreatSchools’ Summary Rating calculation is based on 4 of the school’s themed ratings, including test scores, student/academic progress, college readiness, and equity. This information should only be used as a reference. Jome is not affiliated with GreatSchools and does not endorse or guarantee this information. Please reach out to schools directly to verify all information and enrollment eligibility. Data provided by GreatSchools.org © 2025
Places of interest
Getting around
Natural hazards risk
Climate hazards can impact homes and communities, with risks varying by location. These scores reflect the potential impact of natural disasters and climate-related risks on Wake County
Provided by FEMA

Considering this home?
Our expert will guide your tour, in-person or virtual
Need more information?
Text or call (888) 486-2818
Financials
Estimated monthly payment
Similar homes nearby
Recently added communities in this area
Nearby communities in Angier
New homes in nearby cities
More New Homes in Angier, NC
Esteem Properties, MLS 10131332
© 2025 Doorify MLS, Inc. of North Carolina. All rights reserved. Brokers make an effort to deliver accurate information, but buyers should independently verify any information on which they will rely in a transaction. The listing broker shall not be responsible for any typographical errors, misinformation, or misprints, and they shall be held totally harmless from any damages arising from reliance upon this data. This data is provided exclusively for consumers’ personal, non-commercial use. Some IDX listings have been excluded from this IDX display. Closed (sold) listings may have been listed and/or sold by a real estate firm other than the firm(s) featured on this website. Closed data is not available until the sale of the property is recorded in the MLS. Home sale data is not an appraisal, CMA, competitive or comparative market analysis, or home valuation of any property. Listings marked with an icon are provided courtesy of the Doorify MLS, Inc. of North Carolina, Internet Data Exchange Database.
Read moreLast checked Dec 5, 10:10 am
- Home
- New homes
- North Carolina
- Raleigh-Durham Area
- Wake County
- Angier
- Highland Ridge
- 849 Walker Ridge Wy, Angier, NC 27592









































