




Book your tour. Save an average of $18,473. We'll handle the rest.
- Confirmed tours
- Get matched & compare top deals
- Expert help, no pressure
- No added fees
Estimated value based on Jome data, T&C apply
- 5 bd
- 3.5 ba
- 2,521 sqft
682 Heart Pine Ave, Wilmington, NC 28411
Why tour with Jome?
- No pressure toursTour at your own pace with no sales pressure
- Expert guidanceGet insights from our home buying experts
- Exclusive accessSee homes and deals not available elsewhere
Jome is featured in
- Single-Family
- Ready by January 2026
- $237.66/sqft
- 102 days on Jome
Home description
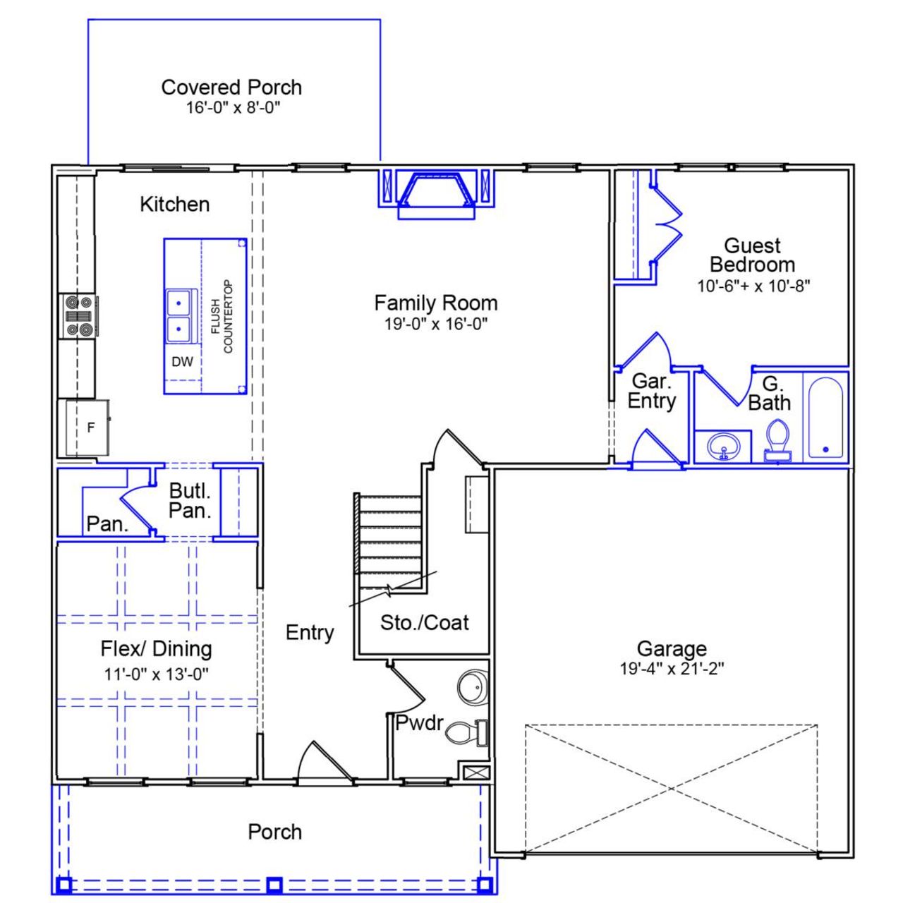
The Nottely is a two-story home with five bedrooms and three-and-one-half baths and a fireplace. Upon entering, you will notice a flex space that can be used as a dining room. The open concept kitchen leads to a beautiful sunroom and overlooks the great room and patio. There is a walk-in pantry and a butler's pantry for entertaining. This plan also has a fifth bedroom that can be used as a guest room on the first floor. A powder room and large storage closet complete the first floor. The primary suite is on the second floor with a large walk-in tile shower and two walk-in closets and its own balcony! There are also three additional bedrooms and a bonus room, a full bath, linen closet, and laundry room to complete the second floor. Outside, enjoy fully sodded front and back yards with irrigation.
May also be listed on the Mungo Homes website
Information last verified by Jome: Today at 6:05 AM (December 30, 2025)
Home highlights
Book your tour. Save an average of $18,473. We'll handle the rest.
We collect exclusive builder offers, book your tours, and support you from start to housewarming.
- Confirmed tours
- Get matched & compare top deals
- Expert help, no pressure
- No added fees
Estimated value based on Jome data, T&C apply
Home details
- Property status:
- Under construction
- Size:
- 2,521 sqft
- Stories:
- 2
- Beds:
- 5
- Baths:
- 3
- Half baths:
- 1
- Garage spaces:
- 2
Construction details
- Builder Name:
- Mungo Homes
- Completion Date:
- January, 2026
Home features & finishes
- Garage/Parking:
- Garage
- Rooms:
- Primary Bedroom Upstairs

Community details
Indigo at Abbey Preserve
by Mungo Homes, Wilmington, NC
- 6 homes
- 14 plans
- 1,671 - 4,009 sqft
View Indigo at Abbey Preserve details
More homes in Indigo at Abbey Preserve
Floor plans in Indigo at Abbey Preserve
About the builder - Mungo Homes
Neighborhood
Home address
- City:
- Wilmington
- County:
- Pender
- Zip Code:
- 28411
Schools in Pender County Schools
- Grades PK-08Privatest mark catholic school7.4 mi1013 eastwood rdna
GreatSchools’ Summary Rating calculation is based on 4 of the school’s themed ratings, including test scores, student/academic progress, college readiness, and equity. This information should only be used as a reference. Jome is not affiliated with GreatSchools and does not endorse or guarantee this information. Please reach out to schools directly to verify all information and enrollment eligibility. Data provided by GreatSchools.org © 2025
Places of interest
Getting around
Noise level
A Soundscore™ rating is a number between 50 (very loud) and 100 (very quiet) that tells you how loud a location is due to environmental noise.
Natural hazards risk
Climate hazards can impact homes and communities, with risks varying by location. These scores reflect the potential impact of natural disasters and climate-related risks on Pender County
Provided by FEMA

Considering this home?
Our expert will guide your tour, in-person or virtual
Need more information?
Text or call (888) 486-2818
Financials
Estimated monthly payment
Similar homes nearby
Recently added communities in this area
Nearby communities in Wilmington
New homes in nearby cities
More New Homes in Wilmington, NC
- Jome
- New homes search
- North Carolina
- Pender County
- Wilmington
- Indigo at Abbey Preserve
- 682 Heart Pine Ave, Wilmington, NC 28411

































