








Book your tour. Save an average of $18,473. We'll handle the rest.
We collect exclusive builder offers, book your tours, and support you from start to housewarming.
- Confirmed tours
- Get matched & compare top deals
- Expert help, no pressure
- No added fees
Estimated value based on Jome data, T&C apply












- 4 bd
- 3 ba
- 2,059 sqft
610 Heart Pine Ave, Wilmington, NC 28411
Why tour with Jome?
- No pressure toursTour at your own pace with no sales pressure
- Expert guidanceGet insights from our home buying experts
- Exclusive accessSee homes and deals not available elsewhere
Jome is featured in
- Single-Family
- Ready by July 2026
- $319.53/sqft
- 51 days on Jome
Builder deals available
- TOP-TIER DEAL
Any loan type
$46,340 est. value- Rate buydown from 3.49% (1–5 year) with 5.422% APR and 3.5% down payment
FHA 30 Year Fixed
$34,280 est. value- Rate buydown from 2.99% (1 year), 3.99% (2 year), 4.99% (3–30 year) with 5.895% APR, 3.5% down payment, and 720 credit score
Any loan type
$20,000 est. value- $20,000 flex cash
FHA 30 Year Fixed
$18,730 est. value- Fixed rate from 4.99% with 5.798% APR, 3.5% down payment, and 780 credit score
Deals may change and are not guaranteed. Some deals apply to specific homes or plans. Not a financing offer. Eligibility varies by lender. Please verify details.
Home description
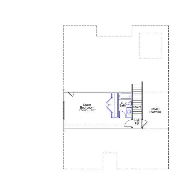
This Bates II plan features four bedrooms, three full bathrooms, and a three-car garage. Enter through the front door and continue down the hallway into an open great room, eat-in area, and kitchen. A large kitchen island provides additional seating and overlooks the great room. The great room showcases a boxed ceiling, fireplace, and access to the covered porch. The primary suite is located at the back of the home, separate from the secondary bedrooms for added privacy. Two secondary bedrooms are positioned at the front of the home and share a hall bathroom. A second story provides even more space with a spacious guest suite. Additional upgrades in this home include a gourmet kitchen with a gas cooktop, wall ovens, and upgraded cabinetry.
May also be listed on the Mungo Homes website
Information last verified by Jome: Today at 5:41 AM (May 13, 2026)
Book your tour. Save an average of $18,473. We'll handle the rest.
We collect exclusive builder offers, book your tours, and support you from start to housewarming.
- Confirmed tours
- Get matched & compare top deals
- Expert help, no pressure
- No added fees
Estimated value based on Jome data, T&C apply
Home details
- Property status:
- Under construction
- Size:
- 2,059 sqft
- Stories:
- 1
- Beds:
- 4
- Baths:
- 3
- Garage spaces:
- 3
Construction details
- Builder Name:
- Mungo Homes
- Completion Date:
- July, 2026
Home features & finishes
- Garage/Parking:
- Garage
- Rooms:
- Primary Bedroom On MainPrimary Bedroom Downstairs

Get a consultation with our New Homes Expert
- See how your home builds wealth
- Plan your home-buying roadmap
- Discover hidden gems

Community details
Indigo at Abbey Preserve
by Mungo Homes, Wilmington, NC
- 5 homes
- 14 plans
- 1,671 - 4,009 sqft
View Indigo at Abbey Preserve details
More homes in Indigo at Abbey Preserve
- Home at address 182 Foundry Dr, Wilmington, NC 28411

Edisto
Savings$619,101
- 4 bd
- 3 ba
- 2,339 sqft
182 Foundry Dr, Wilmington, NC 28411
- Home at address 31 Bowen Ct, Wilmington, NC 28411

Nantahala II
Savings$639,659
- 4 bd
- 3.5 ba
- 2,580 sqft
31 Bowen Ct, Wilmington, NC 28411
- Home at address 591 Heart Pine Ave, Wilmington, NC 28411

Nantahala II
Savings$649,763
- 4 bd
- 2.5 ba
- 2,503 sqft
591 Heart Pine Ave, Wilmington, NC 28411
- Home at address 637 Heart Pine Ave, Wilmington, NC 28411

Nottely
Savings$659,303
- 5 bd
- 2.5 ba
- 2,491 sqft
637 Heart Pine Ave, Wilmington, NC 28411
Floor plans in Indigo at Abbey Preserve
- View details for Edisto - Vanguard Collection

Edisto - Vanguard Collection
$499,990+- 4 bd
- 2.5 ba
- 2,285 sqft
- View details for Nottely - Vanguard Collection

Nottely - Vanguard Collection
$505,990+- 4 bd
- 2.5 ba
- 2,490 sqft
About the builder - Mungo Homes
Neighborhood
Home address
- City:
- Wilmington
- County:
- Pender
- Zip Code:
- 28411
Schools in Pender County Schools
- Grades PK-08Privatest mark catholic school7.5 mi1013 eastwood rdna
GreatSchools’ Summary Rating calculation is based on 4 of the school’s themed ratings, including test scores, student/academic progress, college readiness, and equity. This information should only be used as a reference. Jome is not affiliated with GreatSchools and does not endorse or guarantee this information. Please reach out to schools directly to verify all information and enrollment eligibility. Data provided by GreatSchools.org © 2025
Places of interest
Getting around
Noise level
A Soundscore™ rating is a number between 50 (very loud) and 100 (very quiet) that tells you how loud a location is due to environmental noise.

Considering this home?
Our expert will guide your tour, in-person or virtual
Need more information?
Text or call (888) 545-5198
Financials
Estimated monthly payment
Let us help you find your dream home
How many bedrooms are you looking for?
Similar homes nearby
Recently added communities in this area
Nearby communities in Wilmington
New homes in nearby cities
More New Homes in Wilmington, NC
- Jome
- New homes search
- North Carolina
- Pender County
- Wilmington
- Indigo at Abbey Preserve
- 610 Heart Pine Ave, Wilmington, NC 28411






























