





















































- 3 bd
- 2.5 ba
- 1,616 sqft
252 Hank Wy, Angier, NC 27501
- Townhouse
- $154.7/sqft
- $205/monthly HOA
- West facing
New Homes for Sale Near 252 Hank Wy, Angier, NC 27501
About this Home
What's Special: West Facing Lot | Backs to Open Space | 2nd Floor Laundry Room - New Construction - Ready Now! Built by America's Most Trusted Home Builder. Welcome to the Magnolia at 252 Hank Way in Camden Townes! This bright two-story townhome is designed for stylish, easy living. A welcoming foyer leads into an open great room, kitchen, and dining area. Perfect for everyday comfort and connection. The powder room is thoughtfully placed near the garage entry from the attached one-car garage. Upstairs, the spacious primary suite at the front of the home offers a private retreat. The attached bathroom features a dual sink vanity, a walk-in shower, and a generous closet. Two secondary bedrooms share a full bathroom, and a centrally located laundry room complete the layout. Set in charming Angier, NC, where crepe myrtles line the streets and neighbors feel like family. Enjoy farmers' markets, festive events, and quick access to US-55/US-401 and future I-540. Nearby Fuquay-Varina adds even more small-town magic. Additional highlights include: an additional sink add to bathroom 2. Photos are for representative purposes only. MLS#10118709
Taylor Morrison of Carolinas,, MLS 10118709
May also be listed on the Taylor Morrison website
Information last verified by Jome: Yesterday at 4:05 AM (May 2, 2026)
Home details
- Property status:
- Sold
- Collection:
- Camden Place
- Lot size (acres):
- 0.05
- Size:
- 1,616 sqft
- Stories:
- 2
- Beds:
- 3
- Baths:
- 2
- Half baths:
- 1
- Garage spaces:
- 1
- Fence:
- No Fence
- Facing direction:
- West
Construction details
- Builder Name:
- Taylor Morrison
- Year Built:
- 2025
- Roof:
- Roof Gutter, Shingle Roofing
Home features & finishes
- Appliances:
- Exhaust Fan
- Construction Materials:
- Vinyl SidingStone
- Cooling:
- Central Air
- Flooring:
- Laminate FlooringVinyl FlooringCarpet Flooring
- Foundation Details:
- Slab
- Garage/Parking:
- Door OpenerGarageFront Entry Garage/ParkingAttached Garage
- Interior Features:
- Ceiling-HighWalk-In ClosetFoyerPantry
- Kitchen:
- DishwasherMicrowave OvenGas CooktopGranite countertopKitchen IslandGas OvenKitchen Range
- Laundry facilities:
- Laundry Facilities On Upper LevelUtility/Laundry Room
- Property amenities:
- BasementPatioPorch
- Rooms:
- Dining RoomLiving Room
Room details
Master Bedroom
Dining Room
Bedroom 2
Utility information
- Heating:
- Zoned Heating, Water Heater, Gas Heating, Forced Air Heating
- Sewer:
- Public Sewer
- Utilities:
- Natural Gas Available, Underground Utilities, Sewer Available
- Water source:
- Public

Community details
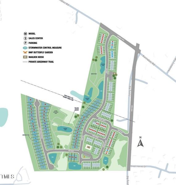
Camden
by Taylor Morrison, Willow Spring, NC
- 8 homes
- 5 plans
- 1,616 - 2,681 sqft
View Camden details
Community amenities
- Community Pool
- Sidewalks Available
More homes in Camden
- Home at address 192 Hank Wy, Angier, NC 27501

$274,499
Move-in ready- 3 bd
- 2.5 ba
- 1,616 sqft
192 Hank Wy, Angier, NC 27501
- Home at address 186 Hank Wy, Angier, NC 27501

$274,499
Move-in ready- 3 bd
- 2.5 ba
- 1,616 sqft
186 Hank Wy, Angier, NC 27501
- Home at address 190 Hank Wy, Angier, NC 27501

$274,499
Move-in ready- 3 bd
- 2.5 ba
- 1,616 sqft
190 Hank Wy, Angier, NC 27501
- Home at address 196 Hank Wy, Angier, NC 27501

$284,499
Move-in ready- 3 bd
- 2.5 ba
- 1,714 sqft
196 Hank Wy, Angier, NC 27501
- Home at address 198 Hank Wy, Angier, NC 27501

$284,499
Move-in ready- 3 bd
- 2.5 ba
- 1,616 sqft
198 Hank Wy, Angier, NC 27501
- Home at address 247 Blue Butterfly Dr, Angier, NC 27501

$361,999
Move-in ready- 3 bd
- 2.5 ba
- 2,111 sqft
247 Blue Butterfly Dr, Angier, NC 27501
Floor plans in Camden
About the builder - Taylor Morrison

- 318communities on Jome
- 1,371homes on Jome
Neighborhood
Home address
Schools in Wake County Schools
GreatSchools’ Summary Rating calculation is based on 4 of the school’s themed ratings, including test scores, student/academic progress, college readiness, and equity. This information should only be used as a reference. Jome is not affiliated with GreatSchools and does not endorse or guarantee this information. Please reach out to schools directly to verify all information and enrollment eligibility. Data provided by GreatSchools.org © 2025
Places of interest
Getting around
Noise level
A Soundscore™ rating is a number between 50 (very loud) and 100 (very quiet) that tells you how loud a location is due to environmental noise.
Financials
Nearby communities in Angier
Homes in Angier by Taylor Morrison
Recently added communities in this area
Other Builders in Angier, NC
Nearby sold homes
New homes in nearby cities
More New Homes in Angier, NC
Taylor Morrison of Carolinas,, MLS 10118709
© 2025 Doorify MLS, Inc. of North Carolina. All rights reserved. Brokers make an effort to deliver accurate information, but buyers should independently verify any information on which they will rely in a transaction. The listing broker shall not be responsible for any typographical errors, misinformation, or misprints, and they shall be held totally harmless from any damages arising from reliance upon this data. This data is provided exclusively for consumers’ personal, non-commercial use. Some IDX listings have been excluded from this IDX display. Closed (sold) listings may have been listed and/or sold by a real estate firm other than the firm(s) featured on this website. Closed data is not available until the sale of the property is recorded in the MLS. Home sale data is not an appraisal, CMA, competitive or comparative market analysis, or home valuation of any property. Listings marked with an icon are provided courtesy of the Doorify MLS, Inc. of North Carolina, Internet Data Exchange Database.
Read moreLast checked May 2, 10:10 pm
- Jome
- New homes search
- North Carolina
- Raleigh-Durham Area
- Wake County
- Angier
- Camden
- Camden Place
- 252 Hank Wy, Angier, NC 27501




















































