














Book your tour. Save an average of $18,473. We'll handle the rest.
- Confirmed tours
- Get matched & compare top deals
- Expert help, no pressure
- No added fees
Estimated value based on Jome data, T&C apply





























- 5 bd
- 3.5 ba
- 2,583 sqft
1081 Sandy Heights Lp, Navassa, NC 28451
Why tour with Jome?
- No pressure toursTour at your own pace with no sales pressure
- Expert guidanceGet insights from our home buying experts
- Exclusive accessSee homes and deals not available elsewhere
Jome is featured in
- Single-Family
- Quick move-in
- $141.31/sqft
- 108 days on Jome
Home description
About this home
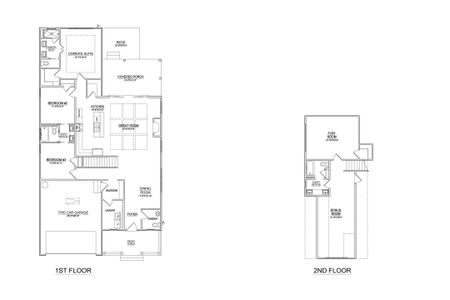
The Wren is one of our two-story floorplans featured in our Cedar Hill Landing community in Navassa, North Carolina. With 2 modern exteriors to choose from, the Hayden is sure to turn heads. To top it off, its one of our floorplans that offers a 2-car garage.
Inside this 5 bedroom, 3.5 bathroom home, you’ll find 2,583 square feet of comfortable living. The living area is an open concept, where your kitchen, living, and dining areas blend seamlessly into a space perfect for everyday living and entertaining.
The kitchen features beautiful cabinets, granite countertops, and stainless steel appliances, which are sure to both turn heads and make meal prep easy. You’ll never be too far from the action with the living and dining area right there.
Upstairs, there are 4 bedrooms, 2 full baths and a loft. In every bedroom you’ll have carpeted floors and a closet in each room. Whether these rooms become bedrooms, office spaces, or other bonus rooms, there is sure to be comfort.
Downstairs is the primary bedroom has its own attached bathroom that features a walk-in closet and all the space you need to get ready in the morning. Sharing a sink isn’t a worry with the double vanity, and you also get additional privacy with a separate door for the toilet and shower.
Home Is Connected® Smart Home Technology is included in your new home and comes with an industry-leading suite of smart home products including touchscreen interface, HD video doorbell, smart door lock, smart thermostat, smart light switch all controlled by smartphone app with voice!
From the pavilion, swimming pool, hot tub, fire pits, sport court, sand volleyball and recreation field, Cedar Hill Landing has everything you need to live your best life. The future community amenities will serve as a hub for events and social gatherings, fostering a strong sense of community among residents.
The photos you see here are for illustration purposes only, interior and exterior features, options, colors and selections will differ.
May also be listed on the D.R. Horton website
Information last verified by Jome: Today at 1:17 AM (December 5, 2025)
Home highlights
Book your tour. Save an average of $18,473. We'll handle the rest.
We collect exclusive builder offers, book your tours, and support you from start to housewarming.
- Confirmed tours
- Get matched & compare top deals
- Expert help, no pressure
- No added fees
Estimated value based on Jome data, T&C apply
Home details
- Property status:
- Move-in ready
- Size:
- 2,583 sqft
- Stories:
- 2
- Beds:
- 5
- Baths:
- 3.5
- Garage spaces:
- 2
Construction details
- Builder Name:
- D.R. Horton
Home features & finishes
- Garage/Parking:
- Garage

Community details
Cedar Hill Landing
by D.R. Horton, Navassa, NC
- 9 homes
- 10 plans
- 1,475 - 2,643 sqft
View Cedar Hill Landing details
More homes in Cedar Hill Landing
Floor plans in Cedar Hill Landing
About the builder - D.R. Horton
Neighborhood
Home address
Schools in Brunswick County Schools
- Grades PK-08Privatepeace rose montessori5.9 mi2173 wrightsville avena
GreatSchools’ Summary Rating calculation is based on 4 of the school’s themed ratings, including test scores, student/academic progress, college readiness, and equity. This information should only be used as a reference. Jome is not affiliated with GreatSchools and does not endorse or guarantee this information. Please reach out to schools directly to verify all information and enrollment eligibility. Data provided by GreatSchools.org © 2025
Getting around
Noise level
A Soundscore™ rating is a number between 50 (very loud) and 100 (very quiet) that tells you how loud a location is due to environmental noise.
Natural hazards risk
Climate hazards can impact homes and communities, with risks varying by location. These scores reflect the potential impact of natural disasters and climate-related risks on Brunswick County
Provided by FEMA

Considering this home?
Our expert will guide your tour, in-person or virtual
Need more information?
Text or call (888) 486-2818
Financials
Estimated monthly payment
Similar homes nearby
Recently added communities in this area
Nearby communities in Navassa
New homes in nearby cities
More New Homes in Navassa, NC
- Home
- New homes
- North Carolina
- Brunswick County
- Navassa
- Cedar Hill Landing
- 1081 Sandy Heights Lp, Navassa, NC 28451


































