





































- 3 bd
- 2 ba
- 1,476 sqft
5344 Spicewood Lake Ln, Winston-Salem, NC 27106
- Single-Family
- $203.25/sqft
- 202 days on Jome
New Homes for Sale Near 5344 Spicewood Lake Ln, Winston-Salem, NC 27106
About this Home
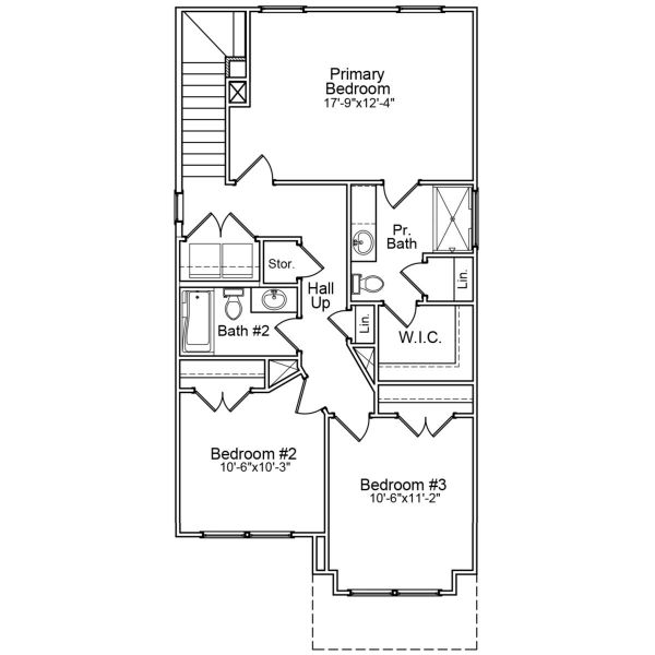
This two-story Bartow features three bedrooms and two-and-one-half bathrooms. Come in through the front door to be greeted by the eat-in area that opens into the kitchen and great room. The kitchen offers ample cabinet and counter space and boasts beautiful granite countertops. Upstairs, you will find the laundry room, as well as storage and linen closets located in the hallway. The primary bedroom is situated at the rear of the home and includes a walk-in closet, as well as an en-suite bathroom with a spacious shower and double vanities. Two more bedrooms and a second full bathroom are located on the second floor. This home holds tremendous value, so don't wait! Come visit Hanes Lake today!
May also be listed on the Mungo Homes website
Information last verified by Jome: Sunday at 6:12 AM (December 14, 2025)
Home details
- Property status:
- Sold
- Size:
- 1,476 sqft
- Stories:
- 2
- Beds:
- 3
- Baths:
- 2
- Garage spaces:
- 1
Construction details
- Builder Name:
- Mungo Homes
- Completion Date:
- December, 2025
Home features & finishes
- Garage/Parking:
- Garage
- Rooms:
- Primary Bedroom Upstairs

Community details
Hanes Lake
by Mungo Homes, Winston-Salem, NC
- 13 homes
- 9 plans
- 1,476 - 3,578 sqft
View Hanes Lake details
More homes in Hanes Lake
- Home at address 523 Raspberry Hill Rd, Winston-Salem, NC 27106

$305,000
Move-in ready- 3 bd
- 2 ba
- 1,476 sqft
523 Raspberry Hill Rd, Winston-Salem, NC 27106
- Home at address 5362 Spicewood Lake Ln, Winston-Salem, NC 27106

$385,000
Move-in ready- 5 bd
- 3 ba
- 2,177 sqft
5362 Spicewood Lake Ln, Winston-Salem, NC 27106
- Home at address 5356 Spicewood Lake Ln, Winston-Salem, NC 27106

$390,000
Move-in ready- 4 bd
- 3 ba
- 2,237 sqft
5356 Spicewood Lake Ln, Winston-Salem, NC 27106
- Home at address 5369 Spicewood Lake Ln, Winston-Salem, NC 27106

$390,000
Under construction- 3 bd
- 2.5 ba
- 2,241 sqft
5369 Spicewood Lake Ln, Winston-Salem, NC 27106
- Home at address 713 Cinnamon Hill Dr, Winston-Salem, NC 27106

$399,000
Move-in ready- 3 bd
- 2 ba
- 1,700 sqft
713 Cinnamon Hill Dr, Winston-Salem, NC 27106
- Home at address 546 Raspberry Hill Rd, Winston-Salem, NC 27106

$401,000
Move-in ready- 4 bd
- 2.5 ba
- 2,175 sqft
546 Raspberry Hill Rd, Winston-Salem, NC 27106
Floor plans in Hanes Lake
- View details for Edisto - Vanguard Collection

Edisto - Vanguard Collection
$406,000+- 4 bd
- 2.5 ba
- 2,285 sqft
- View details for Keowee - Vanguard Collection

Keowee - Vanguard Collection
$415,000+- 3 bd
- 2.5 ba
- 2,491 sqft
About the builder - Mungo Homes
Neighborhood
Home address
- City:
- Winston-Salem
- County:
- Forsyth
- Zip Code:
- 27106
Schools in Forsyth County Schools
GreatSchools’ Summary Rating calculation is based on 4 of the school’s themed ratings, including test scores, student/academic progress, college readiness, and equity. This information should only be used as a reference. Jome is not affiliated with GreatSchools and does not endorse or guarantee this information. Please reach out to schools directly to verify all information and enrollment eligibility. Data provided by GreatSchools.org © 2025
Places of interest
Getting around
Air quality
Noise level
A Soundscore™ rating is a number between 50 (very loud) and 100 (very quiet) that tells you how loud a location is due to environmental noise.
Financials
Nearby communities in Winston-Salem
Homes in Winston-Salem Neighborhoods
Homes in Winston-Salem by Mungo Homes
Recently added communities in this area
Other Builders in Winston-Salem, NC
Nearby sold homes
New homes in nearby cities
More New Homes in Winston-Salem, NC
- Jome
- New homes search
- North Carolina
- Forsyth County
- Winston-Salem
- Hanes Lake
- 5344 Spicewood Lake Ln, Winston-Salem, NC 27106



































































