


































- 3 bd
- 2.5 ba
- 2,231 sqft
340 Ambassador Dr, Clayton, NC 27520
- Single-Family
- $169.83/sqft
- $135/monthly HOA
- 0.12-acre lot
New Homes for Sale Near 340 Ambassador Dr, Clayton, NC 27520
About this Home
Smith Douglas Homes presents The Caldwell at Wellesley —a perfect blend of comfort and style, offering a spacious retreat spanning 2,231 square feet across two well-appointed stories.
This meticulously designed home features three bedrooms and 2.5 bathrooms, exuding both comfort and charm.
Discover the Owner's Suite on the first floor, complete with a generous walk-in closet, providing convenience and style as you explore the home.
The heart of the home, the kitchen, boasts an L-shaped countertop with a sink overlooking the family room area, creating a seamless flow for both cooking and entertaining. The main level also hosts a cozy family room, a formal dining room, and laundry facilities, ensuring every aspect of daily life is seamlessly integrated.
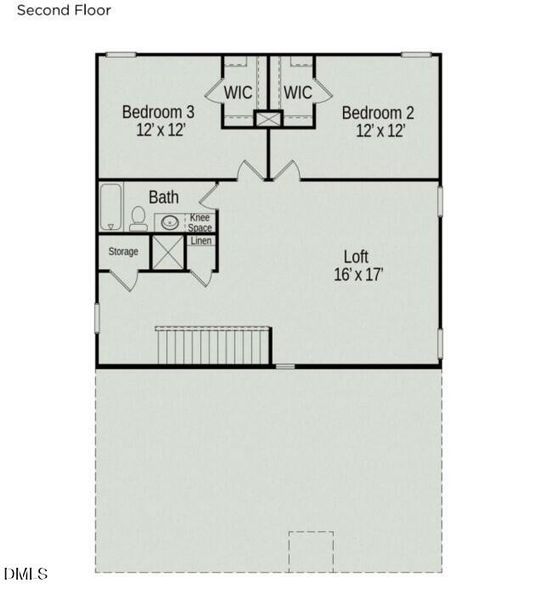
Upstairs, two additional bedrooms with walk-in closets await, alongside a versatile loft space.
Step outside to enjoy the covered patio off the family room, creating an inviting space for outdoor gatherings or peaceful moments of relaxation.
With a two-car garage offering practicality and storage, The Caldwell effortlessly combines convenience with style.
Nestled within a vibrant community boasting desirable amenities, this home offers more than just a living space—it promises a lifestyle of comfort and enjoyment.
Embrace the opportunity to make The Caldwell your own—a retreat where modern comfort meets casual charm, brought to you by Smith Douglas Homes.
This home will be completed September 2025.
SDH Raleigh LLC, MLS 10110855
May also be listed on the Smith Douglas Homes website
Information last verified by Jome: Yesterday at 4:18 AM (March 31, 2026)
Home details
- Property status:
- Sold
- Lot size (acres):
- 0.12
- Size:
- 2,231 sqft
- Stories:
- 2
- Beds:
- 3
- Baths:
- 2
- Half baths:
- 1
- Garage spaces:
- 2
Construction details
- Builder Name:
- Smith Douglas Homes
- Year Built:
- 2025
- Roof:
- Shingle Roofing
Home features & finishes
- Construction Materials:
- CementBrickStone
- Cooling:
- Central Air
- Flooring:
- Vinyl FlooringCarpet Flooring
- Foundation Details:
- Slab
- Garage/Parking:
- GarageAttached Garage
- Interior Features:
- Walk-In Closet
- Kitchen:
- DishwasherMicrowave OvenElectric CooktopKitchen Range
- Property amenities:
- BasementPatio
- Rooms:
- Primary Bedroom On MainOpen Concept FloorplanPrimary Bedroom Downstairs
Room details
Master Bedroom
Kitchen
Dining Room
Utility information
- Heating:
- Electric Heating

Community details
Wellesley
by Smith Douglas Homes, Clayton, NC
- 5 homes
- 7 plans
- 1,909 - 2,565 sqft
View Wellesley details
Community amenities
- Playground
- Club House
- Tennis Courts
- Community Pool
- Park Nearby
- Sidewalks Available
More homes in Wellesley
- Home at address 91 Commons Cir, Clayton, NC 27520

$374,999
Move-in ready- 4 bd
- 2.5 ba
- 2,036 sqft
91 Commons Cir, Clayton, NC 27520
- Home at address 302 Ambassador Dr, Clayton, NC 27520

$402,900
Move-in ready- 3 bd
- 2.5 ba
- 2,231 sqft
302 Ambassador Dr, Clayton, NC 27520
- Home at address 245 Ambassador Dr, Clayton, NC 27520

$409,900
Move-in ready- 3 bd
- 2.5 ba
- 2,231 sqft
245 Ambassador Dr, Clayton, NC 27520
- Home at address 233 Ambassador Dr, Clayton, NC 27520

$418,900
Move-in ready- 4 bd
- 2.5 ba
- 2,565 sqft
233 Ambassador Dr, Clayton, NC 27520
- Home at address 12 Commons Cir, Clayton, NC 27520

Contact for price
Move-in ready- 3 bd
- 2.5 ba
- 2,237 sqft
12 Commons Cir, Clayton, NC 27520
Floor plans in Wellesley
About the builder - Smith Douglas Homes
Neighborhood
Home address
Schools in Johnston County Schools
GreatSchools’ Summary Rating calculation is based on 4 of the school’s themed ratings, including test scores, student/academic progress, college readiness, and equity. This information should only be used as a reference. Jome is not affiliated with GreatSchools and does not endorse or guarantee this information. Please reach out to schools directly to verify all information and enrollment eligibility. Data provided by GreatSchools.org © 2025
Places of interest
Getting around
Noise level
A Soundscore™ rating is a number between 50 (very loud) and 100 (very quiet) that tells you how loud a location is due to environmental noise.
Financials
Nearby communities in Clayton
Homes in Clayton by Smith Douglas Homes
Recently added communities in this area
Other Builders in Clayton, NC
Nearby sold homes
New homes in nearby cities
More New Homes in Clayton, NC
SDH Raleigh LLC, MLS 10110855
© 2025 Doorify MLS, Inc. of North Carolina. All rights reserved. Brokers make an effort to deliver accurate information, but buyers should independently verify any information on which they will rely in a transaction. The listing broker shall not be responsible for any typographical errors, misinformation, or misprints, and they shall be held totally harmless from any damages arising from reliance upon this data. This data is provided exclusively for consumers’ personal, non-commercial use. Some IDX listings have been excluded from this IDX display. Closed (sold) listings may have been listed and/or sold by a real estate firm other than the firm(s) featured on this website. Closed data is not available until the sale of the property is recorded in the MLS. Home sale data is not an appraisal, CMA, competitive or comparative market analysis, or home valuation of any property. Listings marked with an icon are provided courtesy of the Doorify MLS, Inc. of North Carolina, Internet Data Exchange Database.
Read moreLast checked Apr 1, 4:10 am
- Jome
- New homes search
- North Carolina
- Raleigh-Durham Area
- Johnston County
- Clayton
- Wellesley
- 340 Ambassador Dr, Clayton, NC 27520



































































