





















- 4 bd
- 2.5 ba
- 2,005 sqft
4041 Jenison Valley Ct, Charlotte, NC 28214
- Single-Family
- $204.48/sqft
- Northeast facing
- 0.14-acre lot
New Homes for Sale Near 4041 Jenison Valley Ct, Charlotte, NC 28214
About this Home
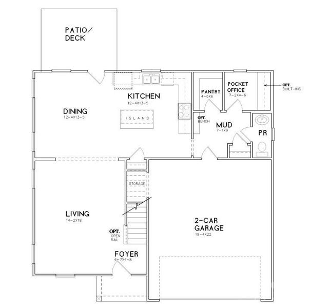
PRICE IMPROVEMENT! QUICK MOVE-IN with up to 3% in closing cost with the use of Preferred Lender. Ask Agent for Details. The White Oak plan has storage at every turn, starting with the oversized garage with storage nook. The living room is spacious & airy connecting to the dining area. The kitchen has genuine wood, white soft-close dovetail shaker cabinetry, quartz countertops with a beautiful tile backsplash, which shine next to the stainless-steel appliances. Nestled behind the kitchen is a HUGE walk-in pantry, drop zone, half bath & an office! the main floor offers our all SPC limestone flooring throughout and on stairs. Upstairs are all 4 bedrooms with their own deep closets with luxurious carpet and pad. The bathrooms have beautiful quartz countertops & double sinks on the white shaker soft-close cabinets. Built by Red Cedar Homes. We offer a 1/2/10 Warranty through Maverick.
Red Cedar Realty LLC, MLS CAR4271077
May also be listed on the Red Cedar Homes website
Information last verified by Jome: Tuesday at 5:00 PM (January 6, 2026)
Home details
- Property status:
- Sold
- Lot size (acres):
- 0.14
- Size:
- 2,005 sqft
- Stories:
- 2
- Beds:
- 4
- Baths:
- 2
- Half baths:
- 1
- Garage spaces:
- 2
- Facing direction:
- Northeast
Construction details
- Builder Name:
- Red Cedar Homes
- Year Built:
- 2025
Home features & finishes
- Cooling:
- Central Air
- Foundation Details:
- Crawl Space
- Garage/Parking:
- GarageFront Entry Garage/ParkingAttached Garage
- Interior Features:
- Walk-In ClosetFoyerPantry
- Kitchen:
- DishwasherMicrowave OvenDisposalKitchen RangeElectric Oven
- Laundry facilities:
- Laundry Facilities On Upper LevelUtility/Laundry Room
- Property amenities:
- Pocket OfficePorch
- Rooms:
- KitchenPowder RoomMudroomDining RoomFamily RoomOpen Concept Floorplan
Utility information
- Heating:
- Central Heating

Community details
The Pines at Paw Creek
by Red Cedar Homes, Charlotte, NC
- 2 homes
- 1 plan
- 1,788 - 2,172 sqft
View The Pines at Paw Creek details
More homes in The Pines at Paw Creek
- Home at address 3030 Breslin St, Charlotte, NC 28214

$389,490
Move-in ready- 3 bd
- 2.5 ba
- 1,803 sqft
3030 Breslin St, Charlotte, NC 28214
- Home at address 3014 Breslin St, Charlotte, NC 28214

$414,990
Under construction- 3.5 ba
- 2,172 sqft
3014 Breslin St, Charlotte, NC 28214
Floor plans in The Pines at Paw Creek
About the builder - Red Cedar Homes
Neighborhood
Home address
- City:
- Charlotte
- County:
- Mecklenburg
- Zip Code:
- 28214
Schools in Charlotte-Mecklenburg Schools
GreatSchools’ Summary Rating calculation is based on 4 of the school’s themed ratings, including test scores, student/academic progress, college readiness, and equity. This information should only be used as a reference. Jome is not affiliated with GreatSchools and does not endorse or guarantee this information. Please reach out to schools directly to verify all information and enrollment eligibility. Data provided by GreatSchools.org © 2025
Places of interest
Getting around
3 nearby routes: 3 bus, 0 rail, 0 otherAir quality
Noise level
A Soundscore™ rating is a number between 50 (very loud) and 100 (very quiet) that tells you how loud a location is due to environmental noise.
Financials
Nearby communities in Charlotte
Homes in Charlotte Neighborhoods
- Toddville Road
- Cotswold
- Beatties Ford-Trinity
- Oakdale South
- Highland Creek
- Hickory Grove
- Westerly Hills
- Smallwood
- Back Creek Church Road
- Montclaire South
- Provincetowne
- Enderly Park
- Nevin Community
- Coulwood West
- York Road
- Steele Creek
- Elizabeth
- Newell
- Oakhurst
- Mallard Creek - Withrow Downs
- Eagle Lake
- Mineral Springs-Rumble Road
- Lansdowne
- Myers Park
- Derita-Statesville
- Starmount
- Plaza-Shamrock
- Seversville
- Druid Hills South
- Echo Hills
- Tryon Hills
- Eastland-Wilora Lake
- Ponderosa-Wingate
- Wessex Square
- Wendover-Sedgewood
- Sedgefield
- North Charlotte
- Foxcroft
- Optimist Park
- Plaza Midwood
- Whiteoak
- Providence Park
- Biddleville
- Marshbrooke
- Sugaw Creek-Ritch Ave
- Farm Pond
- Oaklawn
- Barclay Downs
- Sherwood Forest
- Sardis Forest
- Slater Rd-Hamilton Circle
- Hidden Valley
- Sterling
- Double Oaks
- Oakview Terrace
- Dilworth
- Prosperity Church Road
- Oxford Hunt
- Madison Park
- Olde Providence North
- Pinecrest
- Reid Park
- Carmel
- Third Ward
- Yorkmount
- Villa Heights
- North Lake
- First Ward
- Wilson Heights
- University City North
- Wesley Heights
- Sardis Woods
- College Downs
- Ballantyne West
- West Sugar Creek-W T Harris Bl
- Westchester
- Collingwood
- Revolution Park
- Providence Crossing
- Ashley Park
- Mountain Island
- Wildwood
- Beverly Woods
- Freedom Park
- Belmont
- Capitol Drive
- Chantilly
- Sunset Road
- Henderson Circle
- Marlwood
- Country Club Heights
- Thomasboro-Hoskins
- Firestone-Garden Park
- Lincoln Heights
- Shannon Park
- Providence Estates East
- Piper Glen Estates
- Briarcreek-Woodland
- Providence Plantation
- Brookhill
Homes in Charlotte by Red Cedar Homes
Recently added communities in this area
Other Builders in Charlotte, NC
Nearby sold homes
New homes in nearby cities
More New Homes in Charlotte, NC
Red Cedar Realty LLC, MLS CAR4271077
Based on information submitted to the MLS GRID as of 10/21/2024 2:31 PM CDT. All data is obtained from various sources and may not have been verified by the broker or MLS GRID. Supplied Open House Information is subject to change without notice. All information should be independently reviewed and verified for accuracy. Properties may or may not be listed by the office/agent presenting the information. Properties displayed may be listed or sold by various participants in the MLS. The Digital Millennium Copyright Act of 1998, 17 U.S.C. § 512 (the “DMCA”) provides recourse for copyright owners who believe that material appearing on the Internet infringes their rights under U.S. copyright law. If you believe in good faith that any content or material made available in connection with our website or services infringes your copyright, you (or your agent) may send us a notice requesting that the content or material be removed, or access to it blocked. Notices must be sent in writing by email to DMCAnotice@MLSGrid.com. The DMCA requires that your notice of alleged copyright infringement include the following information: (1) description of the copyrighted work that is the subject of claimed infringement; (2) description of the alleged infringing content and information sufficient to permit us to locate the content; (3) contact information for you, including your address, telephone number and email address; (4) a statement by you that you have a good faith belief that the content in the manner complained of is not authorized by the copyright owner, or its agent, or by the operation of any law; (5) a statement by you, signed under penalty of perjury, that the information in the notification is accurate and that you have the authority to enforce the copyrights that are claimed to be infringed; and (6) a physical or electronic signature of the copyright owner or a person authorized to act on the copyright owner’s behalf. Failure to include all of the above information may result in the delay of the processing of your complaint.
Read moreLast checked Jan 20, 12:00 am
- Jome
- New homes search
- North Carolina
- Charlotte Metropolitan Area
- Mecklenburg County
- Charlotte
- The Pines at Paw Creek
- 4041 Jenison Valley Ct, Charlotte, NC 28214


































































