






































- 3 bd
- 2.5 ba
- 2,091 sqft
288 Meadowbark Bnd, Garner, NC 27529
- Single-Family
- $198.47/sqft
- $195/monthly HOA
- 188 days on Jome
New Homes for Sale Near 288 Meadowbark Bnd, Garner, NC 27529
About this Home
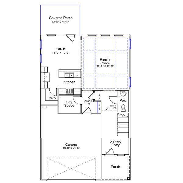
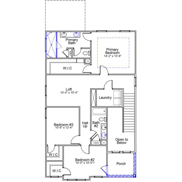
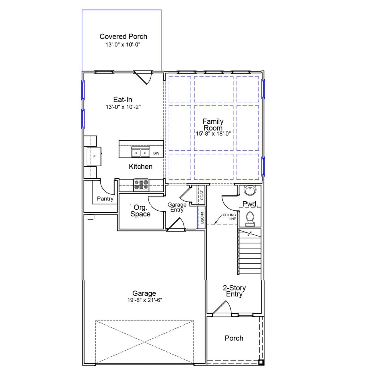
This home offers a thoughtful layout with both comfort and practicality in mind. A two-story foyer and nine-foot ceilings on both floors create an open, airy feel as soon as you walk in. The great room connects seamlessly to the kitchen and dining area, making it easy to stay connected whether you're preparing meals or spending time with others. Near the garage entry, there’s a convenient drop zone—ideal for storing shoes, bags, or creating a functional mudroom space. Upstairs, a spacious loft provides flexible space for relaxing, watching movies, or hosting game nights. The primary suite includes a tray ceiling, a large walk-in closet, and a well-designed bathroom with an oversized tiled shower, dual sinks, a private water closet, and a linen closet. With generous living areas and practical design elements throughout, this home offers a balance of space and style.
May also be listed on the Mungo Homes website
Information last verified by Jome: Monday at 6:07 AM (December 29, 2025)
Home details
- Property status:
- Sold
- Size:
- 2,091 sqft
- Stories:
- 2
- Beds:
- 3
- Baths:
- 2
- Half baths:
- 1
- Garage spaces:
- 2
Construction details
- Builder Name:
- Mungo Homes
- Completion Date:
- December, 2025
Home features & finishes
- Garage/Parking:
- Garage
- Rooms:
- Primary Bedroom Upstairs

Community details
Renaissance at White Oak
by Mungo Homes, Garner, NC
- 39 homes
- 4 plans
- 1,462 - 2,535 sqft
View Renaissance at White Oak details
More homes in Renaissance at White Oak
- Home at address 116 Silver Fir Ln, Garner, NC 27529

$270,279
Under construction- 3 bd
- 2.5 ba
- 1,500 sqft
116 Silver Fir Ln, Garner, NC 27529
- Home at address 116 Silver Fir Ln, Unit 240, Garner, NC 27529

$270,279
Move-in ready- 3 bd
- 2.5 ba
- 1,500 sqft
116 Silver Fir Ln, Unit 240, Garner, NC 27529
- Home at address 136 Silver Fir Ln, Unit 245, Garner, NC 27529

$270,479
Move-in ready- 3 bd
- 2.5 ba
- 1,462 sqft
136 Silver Fir Ln, Unit 245, Garner, NC 27529
- Home at address 108 Silver Fir Ln, Unit 238, Garner, NC 27529

$275,148
Move-in ready- 3 bd
- 2.5 ba
- 1,554 sqft
108 Silver Fir Ln, Unit 238, Garner, NC 27529
- Home at address 108 Silver Fir Ln, Garner, NC 27529

$275,148
Under construction- 3 bd
- 2.5 ba
- 1,554 sqft
108 Silver Fir Ln, Garner, NC 27529
- Home at address 120 Silver Fir Ln, Garner, NC 27529

$280,809
Under construction- 3 bd
- 2.5 ba
- 1,554 sqft
120 Silver Fir Ln, Garner, NC 27529
Floor plans in Renaissance at White Oak

Cannalily - Genesis Value Collection
- 3 bd
- 2.5 ba
- 1,471 sqft

Clover - Genesis Value Collection
- 3 bd
- 2.5 ba
- 1,514 sqft

Waterlily - Vanguard Collection
- 3 bd
- 2.5 ba
- 2,293 sqft

Watsonia - Vanguard Collection
- 3 bd
- 2.5 ba
- 2,342 sqft
About the builder - Mungo Homes
Neighborhood
Home address
Schools in Wake County Schools
GreatSchools’ Summary Rating calculation is based on 4 of the school’s themed ratings, including test scores, student/academic progress, college readiness, and equity. This information should only be used as a reference. Jome is not affiliated with GreatSchools and does not endorse or guarantee this information. Please reach out to schools directly to verify all information and enrollment eligibility. Data provided by GreatSchools.org © 2025
Places of interest
Getting around
Noise level
A Soundscore™ rating is a number between 50 (very loud) and 100 (very quiet) that tells you how loud a location is due to environmental noise.
Financials
Nearby communities in Garner
Homes in Garner Neighborhoods
Homes in Garner by Mungo Homes
Recently added communities in this area
Other Builders in Garner, NC
Nearby sold homes
New homes in nearby cities
More New Homes in Garner, NC
- Jome
- New homes search
- North Carolina
- Raleigh-Durham Area
- Wake County
- Garner
- Renaissance at White Oak
- 288 Meadowbark Bnd, Garner, NC 27529




















































