



















































- 4 bd
- 3 ba
- 2,237 sqft
4321 Honeysuckle Vine Dr, Winston-Salem, NC 27106
- Single-Family
- $176.13/sqft
- 210 days on Jome
New Homes for Sale Near 4321 Honeysuckle Vine Dr, Winston-Salem, NC 27106
About this Home
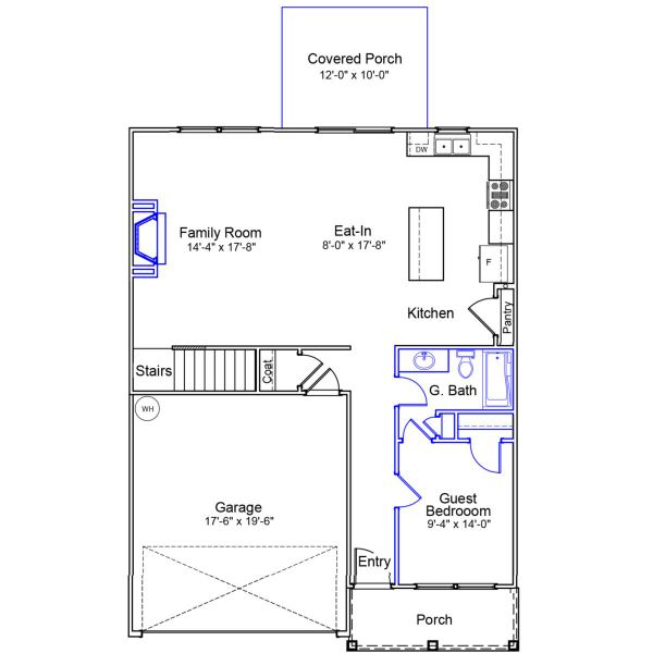
Welcome to the Meriwether floor plan, a spacious and versatile home! This thoughtfully crafted home features four bedrooms and a large loft, offering ample space for everyone. The main floor guest suite with a full bathroom is perfect for visitors or multi-generational living. The open-concept kitchen boasts stylish finishes and flows seamlessly into the living and dining areas, making it ideal for entertaining. The main floor is enhanced with durable luxury vinyl plank flooring, while the upstairs features a spacious loft, creating a perfect second living space. The primary suite offers a luxurious retreat with huge walk-in closets, dual sinks, and a tile shower. Step outside to the covered porch, perfect for relaxing or enjoying outdoor gatherings. Hanes Lake community is one of a kind, with a community pool, walking trails, and fishing in the lake. Come check out Hanes Lake today!
May also be listed on the Mungo Homes website
Information last verified by Jome: Friday at 6:02 AM (November 21, 2025)
Home details
- Property status:
- Sold
- Size:
- 2,237 sqft
- Stories:
- 2
- Beds:
- 4
- Baths:
- 3
- Garage spaces:
- 2
Construction details
- Builder Name:
- Mungo Homes
Home features & finishes
- Garage/Parking:
- Garage
- Rooms:
- Primary Bedroom Upstairs

Community details
Hanes Lake
by Mungo Homes, Winston-Salem, NC
- 27 homes
- 9 plans
- 1,476 - 3,578 sqft
View Hanes Lake details
More homes in Hanes Lake
- Home at address 2509 Raspberry Hill Dr, Winston-Salem, NC 27106

$365,000
Under construction- 4 bd
- 2.5 ba
- 1,806 sqft
2509 Raspberry Hill Dr, Winston-Salem, NC 27106
- Home at address 5362 Spicewood Lake Ln, Winston-Salem, NC 27106

$390,000
Move-in ready- 5 bd
- 3 ba
- 2,177 sqft
5362 Spicewood Lake Ln, Winston-Salem, NC 27106
- Home at address 5356 Spicewood Lake Ln, Winston-Salem, NC 27106

$390,000
Move-in ready- 4 bd
- 3 ba
- 2,237 sqft
5356 Spicewood Lake Ln, Winston-Salem, NC 27106
- Home at address 5374 Spicewood Lake Ln, Winston-Salem, NC 27106

$400,000
Move-in ready- 5 bd
- 3 ba
- 2,255 sqft
5374 Spicewood Lake Ln, Winston-Salem, NC 27106
- Home at address 546 Raspberry Hill Rd, Winston-Salem, NC 27106

$401,000
Under construction- 4 bd
- 2.5 ba
- 2,175 sqft
546 Raspberry Hill Rd, Winston-Salem, NC 27106
- Home at address 552 Raspberry Hill Rd, Winston-Salem, NC 27106

$410,000
Move-in ready- 5 bd
- 2.5 ba
- 2,255 sqft
552 Raspberry Hill Rd, Winston-Salem, NC 27106
Floor plans in Hanes Lake

Edisto - Vanguard Collection
- 4 bd
- 2.5 ba
- 2,285 sqft

Nantahala II - Vanguard Collection
- 4 bd
- 2.5 ba
- 2,450 sqft

Roanoke - Vanguard Collection
- 4 bd
- 2.5 ba
- 2,708 sqft

Savannah - Vanguard Collection
- 5 bd
- 2.5 ba
- 2,886 sqft

Saluda II - Vanguard Collection
- 4 bd
- 3 ba
- 2,807 sqft

Warwick II - Vanguard Collection
- 4 bd
- 2.5 ba
- 3,295 sqft

Webster II - Vanguard Collection
- 4 bd
- 3.5 ba
- 3,578 sqft
About the builder - Mungo Homes
Neighborhood
Home address
- City:
- Winston-Salem
- County:
- Forsyth
- Zip Code:
- 27106
Schools in Forsyth County Schools
GreatSchools’ Summary Rating calculation is based on 4 of the school’s themed ratings, including test scores, student/academic progress, college readiness, and equity. This information should only be used as a reference. Jome is not affiliated with GreatSchools and does not endorse or guarantee this information. Please reach out to schools directly to verify all information and enrollment eligibility. Data provided by GreatSchools.org © 2025
Places of interest
Getting around
Air quality
Noise level
A Soundscore™ rating is a number between 50 (very loud) and 100 (very quiet) that tells you how loud a location is due to environmental noise.
Financials
Nearby communities in Winston-Salem
Homes in Winston-Salem Neighborhoods
Homes in Winston-Salem by Mungo Homes
Recently added communities in this area
Other Builders in Winston-Salem, NC
Nearby sold homes
New homes in nearby cities
More New Homes in Winston-Salem, NC
- Jome
- New homes search
- North Carolina
- Forsyth County
- Winston-Salem
- Hanes Lake
- 4321 Honeysuckle Vine Dr, Winston-Salem, NC 27106

































































