

















































- 4 bd
- 2.5 ba
- 2,183 sqft
7554 Buckhaven Forest Dr, Kernersville, NC 27284
- Single-Family
- $176.36/sqft
- 185 days on Jome
New Homes for Sale Near 7554 Buckhaven Forest Dr, Kernersville, NC 27284
About this Home
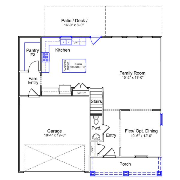
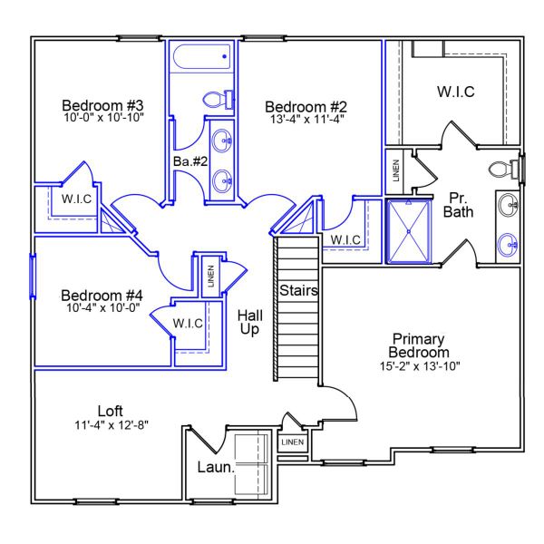
Check out the Cooper! Approaching this home, you will fall in love with an expansive covered front porch with stone accent. Upon entering, you have a flex space which could be used as a dining room, office, playroom etc. opening up into a large living room. The kitchen has tons of storage space including a quick-access pantry AND a walk-in pantry for overflow! The island is large and allows for seating on three sides. Upstairs includes three secondary bedrooms with walk in closets, a shared full bath and easy access laundry room. Imagine all the possibilities the additional space the loft could be used for. On top of that, the primary bedroom includes a private en suite with tiled shower and oversized walk-in closet. This is one of our final opportunities so don't wait!
May also be listed on the Mungo Homes website
Information last verified by Jome: Monday at 5:42 AM (October 27, 2025)
Home details
- Property status:
- Sold
- Size:
- 2,183 sqft
- Stories:
- 2
- Beds:
- 4
- Baths:
- 2
- Half baths:
- 1
- Garage spaces:
- 2
Construction details
- Builder Name:
- Mungo Homes
- Completion Date:
- September, 2025
Home features & finishes
- Garage/Parking:
- Garage
- Rooms:
- Primary Bedroom Upstairs

Community details
Watkins Landing
by Mungo Homes, Kernersville, NC
- 1 home
- 2,183 - 2,183 sqft
View Watkins Landing details
More homes in Watkins Landing
About the builder - Mungo Homes
Neighborhood
Home address
- City:
- Kernersville
- County:
- Forsyth
- Zip Code:
- 27284
Schools in Forsyth County Schools
GreatSchools’ Summary Rating calculation is based on 4 of the school’s themed ratings, including test scores, student/academic progress, college readiness, and equity. This information should only be used as a reference. Jome is not affiliated with GreatSchools and does not endorse or guarantee this information. Please reach out to schools directly to verify all information and enrollment eligibility. Data provided by GreatSchools.org © 2025
Places of interest
Getting around
Air quality
Natural hazards risk
Climate hazards can impact homes and communities, with risks varying by location. These scores reflect the potential impact of natural disasters and climate-related risks on Forsyth County
Provided by FEMA
Financials
Nearby communities in Kernersville
Homes in Kernersville by Mungo Homes
Recently added communities in this area
Other Builders in Kernersville, NC
Nearby sold homes
New homes in nearby cities
More New Homes in Kernersville, NC
- Jome
- New homes search
- North Carolina
- Forsyth County
- Kernersville
- Watkins Landing
- 7554 Buckhaven Forest Dr, Kernersville, NC 27284






















































