






























- 4 bd
- 3 ba
- 2,568 sqft
38 Gander Dr, Benson, NC 27504
- Single-Family
- $155.72/sqft
- $39.42/monthly HOA
- South facing
New Homes for Sale Near 38 Gander Dr, Benson, NC 27504
About this Home
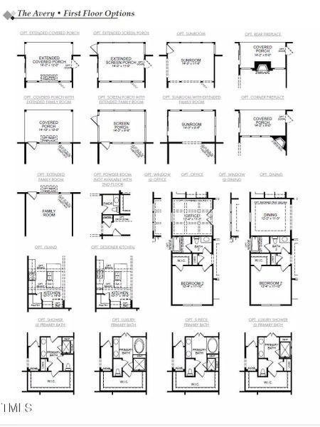
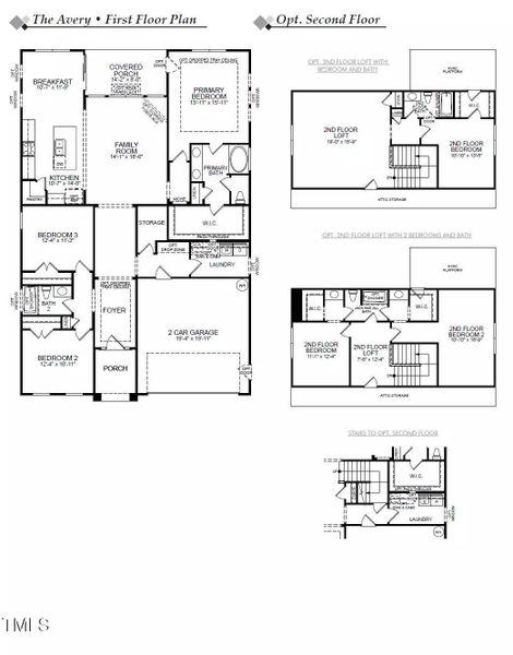
$20,000 PRICE REDUCTION 100% FINANCING AVAILABLE, USDA eligible. This expansive Avery ranch style plan features 2568 square feet with three first floor bedrooms and a fourth bedroom, loft, and full bathroom on the 2nd floor. Wide foyer entry shows off the molding details and LVP flooring leading to the main living Kitchen with large island, granite counters, and tile backsplash. Exterior with covered porch and porch. Builder participates in the HERS builder program with a high energy efficiency score of 63. HOA features community pool. Home must close on or before 12/19
Eastwood Construction LLC, MLS 10095465
May also be listed on the Eastwood Homes website
Information last verified by Jome: Today at 4:18 AM (March 28, 2026)
Home details
- Property status:
- Sold
- Lot size (acres):
- 0.21
- Size:
- 2,568 sqft
- Stories:
- 2
- Beds:
- 4
- Baths:
- 3
- Garage spaces:
- 2
- Facing direction:
- South
Construction details
- Builder Name:
- Eastwood Homes
- Year Built:
- 2025
- Roof:
- Shingle Roofing
Home features & finishes
- Construction Materials:
- Vinyl SidingStone
- Cooling:
- Central Air
- Flooring:
- Vinyl FlooringCarpet Flooring
- Foundation Details:
- Slab
- Garage/Parking:
- Door OpenerGarageFront Entry Garage/ParkingAttached Garage
- Interior Features:
- Walk-In ClosetCrown MoldingFoyerPantryTray CeilingLoft
- Kitchen:
- Microwave OvenOvenGranite countertopKitchen IslandKitchen Range
- Laundry facilities:
- Laundry Facilities On Main LevelUtility/Laundry Room
- Lighting:
- Smart Lights
- Property amenities:
- BasementWalk-in ShowerSmart Home SystemPorch
- Rooms:
- Primary Bedroom On MainKitchenDining RoomFamily RoomOpen Concept FloorplanPrimary Bedroom Downstairs
Room details
Master Bedroom
Kitchen
Family Room
Utility information
- Heating:
- Heat Pump, Zoned Heating
- Utilities:
- Electricity Available, Cable Available, Water Available

Community details
Daniel Farms
by Eastwood Homes, Benson, NC
- 17 homes
- 9 plans
- 1,541 - 3,051 sqft
View Daniel Farms details
Community amenities
- Community Pool
More homes in Daniel Farms
- Home at address 32 Quilting Dr, Benson, NC 27504

$399,900
Move-in ready- 4 bd
- 3 ba
- 2,162 sqft
32 Quilting Dr, Benson, NC 27504
- Home at address 529 Highview Dr, Benson, NC 27504

$399,900
Move-in ready- 4 bd
- 3.5 ba
- 1,913 sqft
529 Highview Dr, Benson, NC 27504
- Home at address 56 Flannel Ct, Benson, NC 27504

$424,900
Move-in ready- 4 bd
- 2.5 ba
- 2,600 sqft
56 Flannel Ct, Benson, NC 27504
- Home at address 56 Flannel Ct, Unit 251, Benson, NC 27504

$424,900
Move-in ready- 4 bd
- 2.5 ba
- 2,591 sqft
56 Flannel Ct, Unit 251, Benson, NC 27504
- Home at address 41 Quilting Dr, Unit 193, Benson, NC 27504

$449,900
Move-in ready- 5 bd
- 3 ba
- 3,047 sqft
41 Quilting Dr, Unit 193, Benson, NC 27504
- Home at address 41 Quilting Dr, Benson, NC 27504

$449,900
Move-in ready- 5 bd
- 3 ba
- 3,051 sqft
41 Quilting Dr, Benson, NC 27504
Floor plans in Daniel Farms
About the builder - Eastwood Homes
Neighborhood
Home address
Schools in Johnston County Schools
GreatSchools’ Summary Rating calculation is based on 4 of the school’s themed ratings, including test scores, student/academic progress, college readiness, and equity. This information should only be used as a reference. Jome is not affiliated with GreatSchools and does not endorse or guarantee this information. Please reach out to schools directly to verify all information and enrollment eligibility. Data provided by GreatSchools.org © 2025
Places of interest
Getting around
Noise level
A Soundscore™ rating is a number between 50 (very loud) and 100 (very quiet) that tells you how loud a location is due to environmental noise.
Financials
Nearby communities in Benson
Homes in Benson by Eastwood Homes
Recently added communities in this area
Other Builders in Benson, NC
Nearby sold homes
New homes in nearby cities
More New Homes in Benson, NC
Eastwood Construction LLC, MLS 10095465
© 2025 Doorify MLS, Inc. of North Carolina. All rights reserved. Brokers make an effort to deliver accurate information, but buyers should independently verify any information on which they will rely in a transaction. The listing broker shall not be responsible for any typographical errors, misinformation, or misprints, and they shall be held totally harmless from any damages arising from reliance upon this data. This data is provided exclusively for consumers’ personal, non-commercial use. Some IDX listings have been excluded from this IDX display. Closed (sold) listings may have been listed and/or sold by a real estate firm other than the firm(s) featured on this website. Closed data is not available until the sale of the property is recorded in the MLS. Home sale data is not an appraisal, CMA, competitive or comparative market analysis, or home valuation of any property. Listings marked with an icon are provided courtesy of the Doorify MLS, Inc. of North Carolina, Internet Data Exchange Database.
Read moreLast checked Mar 28, 4:10 pm
- Jome
- New homes search
- North Carolina
- Raleigh-Durham Area
- Johnston County
- Benson
- Daniel Farms
- 38 Gander Dr, Benson, NC 27504









































































