






































- 3 bd
- 2.5 ba
- 1,666 sqft
1111 Overbrook Pl, Wingate, NC 28174
- Townhouse
- $153.06/sqft
- Northwest facing
- 0.05-acre lot
New Homes for Sale Near 1111 Overbrook Pl, Wingate, NC 28174
About this Home
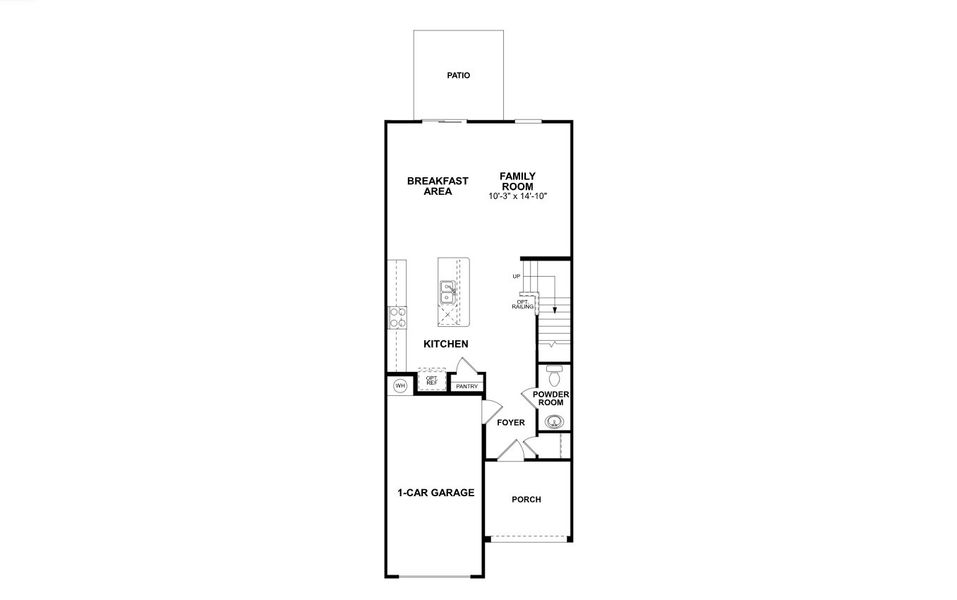
Welcome to the Manchester at Canterbury Station! This community is located just minutes from Wingate University and offers all the amenities needed for a functional lifestyle. This former model home comes as-is and does not include furnishings. Walking in from the front porch you are greeted with a warm and inviting foyer. The open floorplan provides easy access to the kitchen, family room and breakfast area to ensure conversations flow. You'll be sure to feel like a chef with a kitchen equipped with stainless steel appliances, a French door refrigerator, granite countertops and a kitchen island with a sink. The family room is spacious and can accomodate a sectional as well as other furniture. Through the sliding glass door is a patio to entertain or enjoy a morning coffee. The main level is finished with easily maintainable EVP flooring to allow for quick cleaning, while throughout the home is modern matte black hardware and window treatments that elevate the homes interior. Upstairs the two secondary bedrooms provide space for guests, family members or a home office. The secondary bathroom allows everyone to have privacy and comfort while getting ready. The laundry room is centrally located and is equipped with a washer and dryer as well as a sink to help make laundry days go smoothly. Finally, the Owner's suite is fit for royalty, featuring LED lighting, a tray ceiling and expansive walk-in closet that is sure to accommodate any size wardrobe. The en-suite features a tiled shower, dual vanity and private toilet area to allow everyone space and privacy to get ready in the mornings. Welcome to your new home!
M/I Homes, MLS CAR4339838
May also be listed on the M/I Homes website
Information last verified by Jome: Wednesday at 11:00 AM (April 29, 2026)
Home details
- Property status:
- Sold
- Lot size (acres):
- 0.05
- Size:
- 1,666 sqft
- Stories:
- 2
- Beds:
- 3
- Baths:
- 2
- Half baths:
- 1
- Garage spaces:
- 1
- Facing direction:
- Northwest
Construction details
- Builder Name:
- M/I Homes
- Completion Date:
- May, 2025
- Year Built:
- 2025
Home features & finishes
- Appliances:
- Ice Maker
- Construction Materials:
- CementStone
- Cooling:
- Central Air
- Flooring:
- Vinyl FlooringCarpet FlooringTile Flooring
- Foundation Details:
- Slab
- Garage/Parking:
- Door OpenerGarageFront Entry Garage/ParkingAttached Garage
- Interior Features:
- Walk-In ClosetFoyerPantrySliding Doors
- Kitchen:
- DishwasherMicrowave OvenOvenRefrigeratorDisposalGas CooktopKitchen IslandGas OvenKitchen Range
- Laundry facilities:
- Laundry Facilities On Upper LevelDryerWasherUtility/Laundry Room
- Property amenities:
- IrrigationPatioPorch
- Rooms:
- KitchenPowder RoomFamily RoomBreakfast AreaOpen Concept FloorplanPrimary Bedroom Upstairs
- Security system:
- Carbon Monoxide Detector
Utility information
- Heating:
- Zoned Heating, Gas Heating, Forced Air Heating
- Sewer:
- Public Sewer
- Utilities:
- Natural Gas on Property, Cable Available
- Water source:
- Public

Community details
Canterbury Station
by M/I Homes, Wingate, NC
- 17 homes
- 9 plans
- 1,601 - 3,112 sqft
View Canterbury Station details
Community amenities
- Playground
- Community Pool
- Cabana
More homes in Canterbury Station
- Home at address 1157 Overbrook Pl, Wingate, NC 28174

$258,990
Under construction- 3 bd
- 2.5 ba
- 1,601 sqft
1157 Overbrook Pl, Wingate, NC 28174
- Home at address 1022 Overbrook Pl, Wingate, NC 28174

$262,990
Move-in ready- 3 bd
- 2.5 ba
- 1,666 sqft
1022 Overbrook Pl, Wingate, NC 28174
- Home at address 1149 Overbrook Pl, Wingate, NC 28174

$262,990
Under construction- 3 bd
- 2.5 ba
- 1,666 sqft
1149 Overbrook Pl, Wingate, NC 28174
- Home at address 1358 Fremont Dr, Wingate, NC 28174

$365,000
Under construction- 4 bd
- 2.5 ba
- 1,991 sqft
1358 Fremont Dr, Wingate, NC 28174
- Home at address 1414 Bucknell St, Wingate, NC 28174

$365,000
Under construction- 4 bd
- 2.5 ba
- 1,991 sqft
1414 Bucknell St, Wingate, NC 28174
- Home at address 1317 Fremont Dr, Wingate, NC 28174

$367,000
Under construction- 5 bd
- 3 ba
- 2,600 sqft
1317 Fremont Dr, Wingate, NC 28174
Floor plans in Canterbury Station
About the builder - M/I Homes

- 141communities on Jome
- 1,768homes on Jome
Neighborhood
Home address
Schools in Union County Public Schools
GreatSchools’ Summary Rating calculation is based on 4 of the school’s themed ratings, including test scores, student/academic progress, college readiness, and equity. This information should only be used as a reference. Jome is not affiliated with GreatSchools and does not endorse or guarantee this information. Please reach out to schools directly to verify all information and enrollment eligibility. Data provided by GreatSchools.org © 2025
Places of interest
Getting around
Air quality
Noise level
A Soundscore™ rating is a number between 50 (very loud) and 100 (very quiet) that tells you how loud a location is due to environmental noise.
Financials
Nearby communities in Wingate
Homes in Wingate by M/I Homes
Recently added communities in this area
Other Builders in Wingate, NC
Nearby sold homes
New homes in nearby cities
More New Homes in Wingate, NC
M/I Homes, MLS CAR4339838
Based on information submitted to the MLS GRID as of 10/21/2024 2:31 PM CDT. All data is obtained from various sources and may not have been verified by the broker or MLS GRID. Supplied Open House Information is subject to change without notice. All information should be independently reviewed and verified for accuracy. Properties may or may not be listed by the office/agent presenting the information. Properties displayed may be listed or sold by various participants in the MLS. The Digital Millennium Copyright Act of 1998, 17 U.S.C. § 512 (the “DMCA”) provides recourse for copyright owners who believe that material appearing on the Internet infringes their rights under U.S. copyright law. If you believe in good faith that any content or material made available in connection with our website or services infringes your copyright, you (or your agent) may send us a notice requesting that the content or material be removed, or access to it blocked. Notices must be sent in writing by email to DMCAnotice@MLSGrid.com. The DMCA requires that your notice of alleged copyright infringement include the following information: (1) description of the copyrighted work that is the subject of claimed infringement; (2) description of the alleged infringing content and information sufficient to permit us to locate the content; (3) contact information for you, including your address, telephone number and email address; (4) a statement by you that you have a good faith belief that the content in the manner complained of is not authorized by the copyright owner, or its agent, or by the operation of any law; (5) a statement by you, signed under penalty of perjury, that the information in the notification is accurate and that you have the authority to enforce the copyrights that are claimed to be infringed; and (6) a physical or electronic signature of the copyright owner or a person authorized to act on the copyright owner’s behalf. Failure to include all of the above information may result in the delay of the processing of your complaint.
Read moreLast checked May 16, 5:00 pm
- Jome
- New homes search
- North Carolina
- Charlotte Metropolitan Area
- Union County
- Wingate
- Canterbury Station
- 1111 Overbrook Pl, Wingate, NC 28174




































































