







Book your tour. Save an average of $18,473. We'll handle the rest.
We collect exclusive builder offers, book your tours, and support you from start to housewarming.
- Confirmed tours
- Get matched & compare top deals
- Expert help, no pressure
- No added fees
Estimated value based on Jome data, T&C apply





















- 5 bd
- 3 ba
- 2,511 sqft
369 Flat Rock Trce, Port Wentworth, GA 31407
Why tour with Jome?
- No pressure toursTour at your own pace with no sales pressure
- Expert guidanceGet insights from our home buying experts
- Exclusive accessSee homes and deals not available elsewhere
Jome is featured in
- Single-Family
- Quick move-in
- $158.9/sqft
- 3 days on Jome
Home description
About this home
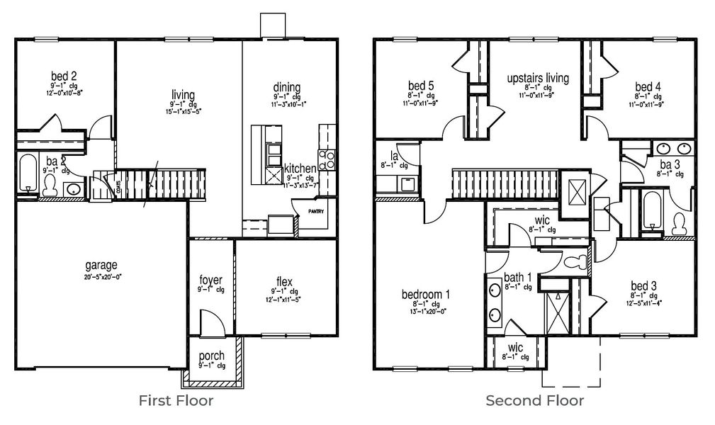
Step into the Hayden—our most spacious floor plan in Rice Hope, offering a generous 2,511 square feet, 5 bedrooms, 3 full bathrooms, a versatile flex space, upstairs loft, and a roomy 2-car garage. If you're looking for room to live, work, play, and grow—this home has it all.
The first floor welcomes you with a bright foyer that opens to a flexible front room—perfect as a home office, playroom, or formal sitting area. The open-concept kitchen and living space are made for connection, featuring stainless steel appliances, a large island that invites conversation, and a walk-in pantry big enough to handle everything from kitchen devices to holiday baking supplies. A main-level bedroom and full bath provide an ideal setup for guests, extended family, or multigenerational living.
Upstairs, the primary suite impresses with a spacious layout, his and hers walk-in closets, and a spa-like bath with double sinks and a large walk-in shower. Three additional bedrooms and a shared bath give everyone their own space, while the loft offers a second living area for movie nights, game days, or creative corners. A convenient upstairs laundry room rounds out the ease of everyday living.
Packed with smart features, thoughtful design, and room for everything (and everyone), the Hayden is the ultimate upgrade for families ready to stretch out and stay awhile
Home is under construction. Pictures, photographs, colors, features, & sizes are for illustration purposes only and will vary from the homes as built. The photos are Not of subject property.
May also be listed on the D.R. Horton website
Information last verified by Jome: Today at 1:27 AM (April 19, 2026)
Book your tour. Save an average of $18,473. We'll handle the rest.
We collect exclusive builder offers, book your tours, and support you from start to housewarming.
- Confirmed tours
- Get matched & compare top deals
- Expert help, no pressure
- No added fees
Estimated value based on Jome data, T&C apply
Home details
- Property status:
- Move-in ready
- Size:
- 2,511 sqft
- Stories:
- 2
- Beds:
- 5
- Baths:
- 3
- Garage spaces:
- 2
Construction details
- Builder Name:
- D.R. Horton
Home features & finishes
- Garage/Parking:
- GarageAttached Garage
- Interior Features:
- Walk-In ClosetFoyerPantry
- Laundry facilities:
- Utility/Laundry Room
- Property amenities:
- Porch
- Rooms:
- Flex RoomKitchenDining RoomOpen Concept FloorplanPrimary Bedroom Upstairs

Get a consultation with our New Homes Expert
- See how your home builds wealth
- Plan your home-buying roadmap
- Discover hidden gems

Community details
Rice Hope
by D.R. Horton, Port Wentworth, GA
- 49 homes
- 22 plans
- 1,045 - 2,511 sqft
View Rice Hope details
More homes in Rice Hope
- Home at address 413 Flat Rock Trce, Port Wentworth, GA 31407

Robie
$368,990
- 5 bd
- 3 ba
- 2,361 sqft
413 Flat Rock Trce, Port Wentworth, GA 31407
- Home at address 377 Flat Rock Trce, Port Wentworth, GA 31407

Hayden
$400,990
- 5 bd
- 3 ba
- 2,511 sqft
377 Flat Rock Trce, Port Wentworth, GA 31407
Floor plans in Rice Hope
About the builder - D.R. Horton

- 1,155communities on Jome
- 10,700homes on Jome
Neighborhood
Home address
- City:
- Port Wentworth
- County:
- Chatham
- Zip Code:
- 31407
Schools in Chatham County School District
GreatSchools’ Summary Rating calculation is based on 4 of the school’s themed ratings, including test scores, student/academic progress, college readiness, and equity. This information should only be used as a reference. Jome is not affiliated with GreatSchools and does not endorse or guarantee this information. Please reach out to schools directly to verify all information and enrollment eligibility. Data provided by GreatSchools.org © 2025
Places of interest
Getting around
Noise level
A Soundscore™ rating is a number between 50 (very loud) and 100 (very quiet) that tells you how loud a location is due to environmental noise.

Considering this home?
Our expert will guide your tour, in-person or virtual
Need more information?
Text or call (888) 545-5198
Financials
Estimated monthly payment
Let us help you find your dream home
How many bedrooms are you looking for?
Similar homes nearby
Recently added communities in this area
Nearby communities in Port Wentworth
New homes in nearby cities
More New Homes in Port Wentworth, GA
- Jome
- New homes search
- Georgia
- Chatham County
- Port Wentworth
- Rice Hope
- 369 Flat Rock Trce, Port Wentworth, GA 31407























