














Book your tour. Save an average of $18,473. We'll handle the rest.
We collect exclusive builder offers, book your tours, and support you from start to housewarming.
- Confirmed tours
- Get matched & compare top deals
- Expert help, no pressure
- No added fees
Estimated value based on Jome data, T&C apply


























































- 3 bd
- 2.5 ba
- 2,280 sqft
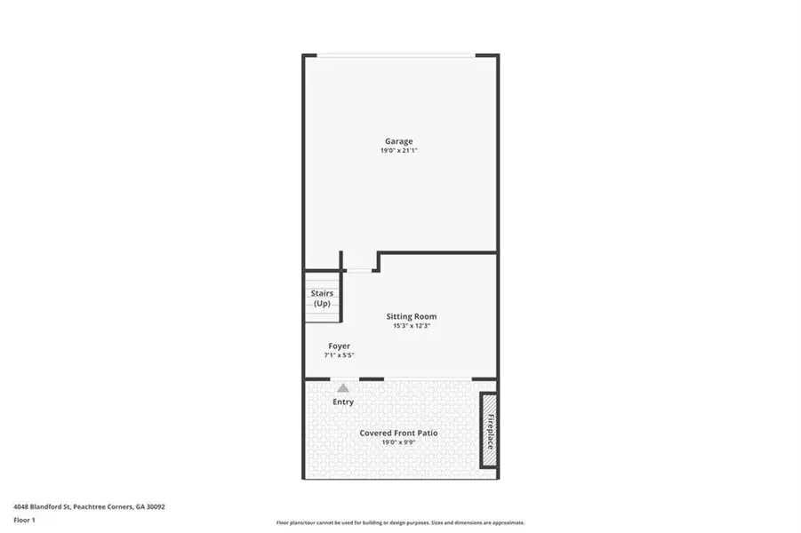
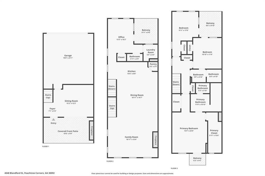
4048 Blandford St, Peachtree Corners, GA 30092
Why tour with Jome?
- No pressure toursTour at your own pace with no sales pressure
- Expert guidanceGet insights from our home buying experts
- Exclusive accessSee homes and deals not available elsewhere
Jome is featured in
- Townhouse
- Quick move-in
- $337.67/sqft
- $300/monthly HOA
Home description
LOOK NO FURTHER! INCREDIBLE OPPORTUNITY for LUXURY RESORT-STYLE LIVING in the SOUGHT-AFTER & SOLD OUT BENTON I Floorplan! LIKE NEW, BUT BETTER, this is THE ONLY TH AVAILABLE with a RELAXING & PRIVATE, BRICK PAVER COVERED PATIO offering GAS FP & LG FORMAT TRIPLE SLIDING DOORS that bring the outdoors in! OVER $20K in UPGRADES such as WOOD & TILE FLOORS, FULLY CUSTOM CLOSETS, HIGH-END WINDOW TREATMENTS & WALK-IN KITCHEN PANTRY! This END UNIT is filled with large windows & bathed in natural light. The OPEN CONCEPT Floor plan features a STUNNING GOURMET ISLAND KITCHEN featuring QUARTZ COUNTERTOPS, BUILT-IN STAINLESS APPLIANCES including VENT HOOD, FARM SINK & DESIGNER TILE BACKSPLASH. The OVERSIZED DINING AREA & FIRESIDE LIVING ROOM flow into the Kitchen. A Light-Filled PRIVATE OFFICE/STUDY with CUSTOMIZED STORAGE CLOSET leads to a covered deck. Upstairs, the OWNER'S SUITE features a LARGE CUSTOM CLOSET, TILE BATH with OVERSIZED TRIPLE-HEAD SHOWER including BENCH SEAT, DOUBLE SINK VANITY & PRIVATE BALCONY. Two Additional BRs Up access the 4th OUTDOOR LIVING SPACE. A LARGE, INVITING DUAL SINK HALL Bath. PULL DOWN ATTIC STAIRS ACCESS an AMAZING AMOUNT OF STORAGE SPACE! As a WATERSIDE RESIDENT, you'll have access to THE BEST UNMATCHED AMENITIES in the area including WALKING TRAILS viewing the CHATTAHOOCHEE RIVER; multiple large & open fully landscaped GREENSPACE LAWNS, a FIREPIT GATHERING AREA, covered grilling & dining area, resort-style SWIMMING POOL, TENNIS & PICKLEBALL courts. The 7,100 sq. ft. CLUBHOUSE boasts a HEALTH & FITNESS CENTER featuring a spa kitchen, catering kitchen for events, coffee bar area, card room, conference rooms, state-of-the-art, FULLY EQUIPPED GYM, aerobics room for group exercise and two massage rooms for relaxation. The gated community is approved for golf carts so residents can take full advantage of the elevated lifestyle. Builder's 2/10 WARRANTY TRANSFERS to NEW OWNER(Sq.Ft. in listing is per the County Tax Record.)
RE/MAX Around Atlanta, MLS 7721968
May also be listed on the The Providence Group website
Information last verified by Jome: Today at 2:23 AM (February 27, 2026)
Home highlights
Versatile arena in Duluth hosting concerts, sports, and events near Gwinnett’s shops and residential communities.
Book your tour. Save an average of $18,473. We'll handle the rest.
We collect exclusive builder offers, book your tours, and support you from start to housewarming.
- Confirmed tours
- Get matched & compare top deals
- Expert help, no pressure
- No added fees
Estimated value based on Jome data, T&C apply
Home details
- Property status:
- Move-in ready
- Lot size (acres):
- 0.04
- Size:
- 2,280 sqft
- Beds:
- 3
- Baths:
- 2
- Half baths:
- 1
- Garage spaces:
- 2
Construction details
- Builder Name:
- The Providence Group
- Year Built:
- 2025
- Roof:
- Roof Gutter, Composition Roofing, Shingle Roofing
Home features & finishes
- Construction Materials:
- CementBrick
- Cooling:
- Ceiling Fan(s)Central Air
- Flooring:
- Ceramic FlooringTile FlooringHardwood Flooring
- Foundation Details:
- Slab
- Garage/Parking:
- Door OpenerGarageCovered Garage/ParkingRear Entry Garage/ParkingAttached Garage
- Home amenities:
- InternetENERGY STAR CertifiedGreen Construction
- Interior Features:
- Ceiling-HighWindow TreatmentsCrown MoldingBreakfast BarWalk-In PantryDouble Vanity
- Kitchen:
- DishwasherMicrowave OvenDisposalGas CooktopSelf Cleaning OvenKitchen IslandElectric Oven
- Laundry facilities:
- Laundry Facilities On Main LevelUtility/Laundry Room
- Lighting:
- Lighting
- Property amenities:
- Cul-de-sacBasementBarBalconyDeckGas Log FireplaceOutdoor FireplaceCourtyardLandscapingCabinetsPatioFireplaceYardPorch
- Rooms:
- AtticBonus RoomKitchenDen RoomOffice/StudyFamily RoomLiving RoomOpen Concept Floorplan
- Security system:
- Smoke DetectorCarbon Monoxide Detector

Get a consultation with our New Homes Expert
- See how your home builds wealth
- Plan your home-buying roadmap
- Discover hidden gems
Utility information
- Heating:
- Electric Heating, Water Heater, Central Heating, Tankless water heater
- Utilities:
- Electricity Available, Natural Gas Available, Underground Utilities, Phone Available, HVAC, Cable Available, Sewer Available, Water Available, High Speed Internet Access
Community amenities
- Woods View
- Playground
- Fitness Center/Exercise Area
- Club House
- Tennis Courts
- Gated Community
- Community Pool
- Sidewalks Available
- Walking, Jogging, Hike Or Bike Trails
- Pickleball Court
About the builder - The Providence Group
Neighborhood
Home address
- City:
- Peachtree Corners
- County:
- Gwinnett
- Zip Code:
- 30092
Schools in Gwinnett County School District
- Grades PK-KGPrivatepeachtree park prep2.1 mi9670 ventana wayna
GreatSchools’ Summary Rating calculation is based on 4 of the school’s themed ratings, including test scores, student/academic progress, college readiness, and equity. This information should only be used as a reference. Jome is not affiliated with GreatSchools and does not endorse or guarantee this information. Please reach out to schools directly to verify all information and enrollment eligibility. Data provided by GreatSchools.org © 2025
Places of interest
Getting around
Air quality
Natural hazards risk
Provided by FEMA

Considering this home?
Our expert will guide your tour, in-person or virtual
Need more information?
Text or call (888) 488-9243
Financials
Estimated monthly payment
Let us help you find your dream home
How many bedrooms are you looking for?
Similar homes nearby
Recently added communities in this area
Nearby communities in Peachtree Corners
New homes in nearby cities
More New Homes in Peachtree Corners, GA
RE/MAX Around Atlanta, MLS 7721968
Some IDX listings have been excluded from this IDX display. Listings identified with the FMLS IDX logo come from FMLS and are held by brokerage firms other than the owner of this website. The listing brokerage is identified in any listing details. Information is deemed reliable but is not guaranteed. If you believe any FMLS listing contains material that infringes your copyrighted work please click here to review our DMCA policy and learn how to submit a takedown request. © 2025 First Multiple Listing Service, Inc.
Read moreLast checked Feb 27, 1:40 am
- Jome
- New homes search
- Georgia
- Atlanta Metropolitan Area
- Gwinnett County
- Peachtree Corners
- 4048 Blandford St, Peachtree Corners, GA 30092
























