





Book your tour. Save an average of $18,473. We'll handle the rest.
We collect exclusive builder offers, book your tours, and support you from start to housewarming.
- Confirmed tours
- Get matched & compare top deals
- Expert help, no pressure
- No added fees
Estimated value based on Jome data, T&C apply
- 5 bd
- 3 ba
- 2,825 sqft
393 Tranquil South- Tbd Pitchline Dr, Hinesville, GA 31313
Why tour with Jome?
- No pressure toursTour at your own pace with no sales pressure
- Expert guidanceGet insights from our home buying experts
- Exclusive accessSee homes and deals not available elsewhere
Jome is featured in
- Single-Family
- Ready by July 2026
- $133.69/sqft
- 0.17-acre lot
Home description
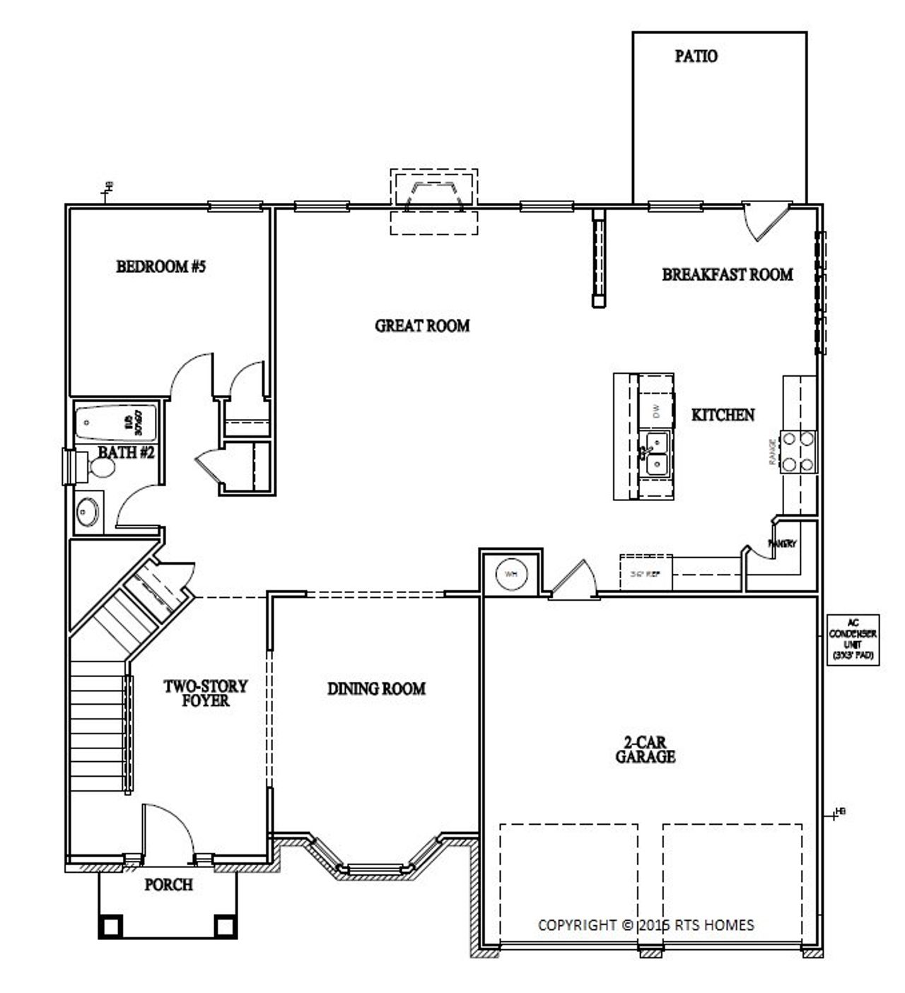
The Screven, a thoughtfully designed two-story plan with 5 bedrooms and 3 full baths. The main floor showcases a dramatic two-story foyer, spacious kitchen with island, double wall oven, flat cooktop, breakfast area, and separate dining room, all open to the great room with a cozy gas fireplace- perfect for gatherings. A first-floor bedroom with full bath makes an ideal guest suite or home office. Upstairs, the expansive primary suite features a large bath with separate shower and walk-in closet. Three additional bedrooms share a full hall bath, and the laundry room is conveniently located on the second floor. Iron spindles, modern finishes, and a 0.95-acre homesite provide style, function, and space for outdoor living. Artistic renderings are for informational purposes only. Actual floor plans, features and inclusions may vary.
May also be listed on the RTS Homes website
Information last verified by Jome: Yesterday at 12:03 PM (February 19, 2026)
Book your tour. Save an average of $18,473. We'll handle the rest.
We collect exclusive builder offers, book your tours, and support you from start to housewarming.
- Confirmed tours
- Get matched & compare top deals
- Expert help, no pressure
- No added fees
Estimated value based on Jome data, T&C apply
Home details
- Property status:
- Under construction
- Lot size (acres):
- 0.17
- Size:
- 2,825 sqft
- Stories:
- 2
- Beds:
- 5
- Baths:
- 3
- Garage spaces:
- 2
Construction details
- Builder Name:
- RTS Homes
- Completion Date:
- July, 2026
Home features & finishes
- Garage/Parking:
- Garage

Get a consultation with our New Homes Expert
- See how your home builds wealth
- Plan your home-buying roadmap
- Discover hidden gems

Community details
Tranquil South
by RTS Homes, Hinesville, GA
- 8 homes
- 17 plans
- 1,643 - 3,079 sqft
View Tranquil South details
More homes in Tranquil South
- Home at address 428 Tranquil South- Tbd Pitchline Dr, Hinesville, GA 31313

The Denmark
$318,975
- 5 bd
- 3 ba
- 2,256 sqft
428 Tranquil South- Tbd Pitchline Dr, Hinesville, GA 31313
- Home at address 392 Tranquil South- Tbd Pitchline Dr, Hinesville, GA 31313

The Barrington
$329,875
- 5 bd
- 3 ba
- 2,415 sqft
392 Tranquil South- Tbd Pitchline Dr, Hinesville, GA 31313
Floor plans in Tranquil South
About the builder - RTS Homes
Neighborhood
Home address
- City:
- Hinesville
- County:
- Liberty
- Zip Code:
- 31313
Schools in Liberty County School District
GreatSchools’ Summary Rating calculation is based on 4 of the school’s themed ratings, including test scores, student/academic progress, college readiness, and equity. This information should only be used as a reference. Jome is not affiliated with GreatSchools and does not endorse or guarantee this information. Please reach out to schools directly to verify all information and enrollment eligibility. Data provided by GreatSchools.org © 2025
Places of interest
Getting around

Considering this home?
Our expert will guide your tour, in-person or virtual
Need more information?
Text or call (888) 488-9243
Financials
Estimated monthly payment
Let us help you find your dream home
How many bedrooms are you looking for?
Similar homes nearby
Recently added communities in this area
Nearby communities in Hinesville
New homes in nearby cities
More New Homes in Hinesville, GA
- Jome
- New homes search
- Georgia
- Liberty County
- Hinesville
- Tranquil South
- 393 Tranquil South- Tbd Pitchline Dr, Hinesville, GA 31313






























