



Book your tour. Save an average of $18,473. We'll handle the rest.
We collect exclusive builder offers, book your tours, and support you from start to housewarming.
- Confirmed tours
- Get matched & compare top deals
- Expert help, no pressure
- No added fees
Estimated value based on Jome data, T&C apply
Why tour with Jome?
- No pressure toursTour at your own pace with no sales pressure
- Expert guidanceGet insights from our home buying experts
- Exclusive accessSee homes and deals not available elsewhere
Jome is featured in
- Single-Family
- Ready by July 2026
- $135.98/sqft
- 0.17-acre lot
Home description
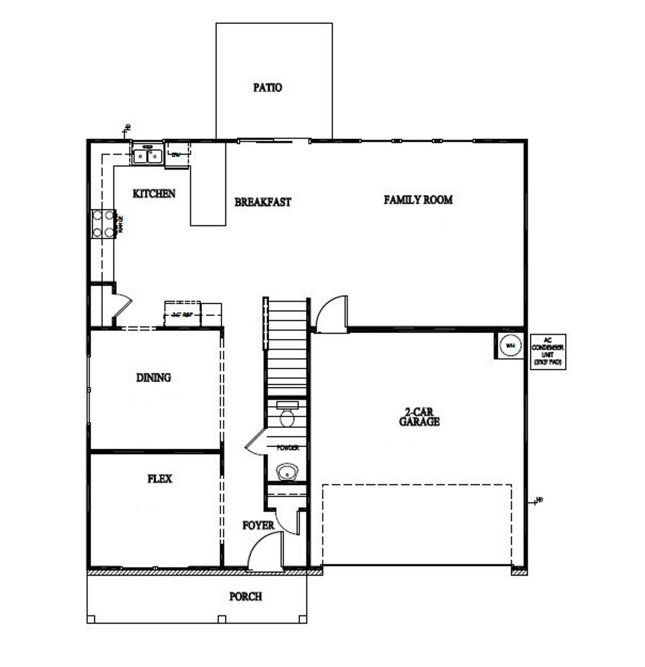
Welcome to the Duncan plan in Tranquil South. This two-story home offers 4 bedrooms, 2.5 bathrooms, and a 2-car garage. A covered front porch opens to a foyer with a versatile flex room, ideal for an office, playroom, or additional living space. A separate dining room provides room for gatherings, while the kitchen features ample cabinetry and counter space, flowing into the breakfast area and family room for an open feel. Upstairs, the owner’s suite includes two walk-in closets and a private bath with dual sinks, soaking tub, separate shower, and water closet. Three additional bedrooms share a full bath with double sinks, and a centrally located laundry room adds convenience.
May also be listed on the RTS Homes website
Information last verified by Jome: Yesterday at 12:28 PM (March 19, 2026)
Book your tour. Save an average of $18,473. We'll handle the rest.
We collect exclusive builder offers, book your tours, and support you from start to housewarming.
- Confirmed tours
- Get matched & compare top deals
- Expert help, no pressure
- No added fees
Estimated value based on Jome data, T&C apply
Home details
- Property status:
- Under construction
- Lot size (acres):
- 0.17
- Size:
- 2,395 sqft
- Stories:
- 2
- Beds:
- 4
- Baths:
- 2
- Half baths:
- 1
- Garage spaces:
- 2
Construction details
- Builder Name:
- RTS Homes
- Completion Date:
- July, 2026
Home features & finishes
- Garage/Parking:
- Garage

Get a consultation with our New Homes Expert
- See how your home builds wealth
- Plan your home-buying roadmap
- Discover hidden gems

Community details
Tranquil South
by RTS Homes, Hinesville, GA
- 10 homes
- 17 plans
- 1,643 - 3,079 sqft
View Tranquil South details
More homes in Tranquil South
- Home at address TBD Pitchline Dr, Unit 390, Hinesville, GA 31313

The Anderson
$292,575
- 4 bd
- 2.5 ba
- 1,810 sqft
TBD Pitchline Dr, Unit 390, Hinesville, GA 31313
- Home at address 391 Tranquil South- Tbd Pitchline Dr, Hinesville, GA 31313

The Bagley
$308,775
- 4 bd
- 2.5 ba
- 2,065 sqft
391 Tranquil South- Tbd Pitchline Dr, Hinesville, GA 31313
- Home at address 427 Tranquil South- Tbd Pitchline Dr, Hinesville, GA 31313

The Chatman
$310,925
- 4 bd
- 2.5 ba
- 2,002 sqft
427 Tranquil South- Tbd Pitchline Dr, Hinesville, GA 31313
- Home at address 428 Tranquil South- Tbd Pitchline Dr, Hinesville, GA 31313

The Denmark
$318,975
- 5 bd
- 3 ba
- 2,256 sqft
428 Tranquil South- Tbd Pitchline Dr, Hinesville, GA 31313
Floor plans in Tranquil South
About the builder - RTS Homes
Neighborhood
Home address
- City:
- Hinesville
- County:
- Liberty
- Zip Code:
- 31313
Schools in Liberty County School District
GreatSchools’ Summary Rating calculation is based on 4 of the school’s themed ratings, including test scores, student/academic progress, college readiness, and equity. This information should only be used as a reference. Jome is not affiliated with GreatSchools and does not endorse or guarantee this information. Please reach out to schools directly to verify all information and enrollment eligibility. Data provided by GreatSchools.org © 2025
Places of interest
Getting around

Considering this home?
Our expert will guide your tour, in-person or virtual
Need more information?
Text or call (888) 545-5198
Financials
Estimated monthly payment
Let us help you find your dream home
How many bedrooms are you looking for?
Similar homes nearby
Recently added communities in this area
Nearby communities in Hinesville
New homes in nearby cities
More New Homes in Hinesville, GA
- Jome
- New homes search
- Georgia
- Liberty County
- Hinesville
- Tranquil South
- Hinesville, GA 31313


































