



Book your tour. Save an average of $18,473. We'll handle the rest.
- Confirmed tours
- Get matched & compare top deals
- Expert help, no pressure
- No added fees
Estimated value based on Jome data, T&C apply
- 3 bd
- 2 ba
- 1,183 sqft
14 Evergreen Cir, Rossville, GA 30741
Why tour with Jome?
- No pressure toursTour at your own pace with no sales pressure
- Expert guidanceGet insights from our home buying experts
- Exclusive accessSee homes and deals not available elsewhere
Jome is featured in
- Single-Family
- Quick move-in
- $228.19/sqft
- 63 days on Jome
Home description
About this home
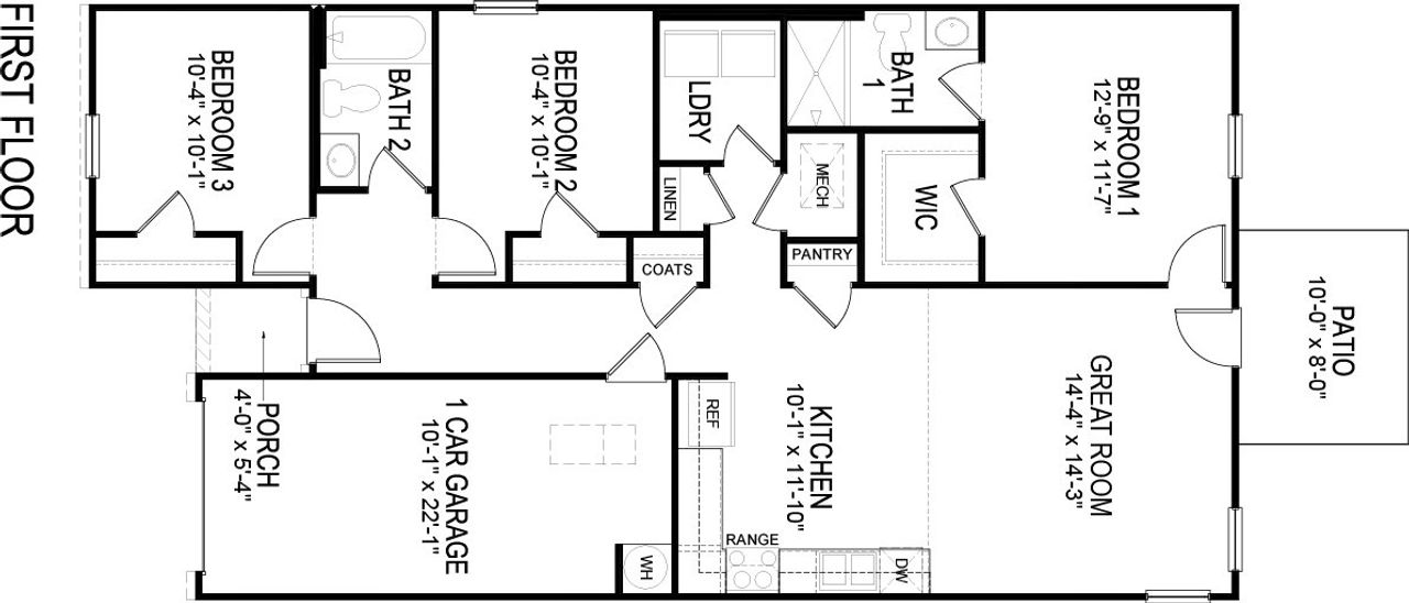
Welcome to 14 Evergreen Circle, featuring the thoughtfully designed Sullivan plan in the Evergreen Landing community of Rossville, Georgia. This single-story home offers 1,183 square feet of comfortable living space and includes a one-car garage.
At the front of the home, two bedrooms share a full bathroom, making them perfect for guests, family, or a home office. The open-concept living and kitchen area sits at the center of the home, providing a spacious and inviting layout ideal for everyday living. A convenient laundry room and access to a private patio add to the home’s functionality.
The primary suite is located at the back of the home, offering added privacy. It features a walk-in closet and a full en-suite bathroom for your comfort.
Whether you’re a first-time buyer, downsizing, or seeking low-maintenance living, the Sullivan plan is a perfect fit.
May also be listed on the D.R. Horton website
Information last verified by Jome: Today at 3:31 AM (January 19, 2026)
Book your tour. Save an average of $18,473. We'll handle the rest.
We collect exclusive builder offers, book your tours, and support you from start to housewarming.
- Confirmed tours
- Get matched & compare top deals
- Expert help, no pressure
- No added fees
Estimated value based on Jome data, T&C apply
Home details
- Property status:
- Move-in ready
- Size:
- 1,183 sqft
- Stories:
- 1
- Beds:
- 3
- Baths:
- 2
- Garage spaces:
- 1
Construction details
- Builder Name:
- D.R. Horton
Home features & finishes
- Garage/Parking:
- Garage
- Rooms:
- Primary Bedroom On MainPrimary Bedroom Downstairs

Get a consultation with our New Homes Expert
- See how your home builds wealth
- Plan your home-buying roadmap
- Discover hidden gems

Community details
Evergreen Landing
by D.R. Horton, Rossville, GA
- 5 homes
- 5 plans
- 1,183 - 2,361 sqft
View Evergreen Landing details
More homes in Evergreen Landing
- Home at address 174 Evergreen Cir, Rossville, GA 30741

Cabral
$299,999
- 3 bd
- 2.5 ba
- 1,634 sqft
174 Evergreen Cir, Rossville, GA 30741
- Home at address 178 Evergreen Cir, Rossville, GA 30741

Darwin
$307,755
- 3 bd
- 2.5 ba
- 1,749 sqft
178 Evergreen Cir, Rossville, GA 30741
- Home at address 18 Evergreen Cir, Rossville, GA 30741

Darwin
$310,045
- 3 bd
- 2.5 ba
- 1,749 sqft
18 Evergreen Cir, Rossville, GA 30741
- Home at address 182 Evergreen Cir, Rossville, GA 30741

2361
$324,860
- 5 bd
- 3 ba
- 2,361 sqft
182 Evergreen Cir, Rossville, GA 30741
Floor plans in Evergreen Landing
About the builder - D.R. Horton

- 1,201communities on Jome
- 9,103homes on Jome
Neighborhood
Home address
Schools in Catoosa County School District
GreatSchools’ Summary Rating calculation is based on 4 of the school’s themed ratings, including test scores, student/academic progress, college readiness, and equity. This information should only be used as a reference. Jome is not affiliated with GreatSchools and does not endorse or guarantee this information. Please reach out to schools directly to verify all information and enrollment eligibility. Data provided by GreatSchools.org © 2025
Places of interest
Getting around
Air quality
Noise level
A Soundscore™ rating is a number between 50 (very loud) and 100 (very quiet) that tells you how loud a location is due to environmental noise.

Considering this home?
Our expert will guide your tour, in-person or virtual
Need more information?
Text or call (888) 486-2818
Financials
Estimated monthly payment
Let us help you find your dream home
How many bedrooms are you looking for?
Similar homes nearby
Recently added communities in this area
Nearby communities in Rossville
New homes in nearby cities
More New Homes in Rossville, GA
- Jome
- New homes search
- Georgia
- Catoosa County
- Rossville
- Evergreen Landing
- 14 Evergreen Cir, Rossville, GA 30741

























