














Book your tour. Save an average of $18,473. We'll handle the rest.
- Confirmed tours
- Get matched & compare top deals
- Expert help, no pressure
- No added fees
Estimated value based on Jome data, T&C apply

























- 3 bd
- 2 ba
3078 Anderson Hwy, Hartwell, GA 30643
Why tour with Jome?
- No pressure toursTour at your own pace with no sales pressure
- Expert guidanceGet insights from our home buying experts
- Exclusive accessSee homes and deals not available elsewhere
Jome is featured in
- Single-Family
- Quick move-in
- 2.00-acre lot
- 56 days on Jome
Home description
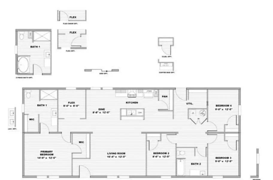
Welcome home to this BRAND NEW 2025 Clayton, Southern Energy Home on 2+ Acres! This Discover Model features - a beautifully crafted 3 bedroom, 2-bathroom floorplan sitting on just over 2 acres of land offering the perfect blend of privacy and modern comfort, and LESS than 5 minutes from all the shopping that Hartwell has to offer. Everything is brand new - from the luxury flooring to the plumbing and lighting fixtures. Enjoy a chef-ready kitchen with new cabinetry and appliances including a stove, dishwasher, and water heater. Bathrooms feature updated sinks, vanities, toilets, and tubs. You'll love the clean, modern feel throughout. This home is 100% total electric with a high-efficiency HVAC system, and it's supported by a private well and septic system. If you're looking for a move-in ready home with land and peace of mind, this is it. Please note: Some Photos shown are of a completed model home of the same floorplan and finishes. Actual home is identical in layout and design but may vary slightly in final details.
UC Premier Properties, MLS 7670806
Information last verified by Jome: Today at 2:29 AM (December 19, 2025)
Home highlights
Book your tour. Save an average of $18,473. We'll handle the rest.
We collect exclusive builder offers, book your tours, and support you from start to housewarming.
- Confirmed tours
- Get matched & compare top deals
- Expert help, no pressure
- No added fees
Estimated value based on Jome data, T&C apply
Home details
- Property status:
- Move-in ready
- Lot size (acres):
- 2.00
- Stories:
- 1
- Beds:
- 3
- Baths:
- 2
- Fence:
- No Fence
Construction details
- Year Built:
- 2025
- Roof:
- Composition Roofing
Home features & finishes
- Construction Materials:
- Vinyl Siding
- Cooling:
- Central Air
- Flooring:
- Vinyl Flooring
- Foundation Details:
- Pillar/Post/Pier
- Kitchen:
- Dishwasher
- Property amenities:
- Porch
- Rooms:
- AtticPrimary Bedroom On MainPrimary Bedroom Downstairs

Get a consultation with our New Homes Expert
- See how your home builds wealth
- Plan your home-buying roadmap
- Discover hidden gems
Utility information
- Heating:
- Central Heating
- Utilities:
- Electricity Available, Sewer Available
Community amenities
- Woods View
- Greenbelt View
Neighborhood
Home address
Schools in Hart County School District
GreatSchools’ Summary Rating calculation is based on 4 of the school’s themed ratings, including test scores, student/academic progress, college readiness, and equity. This information should only be used as a reference. Jome is not affiliated with GreatSchools and does not endorse or guarantee this information. Please reach out to schools directly to verify all information and enrollment eligibility. Data provided by GreatSchools.org © 2025
Places of interest
Getting around
Natural hazards risk
Climate hazards can impact homes and communities, with risks varying by location. These scores reflect the potential impact of natural disasters and climate-related risks on Hart County
Provided by FEMA

Considering this home?
Our expert will guide your tour, in-person or virtual
Need more information?
Text or call (888) 486-2818
Financials
Let us help you find your dream home
How many bedrooms are you looking for?
Similar homes nearby
Recently added communities in this area
Nearby communities in Hartwell
New homes in nearby cities
More New Homes in Hartwell, GA
UC Premier Properties, MLS 7670806
Some IDX listings have been excluded from this IDX display. Listings identified with the FMLS IDX logo come from FMLS and are held by brokerage firms other than the owner of this website. The listing brokerage is identified in any listing details. Information is deemed reliable but is not guaranteed. If you believe any FMLS listing contains material that infringes your copyrighted work please click here to review our DMCA policy and learn how to submit a takedown request. © 2025 First Multiple Listing Service, Inc.
Read moreLast checked Dec 19, 1:40 am
- Jome
- New homes search
- Georgia
- Hart County
- Hartwell
- 3078 Anderson Hwy, Hartwell, GA 30643



























