




























































- 5 bd
- 4 ba
- 2,801 sqft
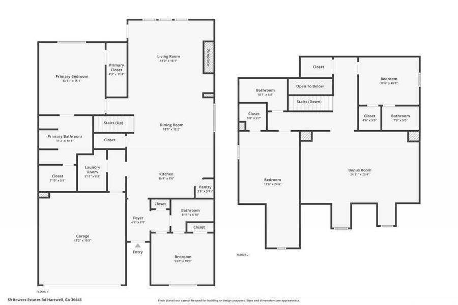
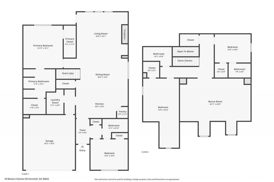
59 Bowers Estates Dr, Hartwell, GA 30643
- Single-Family
- $135.63/sqft
- $600/annual HOA
- 0.12-acre lot
New Homes for Sale Near 59 Bowers Estates Dr, Hartwell, GA 30643
About this Home
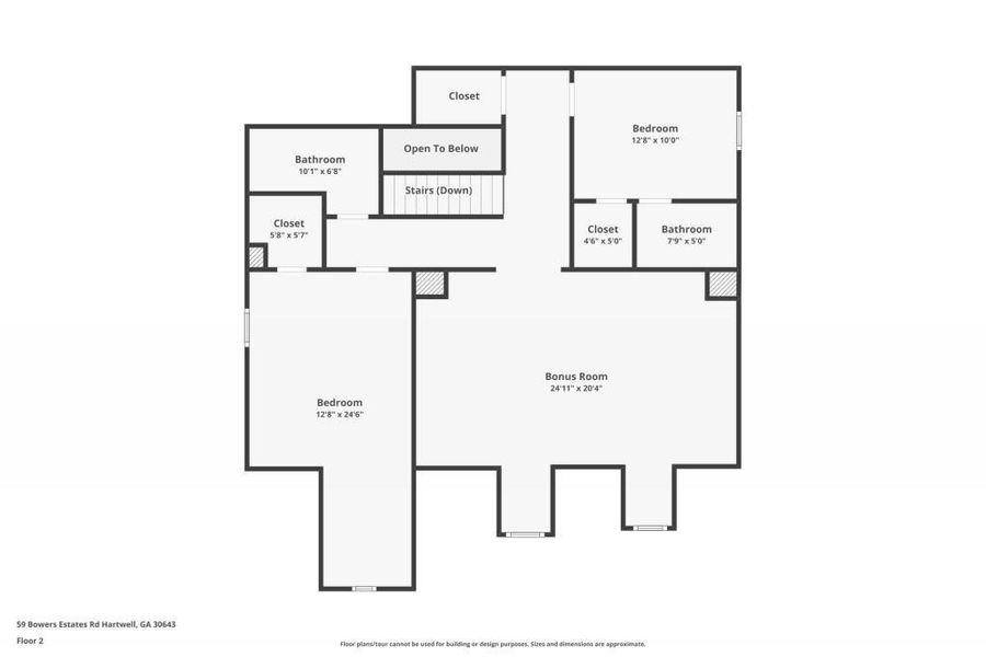
Welcome to your new 2801 sq ft home within the city limits of Hartwell and close to the lake. This new construction boasts a spacious and functional layout perfect for modern living. As you step inside, you will be greeted by an open floor plan that maximizes space and creates a welcoming atmosphere. The heart of the home is the kitchen, featuring center island with granite countertops, walk-in pantry and stainless steel appliances. Adjacent to the kitchen is the living and dining areas, providing a versatile space for entertaining guests or spending quality time with the family. The primary bedroom features 2 walk-in closets, double vanity and tiled shower. There is an additional bedroom on the main floor with bathroom, providing convenience and flexibility . Upstairs there are 3 more bedrooms, 1 of which is extremely large and would be an ideal media, game or hobby area, also with 2 bathrooms on this level. Being close to Lake Hartwell, you will have easy access to the natural beauty of the lake, perfect for water activities, fishing, or simply enjoying scenic views. The neighborhood offers a peaceful setting and provides convenient access to nearby amenities and services.
Berkshire Hathaway HomeServices Georgia Properties, MLS 7698909
Information last verified by Jome: Today at 7:41 AM (April 1, 2026)
Home details
- Property status:
- Sold
- Lot size (acres):
- 0.12
- Size:
- 2,801 sqft
- Stories:
- 2
- Beds:
- 5
- Baths:
- 4
- Garage spaces:
- 2
- Fence:
- No Fence
Construction details
- Year Built:
- 2024
- Roof:
- Roof Gutter, Composition Roofing, Shingle Roofing
Home features & finishes
- Appliances:
- Exhaust Fan
- Construction Materials:
- Cement
- Cooling:
- Ceiling Fan(s)
- Flooring:
- Carpet Flooring
- Foundation Details:
- Slab
- Garage/Parking:
- Door OpenerGarageFront Entry Garage/Parking
- Home amenities:
- Internet
- Interior Features:
- Ceiling-HighWalk-In ClosetTray CeilingWalk-In PantryDouble Vanity
- Kitchen:
- DishwasherMicrowave OvenSelf Cleaning OvenKitchen IslandKitchen Range
- Laundry facilities:
- Laundry Facilities On Main LevelUtility/Laundry Room
- Property amenities:
- LandscapingCabinetsElectric FireplacePatioFireplace
- Rooms:
- Primary Bedroom On MainKitchenFamily RoomOpen Concept FloorplanPrimary Bedroom Downstairs
- Security system:
- Smoke DetectorCarbon Monoxide Detector
Utility information
- Heating:
- Electric Heating, Heat Pump, Zoned Heating
- Utilities:
- Electricity Available, Sewer Available, Water Available, High Speed Internet Access
Community amenities
- Dog Park
- Greenbelt View
- Shopping Nearby
Neighborhood
Home address
Schools in Hart County School District
GreatSchools’ Summary Rating calculation is based on 4 of the school’s themed ratings, including test scores, student/academic progress, college readiness, and equity. This information should only be used as a reference. Jome is not affiliated with GreatSchools and does not endorse or guarantee this information. Please reach out to schools directly to verify all information and enrollment eligibility. Data provided by GreatSchools.org © 2025
Places of interest
Getting around
Natural hazards risk
Provided by FEMA
Financials
Nearby communities in Hartwell
Recently added communities in this area
Other Builders in Hartwell, GA
Nearby sold homes
New homes in nearby cities
More New Homes in Hartwell, GA
Berkshire Hathaway HomeServices Georgia Properties, MLS 7698909
Some IDX listings have been excluded from this IDX display. Listings identified with the FMLS IDX logo come from FMLS and are held by brokerage firms other than the owner of this website. The listing brokerage is identified in any listing details. Information is deemed reliable but is not guaranteed. If you believe any FMLS listing contains material that infringes your copyrighted work please click here to review our DMCA policy and learn how to submit a takedown request. © 2025 First Multiple Listing Service, Inc.
Read moreLast checked Apr 1, 7:40 am
- Jome
- New homes search
- Georgia
- Hart County
- Hartwell
- 59 Bowers Estates Dr, Hartwell, GA 30643






















































