































- 5 bd
- 4.5 ba
- 3,252 sqft
2929 Sweet Red Cir, Braselton, GA 30517
- Single-Family
- $177.42/sqft
- $700/annual HOA
- West facing
New Homes for Sale Near 2929 Sweet Red Cir, Braselton, GA 30517
About this Home
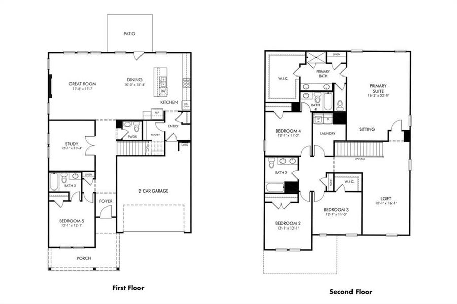
Stunning New Construction Home at Vines at Mill Creek!
Welcome to your dream home in the highly sought-after Vines at Mill Creek community, Taylorsville Floor Plan! This beautifully designed, energy-efficient 5 bedroom, 4.5 bath home offers open living space with modern finishes, and a private wooded backyard.
Step inside to a spacious, open-concept main floor featuring a flex room perfect for a home office, a chef-inspired kitchen with a large island, walk-in pantry, and upgraded stainless steel appliances that flow seamlessly into the family room and dining area ideal for entertaining. A guest room and full bath on the main level is perfect for visiting guests. Upstairs, retreat to the expansive primary suite complete with a luxurious en-suite bath, dual vanities, and a huge walk-in closet. Three additional spacious bedrooms, two full baths, convenient upstairs laundry room, and an open loft area provide ample space for relaxation, work, or play. Enjoy peaceful evenings on the covered patio overlooking your private wooded backyard, creating the perfect setting for outdoor dining or weekend gatherings.
Community Amenities include sparkling pool and cabana, playground, and well lit sidewalks. Located just minutes from Chateau Elan, you will love being near world-class golf, resort-style dining, boutique shopping, scenic parks, and top-rated schools all while enjoying the tranquility of a nature surrounded neighborhood. Don't miss your chance to own this exceptional new home built with Meritage Homes' signature energy-efficient features, smart design, and quality craftsmanship. Schedule your tour today and make this modern haven your forever home!
Wealthpoint Realty, LLC., MLS 7670221
May also be listed on the Meritage Homes website
Information last verified by Jome: Today at 2:12 AM (March 20, 2026)
Home details
- Property status:
- Sold
- Lot size (acres):
- 0.12
- Size:
- 3,252 sqft
- Stories:
- 2
- Beds:
- 5
- Baths:
- 4
- Half baths:
- 1
- Garage spaces:
- 2
- Fence:
- No Fence
- Facing direction:
- West
Construction details
- Builder Name:
- Meritage Homes
- Year Built:
- 2025
- Roof:
- Composition Roofing
Home features & finishes
- Construction Materials:
- CedarCement
- Cooling:
- Central Air
- Flooring:
- Ceramic FlooringVinyl FlooringCarpet FlooringTile Flooring
- Foundation Details:
- Concrete Perimeter
- Garage/Parking:
- Door OpenerGarageFront Entry Garage/ParkingAttached Garage
- Home amenities:
- Green Construction
- Interior Features:
- Ceiling-HighWalk-In ClosetFoyerPantryLoftDouble Vanity
- Kitchen:
- DishwasherMicrowave OvenDisposalGas CooktopKitchen Island
- Laundry facilities:
- Laundry Facilities On Upper LevelDryerWasherUtility/Laundry Room
- Lighting:
- Lighting
- Property amenities:
- BackyardElectric FireplacePatioYardSmart Home SystemPorch
- Rooms:
- AtticKitchenPowder RoomOffice/StudyDining RoomFamily RoomOpen Concept FloorplanPrimary Bedroom Upstairs
- Security system:
- Smoke DetectorCarbon Monoxide Detector
Utility information
- Heating:
- Zoned Heating, Water Heater, Central Heating
- Utilities:
- Electricity Available, Natural Gas Available, Underground Utilities, Phone Available, HVAC, Cable Available, Sewer Available, Water Available

Community details
Vines at Mill Creek - Estate Series
by Meritage Homes, Braselton, GA
- 2 homes
- 2,950 - 3,252 sqft
View Vines at Mill Creek - Estate Series details
Community amenities
- Playground
- Community Pool
- Sidewalks Available
- Shopping Nearby
More homes in Vines at Mill Creek - Estate Series
- Home at address 2908 Sweet Red Cir, Braselton, GA 30517

$562,000
Move-in ready- 5 bd
- 4.5 ba
- 3,252 sqft
2908 Sweet Red Cir, Braselton, GA 30517
- Home at address 3098 Sweet Red Cir, Braselton, GA 30517

$600,640
Move-in ready- 5 bd
- 4 ba
- 2,950 sqft
3098 Sweet Red Cir, Braselton, GA 30517
About the builder - Meritage Homes

- 323communities on Jome
- 2,714homes on Jome
Neighborhood
Home address
Schools in Gwinnett County School District
GreatSchools’ Summary Rating calculation is based on 4 of the school’s themed ratings, including test scores, student/academic progress, college readiness, and equity. This information should only be used as a reference. Jome is not affiliated with GreatSchools and does not endorse or guarantee this information. Please reach out to schools directly to verify all information and enrollment eligibility. Data provided by GreatSchools.org © 2025
Places of interest
Getting around
Air quality
Noise level
A Soundscore™ rating is a number between 50 (very loud) and 100 (very quiet) that tells you how loud a location is due to environmental noise.
Financials
Nearby communities in Braselton
Homes in Braselton by Meritage Homes
Recently added communities in this area
Other Builders in Braselton, GA
Nearby sold homes
New homes in nearby cities
More New Homes in Braselton, GA
Wealthpoint Realty, LLC., MLS 7670221
Some IDX listings have been excluded from this IDX display. Listings identified with the FMLS IDX logo come from FMLS and are held by brokerage firms other than the owner of this website. The listing brokerage is identified in any listing details. Information is deemed reliable but is not guaranteed. If you believe any FMLS listing contains material that infringes your copyrighted work please click here to review our DMCA policy and learn how to submit a takedown request. © 2025 First Multiple Listing Service, Inc.
Read moreLast checked Mar 20, 7:40 pm
- Jome
- New homes search
- Georgia
- Atlanta Metropolitan Area
- Gwinnett County
- Braselton
- Vines at Mill Creek - Estate Series
- 2929 Sweet Red Cir, Braselton, GA 30517




















































