




Book your tour. Save an average of $18,473. We'll handle the rest.
- Confirmed tours
- Get matched & compare top deals
- Expert help, no pressure
- No added fees
Estimated value based on Jome data, T&C apply
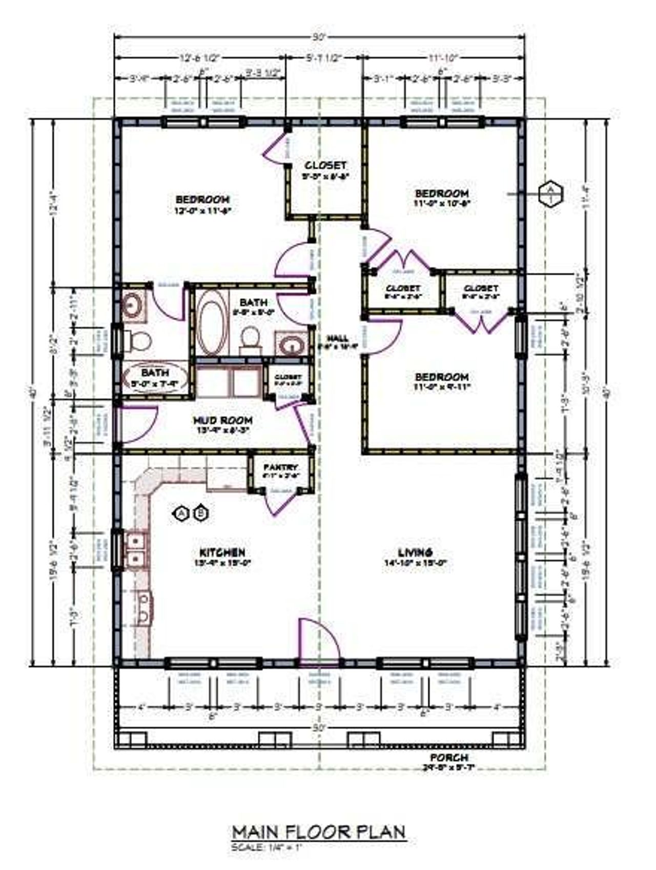
- 3 bd
- 2 ba
- 1,200 sqft
550 Harmon Rd, Temple, GA 30179
Why tour with Jome?
- No pressure toursTour at your own pace with no sales pressure
- Expert guidanceGet insights from our home buying experts
- Exclusive accessSee homes and deals not available elsewhere
Jome is featured in
- Single-Family
- Under construction
- $249.92/sqft
- 1.00-acre lot
Home description
Under Construction Welcome to your brand-new dream home! This beautifully crafted 3-bedroom, 2-bathroom ranch-style residence offers the perfect blend of modern comfort and timeless Craftsman charm - all set on a spacious 1-acre lot in peaceful Haralson County. With 1,200 square feet of thoughtfully designed living space, this home features an open-concept floor plan ideal for both everyday living and entertaining. The inviting living area flows seamlessly into a stylish kitchen, complete with custom cabinetry, solid surface countertops, and stainless steel appliances. The primary suite provides a private retreat with a walk-in closet and a well-appointed en-suite bathroom. Two additional bedrooms and a second full bath offer flexibility for family, guests, or a home office. Craftsman-style details like gabled rooflines, and a covered front porch give this home standout curb appeal, while energy-efficient systems and low-maintenance finishes make it as practical as it is beautiful. Outside, enjoy the serenity of your own acre of land - perfect for gardening, outdoor play, or future expansion. Located just a short drive from local schools, shopping, and I-20, you'll love the balance of rural tranquility and modern convenience. Don't miss this rare opportunity to own a brand-new home in the heart of Haralson County - schedule your showing today!
Tributary Real Estate Group, LLC, MLS 7652467
Information last verified by Jome: Today at 2:16 AM (December 30, 2025)
Home highlights
Thrill-packed theme park near Atlanta with coasters, water rides, and family fun in a wooded, suburban setting.
Book your tour. Save an average of $18,473. We'll handle the rest.
We collect exclusive builder offers, book your tours, and support you from start to housewarming.
- Confirmed tours
- Get matched & compare top deals
- Expert help, no pressure
- No added fees
Estimated value based on Jome data, T&C apply
Home details
- Property status:
- Under construction
- Lot size (acres):
- 1.00
- Size:
- 1,200 sqft
- Stories:
- 1
- Beds:
- 3
- Baths:
- 2
- Fence:
- No Fence
Construction details
- Year Built:
- 2025
- Roof:
- Composition Roofing
Home features & finishes
- Construction Materials:
- CementConcrete
- Cooling:
- Central Air
- Flooring:
- Vinyl FlooringCarpet Flooring
- Foundation Details:
- Slab
- Garage/Parking:
- Parking
- Interior Features:
- Pantry
- Kitchen:
- DishwasherMicrowave Oven
- Laundry facilities:
- Laundry Facilities In ClosetUtility/Laundry Room
- Property amenities:
- CabinetsPatioYardPorch
- Rooms:
- Primary Bedroom On MainKitchenMudroomFamily RoomOpen Concept FloorplanPrimary Bedroom Downstairs
- Security system:
- Smoke DetectorCarbon Monoxide Detector
Utility information
- Heating:
- Electric Heating, Water Heater, Central Heating
- Utilities:
- Electricity Available, Phone Available, Cable Available, Water Available
Community amenities
- Woods View
Neighborhood
Home address
Schools in Haralson County School District
GreatSchools’ Summary Rating calculation is based on 4 of the school’s themed ratings, including test scores, student/academic progress, college readiness, and equity. This information should only be used as a reference. Jome is not affiliated with GreatSchools and does not endorse or guarantee this information. Please reach out to schools directly to verify all information and enrollment eligibility. Data provided by GreatSchools.org © 2025
Places of interest
Getting around
Air quality
Natural hazards risk
Climate hazards can impact homes and communities, with risks varying by location. These scores reflect the potential impact of natural disasters and climate-related risks on Haralson County
Provided by FEMA

Considering this home?
Our expert will guide your tour, in-person or virtual
Need more information?
Text or call (888) 486-2818
Financials
Similar homes nearby
Recently added communities in this area
Nearby communities in Temple
New homes in nearby cities
More New Homes in Temple, GA
Tributary Real Estate Group, LLC, MLS 7652467
Some IDX listings have been excluded from this IDX display. Listings identified with the FMLS IDX logo come from FMLS and are held by brokerage firms other than the owner of this website. The listing brokerage is identified in any listing details. Information is deemed reliable but is not guaranteed. If you believe any FMLS listing contains material that infringes your copyrighted work please click here to review our DMCA policy and learn how to submit a takedown request. © 2025 First Multiple Listing Service, Inc.
Read moreLast checked Dec 30, 1:40 pm
- Jome
- New homes search
- Georgia
- Atlanta Metropolitan Area
- Haralson County
- Temple
- 550 Harmon Rd, Temple, GA 30179

























