


















- 3 bd
- 2 ba
- 2,133 sqft
406 Holly Springs Rd, Carrollton, GA 30117
- Single-Family
- $234.41/sqft
- East facing
- 4.00-acre lot
New Homes for Sale Near 406 Holly Springs Rd, Carrollton, GA 30117
About this Home
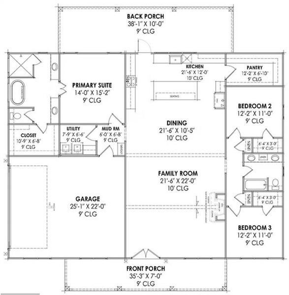
To Be Built! Welcome to your future dream home - a thoughtfully designed new construction Craftsman-style residence nestled on a beautiful 4-acre homesite. With 2,133 square feet of well-planned living space, this home will offer the perfect blend of timeless character and modern functionality. Featuring 3 spacious bedrooms and 2 full baths, this one-level floor plan is ideal for those seeking both comfort and convenience. The open-concept living area will showcase high-quality finishes, abundant natural light, and seamless flow-perfect for entertaining or relaxing at home. The heart of the home will be a designer kitchen with custom cabinetry, a large island, and views into the expansive living and dining areas. The primary suite will include a luxurious en-suite bathroom with double vanities, a soaking tub, and a walk-in closet. Two additional bedrooms will offer generous space for guests, a home office, or family needs. A 2-car garage provides secure parking and additional storage, while the covered front porch and rear porch are perfect spots to enjoy the serenity of the property. With 4 acres of private land, there's plenty of room for gardening, recreation, or simply enjoying the peace and privacy of rural living-while still being just minutes from I-20, downtown Carrollton & Bremen, local schools, and shopping. Don't miss this opportunity to make this custom-built Craftsman home yours!
Tributary Real Estate Group, LLC, MLS 7624844
Information last verified by Jome: Yesterday at 2:17 AM (February 27, 2026)
Home details
- Property status:
- Sold
- Lot size (acres):
- 4.00
- Size:
- 2,133 sqft
- Stories:
- 1
- Beds:
- 3
- Baths:
- 2
- Garage spaces:
- 2
- Fence:
- No Fence
- Facing direction:
- East
Construction details
- Year Built:
- 2025
- Roof:
- Composition Roofing
Home features & finishes
- Construction Materials:
- CementConcrete
- Cooling:
- Central Air
- Flooring:
- Ceramic FlooringCarpet FlooringTile FlooringHardwood Flooring
- Foundation Details:
- Slab
- Garage/Parking:
- Door OpenerGarageSide Entry Garage/ParkingRear Entry Garage/ParkingAttached Garage
- Home amenities:
- Green Construction
- Interior Features:
- Ceiling-HighCeiling-VaultedWalk-In ClosetPlentiful Natural LightDouble Vanity
- Kitchen:
- DishwasherMicrowave OvenKitchen Island
- Laundry facilities:
- Utility/Laundry Room
- Property amenities:
- Soaking TubFireplacePorch
- Rooms:
- Primary Bedroom On MainKitchenOffice/StudyMudroomFamily RoomOpen Concept FloorplanPrimary Bedroom Downstairs
- Security system:
- Fire Alarm System
Utility information
- Heating:
- Electric Heating, Water Heater, Central Heating
- Utilities:
- Electricity Available, Phone Available, Cable Available, Water Available
Community amenities
- Woods View
- Greenbelt View
- Shopping Nearby
Neighborhood
Home address
- City:
- Carrollton
- County:
- Carroll
- Zip Code:
- 30117
Schools in Carroll County School District
GreatSchools’ Summary Rating calculation is based on 4 of the school’s themed ratings, including test scores, student/academic progress, college readiness, and equity. This information should only be used as a reference. Jome is not affiliated with GreatSchools and does not endorse or guarantee this information. Please reach out to schools directly to verify all information and enrollment eligibility. Data provided by GreatSchools.org © 2025
Places of interest
Getting around
Air quality
Natural hazards risk
Provided by FEMA
Financials
Nearby communities in Carrollton
Recently added communities in this area
Other Builders in Carrollton, GA
Nearby sold homes
New homes in nearby cities
More New Homes in Carrollton, GA
Tributary Real Estate Group, LLC, MLS 7624844
Some IDX listings have been excluded from this IDX display. Listings identified with the FMLS IDX logo come from FMLS and are held by brokerage firms other than the owner of this website. The listing brokerage is identified in any listing details. Information is deemed reliable but is not guaranteed. If you believe any FMLS listing contains material that infringes your copyrighted work please click here to review our DMCA policy and learn how to submit a takedown request. © 2025 First Multiple Listing Service, Inc.
Read moreLast checked Feb 28, 1:40 am
- Jome
- New homes search
- Georgia
- Atlanta Metropolitan Area
- Carroll County
- Carrollton
- 406 Holly Springs Rd, Carrollton, GA 30117






















































