















































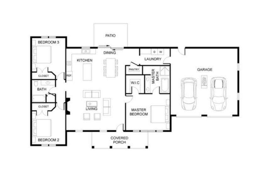
- 3 bd
- 2 ba
- 1,603 sqft
68 Cherokee Ter, Cedartown, GA 30125
- Single-Family
- $242.67/sqft
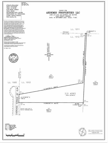
- 2.21-acre lot
- 118 days on Jome
New Homes for Sale Near 68 Cherokee Ter, Cedartown, GA 30125
About this Home
Located just minutes from schools, shopping, dining, Polk Medical Center, and with easy access to Highway 27 and 278, this beautiful new construction home offers luxury living in a peaceful cul-de-sac setting with a rural feel. Step inside to discover high-end finishes throughout, including a dramatic 12-foot vaulted ceiling with a floor-to-ceiling custom fireplace, 9-foot ceilings throughout the rest of the home and custom real wood cabinetry paired with elegant quartz countertops. The open-concept floor plan is perfect for both daily living and entertaining, with the master suite thoughtfully positioned opposite the secondary bedrooms for added privacy. Luxury Vinyl flooring throughout including in the master, with tile floors in bathrooms and tiled showers. The spa-like master bathroom features a free-standing tub, glass-enclosed tile shower, and a spacious walk-in closet. The chef’s kitchen is fully equipped with stainless steel appliances, 6-foot island, soft-close cabinets, tile backsplash, and a kitchen sink window offering a stunning view of the wooded backyard. Enjoy meals or entertain in style with double mahogany doors that open from the dining area to the serene forest view. With a nearly 200-foot setback from the street, the expansive front yard and long driveway create a grand first impression. The back of the property has an almost 500-foot x 12-foot-wide strip ready for any of your outdoor adventures, hiking trail, ATV trail or just enjoying the view! An oversized garage offering 24 ft x 24 ft of space and 9-foot ceilings also offers room to store your off-road vehicles. Furnished rooms are virtually staged. This home qualifies for USDA, FHA, and VA financing with ZERO MONEY DOWN or down payment assistance options for qualified buyers. Seller to provide $5,000 in upgrades and $5,000 towards closing costs -OR- $10,000 towards closing costs when offer is at full asking price. Receive an extra $500 incentive toward closing costs with preferred lender. Seller to provide builders warranty and a transferable termite warranty. Seller is motivated to sell and will consider all reasonable offers!
Maximum One Community Realtors, MLS 7644332
Information last verified by Jome: Today at 2:29 AM (December 31, 2025)
Home details
- Property status:
- Sold
- Lot size (acres):
- 2.21
- Size:
- 1,603 sqft
- Stories:
- 1
- Beds:
- 3
- Baths:
- 2
- Garage spaces:
- 2
- Fence:
- No Fence
Construction details
- Year Built:
- 2025
- Roof:
- Shingle Roofing
Home features & finishes
- Cooling:
- Ceiling Fan(s)Central Air
- Flooring:
- Vinyl FlooringTile Flooring
- Foundation Details:
- Slab
- Garage/Parking:
- GarageAttached Garage
- Interior Features:
- Ceiling-HighCeiling-VaultedWalk-In ClosetPantrySeparate Shower
- Kitchen:
- DishwasherMicrowave OvenRefrigeratorStainless Steel AppliancesQuartz countertopKitchen CountertopKitchen IslandKitchen Range
- Laundry facilities:
- Laundry Facilities In HallUtility/Laundry Room
- Property amenities:
- Cul-de-sacSpaBackyardSoaking TubCabinetsElectric FireplacePatioFireplaceYardPorch
- Rooms:
- Primary Bedroom On MainKitchenLiving RoomOpen Concept FloorplanPrimary Bedroom Downstairs
- Security system:
- Smoke DetectorCarbon Monoxide Detector
Utility information
- Heating:
- Electric Heating, Central Heating
- Utilities:
- Electricity Available, Phone Available, Cable Available, Water Available
Community amenities
- Woods View
- Greenbelt View
Neighborhood
Home address
Schools in Polk County School District
GreatSchools’ Summary Rating calculation is based on 4 of the school’s themed ratings, including test scores, student/academic progress, college readiness, and equity. This information should only be used as a reference. Jome is not affiliated with GreatSchools and does not endorse or guarantee this information. Please reach out to schools directly to verify all information and enrollment eligibility. Data provided by GreatSchools.org © 2025
Places of interest
Getting around
Natural hazards risk
Climate hazards can impact homes and communities, with risks varying by location. These scores reflect the potential impact of natural disasters and climate-related risks on Polk County
Provided by FEMA
Financials
Nearby communities in Cedartown
Recently added communities in this area
Other Builders in Cedartown, GA
Nearby sold homes
New homes in nearby cities
More New Homes in Cedartown, GA
Maximum One Community Realtors, MLS 7644332
Some IDX listings have been excluded from this IDX display. Listings identified with the FMLS IDX logo come from FMLS and are held by brokerage firms other than the owner of this website. The listing brokerage is identified in any listing details. Information is deemed reliable but is not guaranteed. If you believe any FMLS listing contains material that infringes your copyrighted work please click here to review our DMCA policy and learn how to submit a takedown request. © 2025 First Multiple Listing Service, Inc.
Read moreLast checked Dec 31, 1:40 pm
- Jome
- New homes search
- Georgia
- Polk County
- Cedartown
- 68 Cherokee Ter, Cedartown, GA 30125






















































