



Book your tour. Save an average of $18,473. We'll handle the rest.
- Confirmed tours
- Get matched & compare top deals
- Expert help, no pressure
- No added fees
Estimated value based on Jome data, T&C apply
- 4 bd
- 2.5 ba
- 2,599 sqft
6401 River Plantation Dr, Lula, GA 30554
Why tour with Jome?
- No pressure toursTour at your own pace with no sales pressure
- Expert guidanceGet insights from our home buying experts
- Exclusive accessSee homes and deals not available elsewhere
Jome is featured in
- Single-Family
- Quick move-in
- $153.87/sqft
- $1,200/annual HOA
Home description
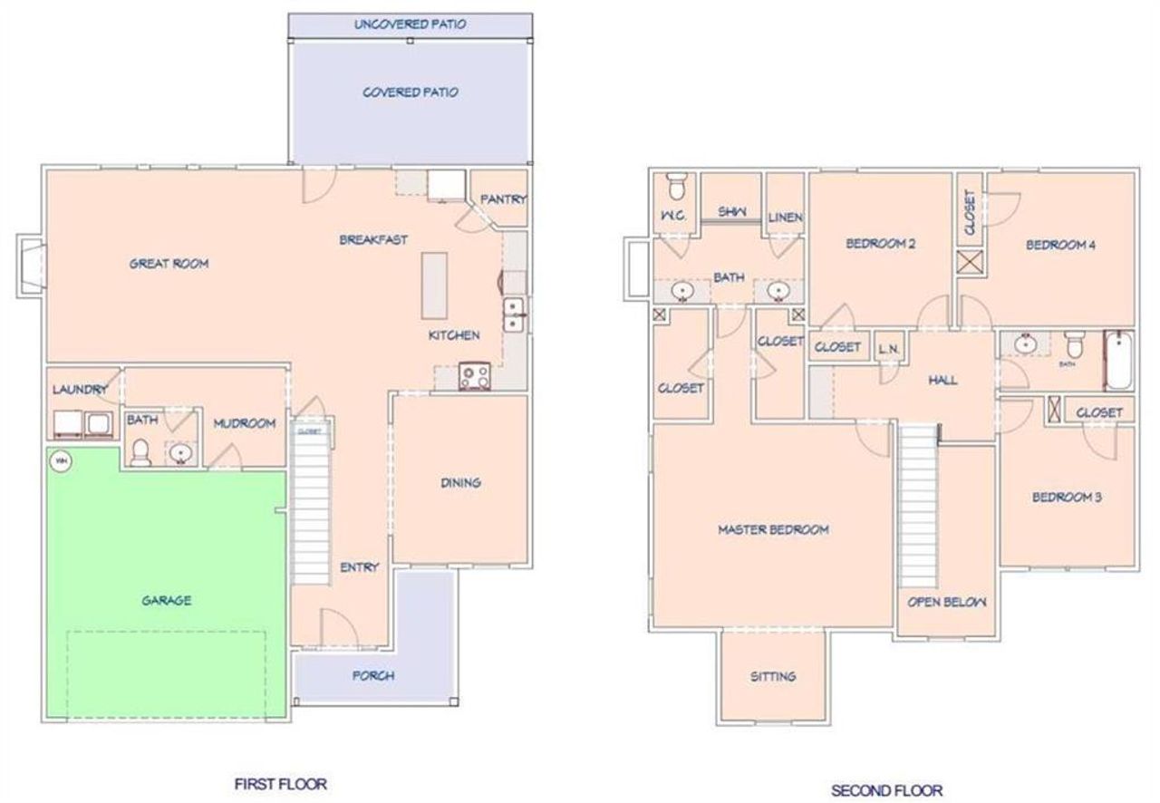
Welcome to the Cottonwood by A&R Communities! This beautiful home is located in Lula Ga, a short commute to surrounding areas: Gainesville Ga and Habersham County Ga. This home features 4 Bedrooms all on the upper level of the home. The Secondary bedrooms share a common bathroom. The master bedroom features His & Hers Walk in closets. with two separate vanity's with stone counter tops. On the main level of the home you will find the a half bath, and living room / dining room combo with a beautiful fireplace. Out side you'll find a back covered patio and a beautiful front porch. Don't miss the chance to make this amazing home yours!
Virtual Properties Realty.Net, LLC., MLS 7602530
Information last verified by Jome: Yesterday at 2:14 AM (December 5, 2025)
Home highlights
Popular North Georgia lake offering boating, fishing, and lakeside living near metro Atlanta and mountain getaways.
Book your tour. Save an average of $18,473. We'll handle the rest.
We collect exclusive builder offers, book your tours, and support you from start to housewarming.
- Confirmed tours
- Get matched & compare top deals
- Expert help, no pressure
- No added fees
Estimated value based on Jome data, T&C apply
Home details
- Property status:
- Move-in ready
- Lot size (acres):
- 0.51
- Size:
- 2,599 sqft
- Stories:
- 2
- Beds:
- 4
- Baths:
- 2
- Half baths:
- 1
- Garage spaces:
- 2
- Fence:
- No Fence
- Facing direction:
- South
Construction details
- Year Built:
- 2025
- Roof:
- Composition Roofing
Home features & finishes
- Construction Materials:
- Vinyl Siding
- Cooling:
- Ceiling Fan(s)Central Air
- Flooring:
- Laminate FlooringVinyl FlooringCarpet Flooring
- Foundation Details:
- Slab
- Garage/Parking:
- Door OpenerGarageAttached Garage
- Home amenities:
- Green Construction
- Interior Features:
- Ceiling-HighWalk-In ClosetWalk-In PantryDouble Vanity
- Kitchen:
- DishwasherMicrowave OvenRefrigeratorKitchen CountertopKitchen Island
- Laundry facilities:
- Laundry Facilities On Main LevelUtility/Laundry Room
- Property amenities:
- BackyardPatioFireplaceYardPorch
- Rooms:
- AtticKitchenDining RoomFamily RoomLiving Room
- Security system:
- Fire Alarm SystemSmoke DetectorCarbon Monoxide Detector
Utility information
- Heating:
- Zoned Heating, Central Heating
- Utilities:
- Electricity Available, Underground Utilities, Sewer Available, Water Available
Community amenities
- Woods View
- Community Pool
- Sidewalks Available
- Greenbelt View
Neighborhood
Home address
Schools in Hall County School District
GreatSchools’ Summary Rating calculation is based on 4 of the school’s themed ratings, including test scores, student/academic progress, college readiness, and equity. This information should only be used as a reference. Jome is not affiliated with GreatSchools and does not endorse or guarantee this information. Please reach out to schools directly to verify all information and enrollment eligibility. Data provided by GreatSchools.org © 2025
Places of interest
Getting around
Natural hazards risk
Climate hazards can impact homes and communities, with risks varying by location. These scores reflect the potential impact of natural disasters and climate-related risks on Hall County
Provided by FEMA

Considering this home?
Our expert will guide your tour, in-person or virtual
Need more information?
Text or call (888) 486-2818
Financials
Similar homes nearby
Recently added communities in this area
Nearby communities in Lula
New homes in nearby cities
More New Homes in Lula, GA
Virtual Properties Realty.Net, LLC., MLS 7602530
Some IDX listings have been excluded from this IDX display. Listings identified with the FMLS IDX logo come from FMLS and are held by brokerage firms other than the owner of this website. The listing brokerage is identified in any listing details. Information is deemed reliable but is not guaranteed. If you believe any FMLS listing contains material that infringes your copyrighted work please click here to review our DMCA policy and learn how to submit a takedown request. © 2025 First Multiple Listing Service, Inc.
Read moreLast checked Dec 5, 7:40 pm
- Home
- New homes
- Georgia
- Hall County
- Lula
- 6401 River Plantation Dr, Lula, GA 30554



























