































- 3 bd
- 3 ba
- 1,860 sqft
106 Red Cloud Walk, Waleska, GA 30183
- Single-Family
- $215/sqft
- $4,800/annual HOA
- 0.11-acre lot
New Homes for Sale Near 106 Red Cloud Walk, Waleska, GA 30183
About this Home
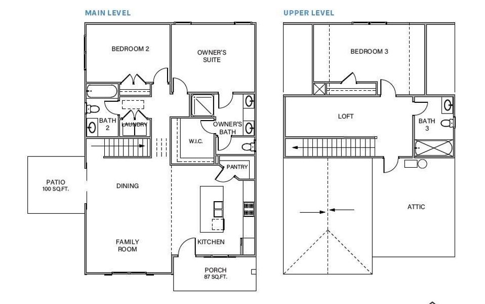
Move in ready!! Final Opportunities!! Discover the perfect blend of tranquility and adventure in this beautifully appointed master on main. 3-bedroom, 3-bathroom with Loft. This Mountain retreat is nestled in the exclusive gated community of Lake Arrowhead offering breathtaking views of the surrounding mountains and a serene lake. Open Concept kitchen with loads of storage with walk-in pantry and butler pantry. carpet in all bedrooms, LVP throughout main living area and loft. Easy access to the South Gate and the marina, walking distance to Red Cloud Park Sports Complex.
Atlanta Communities, MLS 7658539
Information last verified by Jome: Today at 2:11 AM (March 11, 2026)
Home details
- Property status:
- Sold
- Lot size (acres):
- 0.11
- Size:
- 1,860 sqft
- Stories:
- 1.5
- Beds:
- 3
- Baths:
- 3
- Fence:
- No Fence
Construction details
- Year Built:
- 2025
- Roof:
- Metal Roofing, Composition Roofing, Shingle Roofing
Home features & finishes
- Construction Materials:
- Cement
- Cooling:
- Central Air
- Flooring:
- Vinyl FlooringCarpet Flooring
- Foundation Details:
- Slab
- Garage/Parking:
- Parking
- Interior Features:
- Ceiling-HighCeiling-VaultedWalk-In ClosetWalk-In PantryLoftDouble Vanity
- Kitchen:
- DishwasherMicrowave OvenDisposalKitchen IslandKitchen Range
- Laundry facilities:
- Laundry Facilities In HallDryerLaundry Facilities On Main LevelLaundry Facilities In Closet
- Property amenities:
- BackyardCourtyardLandscapingCabinetsPorch
- Rooms:
- Primary Bedroom On MainKitchenOpen Concept FloorplanPrimary Bedroom Downstairs
- Security system:
- Smoke DetectorCarbon Monoxide Detector
Utility information
- Heating:
- Electric Heating, Heat Pump, Water Heater, Central Heating
- Utilities:
- Electricity Available, Phone Available, Cable Available, Sewer Available, Water Available
Community amenities
- Marina
- Woods View
- Dog Park
- Golf Course
- Tennis Courts
- Gated Community
- Community Pool
- Mountain(s) View
- Pickleball Court
Neighborhood
Home address
Schools in Cherokee County School District
GreatSchools’ Summary Rating calculation is based on 4 of the school’s themed ratings, including test scores, student/academic progress, college readiness, and equity. This information should only be used as a reference. Jome is not affiliated with GreatSchools and does not endorse or guarantee this information. Please reach out to schools directly to verify all information and enrollment eligibility. Data provided by GreatSchools.org © 2025
Places of interest
Getting around
Air quality
Natural hazards risk
Provided by FEMA
Financials
Nearby communities in Waleska
Recently added communities in this area
Other Builders in Waleska, GA
Nearby sold homes
New homes in nearby cities
More New Homes in Waleska, GA
Atlanta Communities, MLS 7658539
Some IDX listings have been excluded from this IDX display. Listings identified with the FMLS IDX logo come from FMLS and are held by brokerage firms other than the owner of this website. The listing brokerage is identified in any listing details. Information is deemed reliable but is not guaranteed. If you believe any FMLS listing contains material that infringes your copyrighted work please click here to review our DMCA policy and learn how to submit a takedown request. © 2025 First Multiple Listing Service, Inc.
Read moreLast checked Mar 11, 1:40 am
- Jome
- New homes search
- Georgia
- Cherokee County
- Waleska
- 106 Red Cloud Walk, Waleska, GA 30183
















































