








Book your tour. Save an average of $18,473. We'll handle the rest.
We collect exclusive builder offers, book your tours, and support you from start to housewarming.
- Confirmed tours
- Get matched & compare top deals
- Expert help, no pressure
- No added fees
Estimated value based on Jome data, T&C apply
































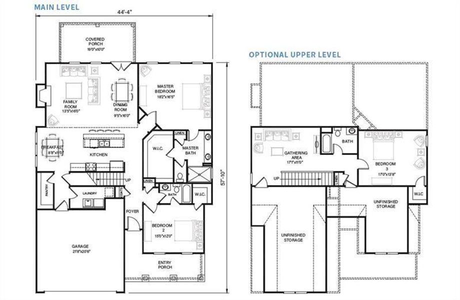
- 3 bd
- 3 ba
- 2,428 sqft
108 Cherokee Cv, Waleska, GA 30183
Why tour with Jome?
- No pressure toursTour at your own pace with no sales pressure
- Expert guidanceGet insights from our home buying experts
- Exclusive accessSee homes and deals not available elsewhere
Jome is featured in
- Single-Family
- Quick move-in
- $265.61/sqft
- $2,700/annual HOA
Home description
JOIN US FOR OUR MODEL HOME SHOWCASE THIS WEEKEND!!!
Move In Ready!! An Inspired Expression of Mountain Elegance at Lake Arrowhead. You’ve worked for this moment — now it’s time to enjoy it.
This beautifully finished ranch home in Lake Arrowhead offers effortless single-level living with an open, inviting design created for both connection and comfort. The spacious great room flows seamlessly into a modern kitchen with an expansive island, abundant cabinetry, and elegant finishes that feel both refined and welcoming.
The primary suite provides a peaceful escape at the end of the day, while additional flexible spaces adapt to visiting family, entertaining friends, or pursuing your passions.
Everything is complete. Landscaping, finishes, appliances, and smart-home features are already in place — allowing you to move in immediately and begin enjoying lake days, championship golf, scenic walking trails, clubhouse dining, and a vibrant social calendar. Builder offering a 2-10 warranty for added peace of mind.
No waiting. No projects. Just possibility. Schedule your private showing and experience the lifestyle for yourself.
Atlanta Communities, MLS 7720511
Information last verified by Jome: Today at 2:00 AM (March 21, 2026)
Home highlights
Home of the Atlanta Braves with modern ballpark vibes, dining, and housing in the vibrant Battery Atlanta district.
Book your tour. Save an average of $18,473. We'll handle the rest.
We collect exclusive builder offers, book your tours, and support you from start to housewarming.
- Confirmed tours
- Get matched & compare top deals
- Expert help, no pressure
- No added fees
Estimated value based on Jome data, T&C apply
Home details
- Property status:
- Move-in ready
- Lot size (acres):
- 0.23
- Size:
- 2,428 sqft
- Stories:
- 1.5
- Beds:
- 3
- Baths:
- 3
- Garage spaces:
- 2
- Fence:
- No Fence
Construction details
- Year Built:
- 2026
- Roof:
- Shingle Roofing
Home features & finishes
- Construction Materials:
- Cement
- Cooling:
- Central Air
- Flooring:
- Ceramic FlooringVinyl FlooringCarpet FlooringTile Flooring
- Foundation Details:
- Slab
- Garage/Parking:
- Door OpenerGarageFront Entry Garage/Parking
- Interior Features:
- Ceiling-HighWalk-In ClosetFoyerWalk-In PantryDouble Vanity
- Kitchen:
- DishwasherMicrowave OvenDisposalKitchen IslandKitchen Range
- Laundry facilities:
- DryerLaundry Facilities On Main LevelUtility/Laundry Room
- Property amenities:
- BackyardLandscapingCabinetsFireplaceYardPorch
- Rooms:
- AtticPrimary Bedroom On MainKitchenFamily RoomOpen Concept FloorplanPrimary Bedroom Downstairs
- Security system:
- Smoke DetectorCarbon Monoxide Detector

Get a consultation with our New Homes Expert
- See how your home builds wealth
- Plan your home-buying roadmap
- Discover hidden gems
Utility information
- Heating:
- Electric Heating, Heat Pump, Zoned Heating, Water Heater, Central Heating
- Utilities:
- Electricity Available, Underground Utilities, Phone Available, Cable Available, Sewer Available, Water Available
Community amenities
- Marina
- Woods View
- Dog Park
- Golf Course
- Tennis Courts
- Gated Community
- Community Pool
- Fishing Pond
- Mountain(s) View
Neighborhood
Home address
Schools in Cherokee County School District
GreatSchools’ Summary Rating calculation is based on 4 of the school’s themed ratings, including test scores, student/academic progress, college readiness, and equity. This information should only be used as a reference. Jome is not affiliated with GreatSchools and does not endorse or guarantee this information. Please reach out to schools directly to verify all information and enrollment eligibility. Data provided by GreatSchools.org © 2025
Places of interest
Getting around
Air quality
Natural hazards risk
Provided by FEMA

Considering this home?
Our expert will guide your tour, in-person or virtual
Need more information?
Text or call (888) 545-5198
Financials
Estimated monthly payment
Let us help you find your dream home
How many bedrooms are you looking for?
Similar homes nearby
Recently added communities in this area
Nearby communities in Waleska
New homes in nearby cities
More New Homes in Waleska, GA
Atlanta Communities, MLS 7720511
Some IDX listings have been excluded from this IDX display. Listings identified with the FMLS IDX logo come from FMLS and are held by brokerage firms other than the owner of this website. The listing brokerage is identified in any listing details. Information is deemed reliable but is not guaranteed. If you believe any FMLS listing contains material that infringes your copyrighted work please click here to review our DMCA policy and learn how to submit a takedown request. © 2025 First Multiple Listing Service, Inc.
Read moreLast checked Mar 21, 1:40 am
- Jome
- New homes search
- Georgia
- Cherokee County
- Waleska
- 108 Cherokee Cv, Waleska, GA 30183




























