











































- 3 bd
- 3 ba
- 2,099 sqft
101 Coati Ct, Waleska, GA 30183
- Single-Family
- $273.89/sqft
- $2,700/annual HOA
- 0.46-acre lot
New Homes for Sale Near 101 Coati Ct, Waleska, GA 30183
About this Home
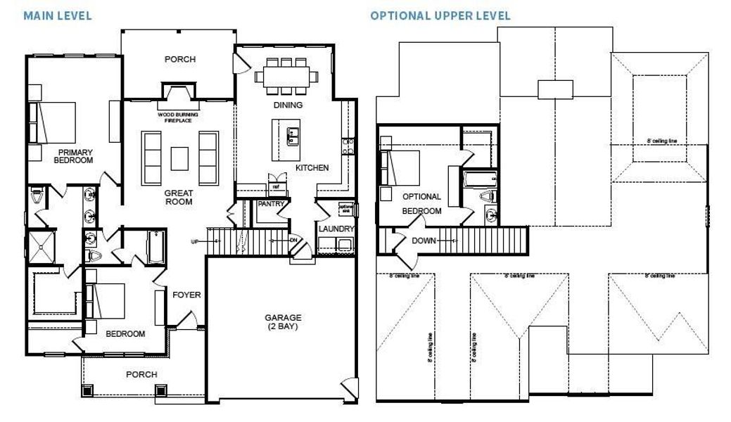
Move In Ready Home ! On a Full Unfinished Basement! 3 Bedrooms 2 Bath Open Floor Plan, Rear Covered Deck with steps down to your Beautiful Wooded Mountain Views, Gourmet Kitchen with Granite Counters and Loads of Cabinet Space. Private Master Suite with Double Vanity, Walk In Closet and Spacious Shower. Corner Lot in Cul De Sac close to South Gate & Red Cloud Parc Pickle Ball & Tennis.
Atlanta Communities, MLS 7691241
Information last verified by Jome: Today at 2:36 AM (May 5, 2026)
Home details
- Property status:
- Sold
- Lot size (acres):
- 0.46
- Size:
- 2,099 sqft
- Stories:
- 1.5
- Beds:
- 3
- Baths:
- 3
- Garage spaces:
- 2
- Fence:
- No Fence
Construction details
- Year Built:
- 2026
- Roof:
- Composition Roofing
Home features & finishes
- Cooling:
- Ceiling Fan(s)Central Air
- Flooring:
- Vinyl FlooringCarpet Flooring
- Foundation Details:
- Concrete Perimeter
- Garage/Parking:
- Door OpenerGarageFront Entry Garage/Parking
- Interior Features:
- Ceiling-HighCeiling-VaultedWalk-In ClosetFoyerWalk-In PantryDouble Vanity
- Kitchen:
- DishwasherMicrowave OvenDisposalKitchen IslandKitchen Range
- Laundry facilities:
- Laundry Facilities In KitchenLaundry Facilities On Main LevelUtility/Laundry Room
- Property amenities:
- BasementDeckLandscapingCabinetsFireplace
- Rooms:
- AtticPrimary Bedroom On MainKitchenFamily RoomOpen Concept FloorplanPrimary Bedroom Downstairs
- Security system:
- Smoke DetectorCarbon Monoxide Detector
Utility information
- Heating:
- Electric Heating, Heat Pump, Zoned Heating, Water Heater, Central Heating
- Utilities:
- Electricity Available, Phone Available, Cable Available, Sewer Available, Water Available
- Water source:
- Private
Community amenities
- Marina
- Woods View
- Dog Park
- Golf Course
- Tennis Courts
- Gated Community
- Community Pool
- Fishing Pond
Neighborhood
Home address
Schools in Cherokee County School District
GreatSchools’ Summary Rating calculation is based on 4 of the school’s themed ratings, including test scores, student/academic progress, college readiness, and equity. This information should only be used as a reference. Jome is not affiliated with GreatSchools and does not endorse or guarantee this information. Please reach out to schools directly to verify all information and enrollment eligibility. Data provided by GreatSchools.org © 2025
Places of interest
Getting around
Air quality
Natural hazards risk
Provided by FEMA
Financials
Nearby communities in Waleska
Recently added communities in this area
Other Builders in Waleska, GA
Nearby sold homes
New homes in nearby cities
More New Homes in Waleska, GA
Atlanta Communities, MLS 7691241
Some IDX listings have been excluded from this IDX display. Listings identified with the FMLS IDX logo come from FMLS and are held by brokerage firms other than the owner of this website. The listing brokerage is identified in any listing details. Information is deemed reliable but is not guaranteed. If you believe any FMLS listing contains material that infringes your copyrighted work please click here to review our DMCA policy and learn how to submit a takedown request. © 2025 First Multiple Listing Service, Inc.
Read moreLast checked May 5, 1:40 pm
- Jome
- New homes search
- Georgia
- Cherokee County
- Waleska
- 101 Coati Ct, Waleska, GA 30183


















































