





- 4 bd
- 3.5 ba
- 3,261 sqft
5550 Broad River Vw, Peachtree Corners, GA 30092
- Single-Family
- $274.43/sqft
- $275/monthly HOA
- 0.08-acre lot
New Homes for Sale Near 5550 Broad River Vw, Peachtree Corners, GA 30092
About this Home
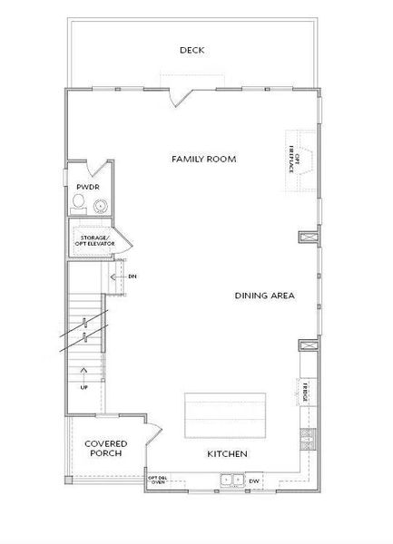
New Single Family Detached floor plan - THE STAFFORD. Rear entry two car garage with long driveway for guest parking. GOLF CART storage in the garage in addition to two parking spaces. Three stories on a slab; with option elevator. Terrace level composed of foyer, garage, full bedroom and bathroom. Heading to the main floor, amazing open space will make this floor plan POP! Large kitchen and Island, Customize your whole home at our Design Studio for a limited time! Pick your flooring, cabinets, countertops, and much more! On main level, covered porch off kitchen in rear of the home. Open concept main level with dining and living room opening to a covered porch encompassing the entire width of the front of the house! WOW! French doors out to this space create a private but welcoming outdoor area. Side yards between homes; fenced in and perfect for pets/more outdoor living. Top floor houses Owners Suite, laundry room and two additional great sized bedrooms. These plans are a MUST SEE and won't last long! Waterside features Resort-Style Amenities with a Full Gym, Pickle Ball Courts, Oversized Pool, Sun Deck, River Terrace Overlooks, 2 Miles of Private walking trails by the River, Yoga room, Conference Room, Catering Kitchen and more. Limited River Lot opportunities don't miss out!! $5,000 in Closing Costs paid with Builder's Preferred Lender. Completion JUNE/JULY 2025. For driving directions, you can use 4411 E Jones Bridge Road, Peachtree Corners, GA 30092. At TPG, we value our customer, team member, and vendor team safety. Our communities are active construction zones and may not be safe to visit at certain stages of construction. Due to this, we ask all agents visiting the community with their clients come to the office prior to visiting any listed homes. Please note, during your visit, you will be escorted by a TPG employee and may be required to wear flat, closed toe shoes and a hardhat [The Stafford]
The Providence Group Realty, LLC., MLS 7601925
May also be listed on the The Providence Group website
Information last verified by Jome: Today at 2:16 AM (February 27, 2026)
Home details
- Property status:
- Sold
- Lot size (acres):
- 0.08
- Size:
- 3,261 sqft
- Stories:
- 3+
- Beds:
- 4
- Baths:
- 3
- Half baths:
- 1
- Garage spaces:
- 2
- Fence:
- Wrought Iron Fence
Construction details
- Builder Name:
- The Providence Group
- Year Built:
- 2025
- Roof:
- Roof Gutter, Composition Roofing, Shingle Roofing
Home features & finishes
- Construction Materials:
- CementBrick
- Cooling:
- Ceiling Fan(s)Central Air
- Flooring:
- Ceramic FlooringCarpet FlooringTile FlooringHardwood Flooring
- Foundation Details:
- SlabConcrete PerimeterPillar/Post/Pier
- Garage/Parking:
- Door OpenerGarageGarage StorageSide Entry Garage/ParkingAttached Garage
- Home amenities:
- InternetENERGY STAR CertifiedGreen Construction
- Interior Features:
- Ceiling-HighWalk-In ClosetCrown MoldingFoyerPantryLoftSeparate ShowerDouble Vanity
- Kitchen:
- DishwasherMicrowave OvenOvenDisposalGas CooktopKitchen IslandGas OvenKitchen Range
- Laundry facilities:
- Laundry Facilities On Upper LevelUtility/Laundry Room
- Lighting:
- Lighting
- Property amenities:
- BasementBalconyDeckBackyardCourtyardLandscapingWalk-in ShowerElevatorOutdoor LivingPatioFireplaceYardPorch
- Rooms:
- Primary Bedroom On MainKitchenOffice/StudyGuest RoomDining RoomFamily RoomOpen Concept FloorplanPrimary Bedroom Downstairs
- Security system:
- Fire Alarm SystemSmoke DetectorCarbon Monoxide Detector
Utility information
- Heating:
- Zoned Heating, Water Heater, Central Heating, Tankless water heater
- Utilities:
- Electricity Available, Natural Gas Available, Underground Utilities, HVAC, Cable Available, Sewer Available, Water Available, High Speed Internet Access

Community details
Waterside Single Family
by The Providence Group, Peachtree Corners, GA
- 2 homes
- 4 plans
- 3,172 - 4,275 sqft
View Waterside Single Family details
Community amenities
- Woods View
- Fitness Center/Exercise Area
- Club House
- Gated Community
- Community Pool
- Fishing Pond
- Sidewalks Available
- Waterfront View
- Walking, Jogging, Hike Or Bike Trails
- Pickleball Court
- Catering Kitchen
- Shopping Nearby
More homes in Waterside Single Family
- Home at address 5551 Broad River Vw, Norcross, GA 30092

$1,470,000
Move-in ready- 4 bd
- 4.5 ba
- 4,234 sqft
5551 Broad River Vw, Norcross, GA 30092
- Home at address 5541 Broad River Vw, Norcross, GA 30092

$1,490,000
Move-in ready- 4 bd
- 4.5 ba
- 4,234 sqft
5541 Broad River Vw, Norcross, GA 30092
Floor plans in Waterside Single Family
About the builder - The Providence Group
Neighborhood
Home address
- City:
- Peachtree Corners
- County:
- Gwinnett
- Zip Code:
- 30092
Schools in Gwinnett County School District
- Grades PK-KGPrivatepeachtree park prep2.0 mi9670 ventana wayna
GreatSchools’ Summary Rating calculation is based on 4 of the school’s themed ratings, including test scores, student/academic progress, college readiness, and equity. This information should only be used as a reference. Jome is not affiliated with GreatSchools and does not endorse or guarantee this information. Please reach out to schools directly to verify all information and enrollment eligibility. Data provided by GreatSchools.org © 2025
Places of interest
Getting around
Air quality
Noise level
A Soundscore™ rating is a number between 50 (very loud) and 100 (very quiet) that tells you how loud a location is due to environmental noise.
Financials
Nearby communities in Peachtree Corners
Homes in Peachtree Corners by The Providence Group
Recently added communities in this area
Other Builders in Peachtree Corners, GA
Nearby sold homes
New homes in nearby cities
More New Homes in Peachtree Corners, GA
The Providence Group Realty, LLC., MLS 7601925
Some IDX listings have been excluded from this IDX display. Listings identified with the FMLS IDX logo come from FMLS and are held by brokerage firms other than the owner of this website. The listing brokerage is identified in any listing details. Information is deemed reliable but is not guaranteed. If you believe any FMLS listing contains material that infringes your copyrighted work please click here to review our DMCA policy and learn how to submit a takedown request. © 2025 First Multiple Listing Service, Inc.
Read moreLast checked Feb 27, 1:40 pm
- Jome
- New homes search
- Georgia
- Atlanta Metropolitan Area
- Gwinnett County
- Peachtree Corners
- Waterside Single Family
- 5550 Broad River Vw, Peachtree Corners, GA 30092





























































