









Book your tour. Save an average of $18,473. We'll handle the rest.
We collect exclusive builder offers, book your tours, and support you from start to housewarming.
- Confirmed tours
- Get matched & compare top deals
- Expert help, no pressure
- No added fees
Estimated value based on Jome data, T&C apply












- 4 bd
- 3 ba
- 2,631 sqft
849 Silverado Trail Dr, Haines City, FL 33844
Why tour with Jome?
- No pressure toursTour at your own pace with no sales pressure
- Expert guidanceGet insights from our home buying experts
- Exclusive accessSee homes and deals not available elsewhere
Jome is featured in
- Single-Family
- Quick move-in
- $146.86/sqft
- $235/monthly HOA
Home description
May also be listed on the Meritage Homes website
Information last verified by Jome: Today at 1:39 AM (April 22, 2026)
Book your tour. Save an average of $18,473. We'll handle the rest.
We collect exclusive builder offers, book your tours, and support you from start to housewarming.
- Confirmed tours
- Get matched & compare top deals
- Expert help, no pressure
- No added fees
Estimated value based on Jome data, T&C apply
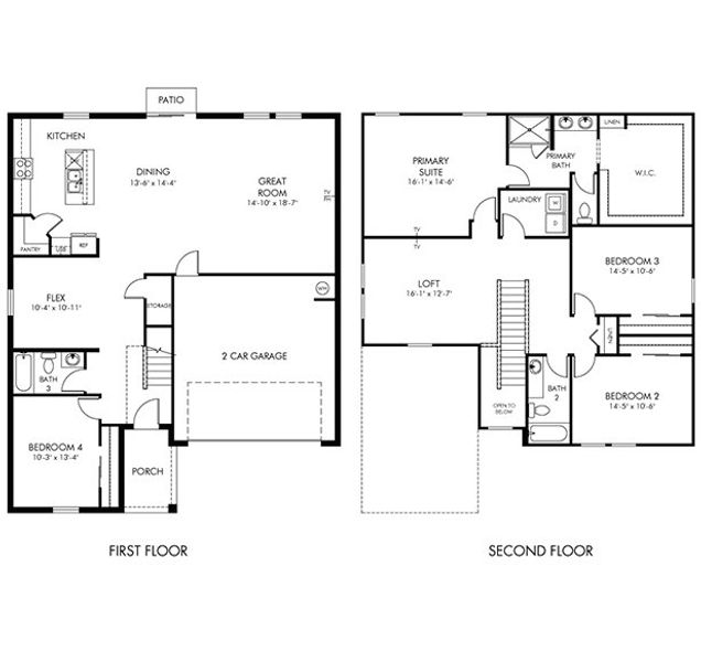
Home details
- Property status:
- Move-in ready
- Size:
- 2,631 sqft
- Stories:
- 2
- Beds:
- 4
- Baths:
- 3
- Garage spaces:
- 2
- HERS index:
- 54
Construction details
- Builder Name:
- Meritage Homes
Home features & finishes
- Garage/Parking:
- GarageAttached Garage
- Interior Features:
- Walk-In ClosetPantryStaircasesLoft
- Kitchen:
- DishwasherKitchen Island
- Laundry facilities:
- WasherUtility/Laundry Room
- Property amenities:
- PatioPorch
- Rooms:
- AtticFlex RoomKitchenDining RoomFamily RoomOpen Concept FloorplanPrimary Bedroom Upstairs

Get a consultation with our New Homes Expert
- See how your home builds wealth
- Plan your home-buying roadmap
- Discover hidden gems
Utility information
- Heating:
- Thermostat
- Utilities:
- HVAC

Community details
Hamilton Bluff - Signature Series
by Meritage Homes, Lake Hamilton, FL
- 19 homes
- 1,483 - 2,631 sqft
View Hamilton Bluff - Signature Series details
More homes in Hamilton Bluff - Signature Series
- Home at address 1004 Monarch Pass, Lake Hamilton, FL 33851

Hibiscus
$333,710
- 4 bd
- 3 ba
- 1,988 sqft
1004 Monarch Pass, Lake Hamilton, FL 33851
- Home at address 837 Silverado Trail Dr, Haines City, FL 33844

Foxglove
$334,390
- 4 bd
- 2 ba
- 1,840 sqft
837 Silverado Trail Dr, Haines City, FL 33844
- Home at address 1420 Pocket Wilderness Wy, Haines City, FL 33844

Foxglove
$337,390
- 4 bd
- 2 ba
- 1,840 sqft
1420 Pocket Wilderness Wy, Haines City, FL 33844
- Home at address 1432 Pocket Wilderness Wy, Haines City, FL 33844

Hibiscus
$346,390
- 4 bd
- 3 ba
- 1,988 sqft
1432 Pocket Wilderness Wy, Haines City, FL 33844
- Home at address 833 Silverado Trail Dr, Haines City, FL 33844

Hibiscus
$346,390
- 4 bd
- 3 ba
- 1,988 sqft
833 Silverado Trail Dr, Haines City, FL 33844
About the builder - Meritage Homes

- 313communities on Jome
- 7,039homes on Jome
Neighborhood
Home address
- City:
- Haines City
- County:
- Polk
- Zip Code:
- 33844
Schools in Polk County School District
- Grades M-MPublicscenic terrace k-81.9 mi2799 sr 17na
GreatSchools’ Summary Rating calculation is based on 4 of the school’s themed ratings, including test scores, student/academic progress, college readiness, and equity. This information should only be used as a reference. Jome is not affiliated with GreatSchools and does not endorse or guarantee this information. Please reach out to schools directly to verify all information and enrollment eligibility. Data provided by GreatSchools.org © 2025
Places of interest
Getting around
Air quality
Noise level
A Soundscore™ rating is a number between 50 (very loud) and 100 (very quiet) that tells you how loud a location is due to environmental noise.

Considering this home?
Our expert will guide your tour, in-person or virtual
Need more information?
Text or call (888) 545-5198
Financials
Estimated monthly payment
Let us help you find your dream home
How many bedrooms are you looking for?
Similar homes nearby
Recently added communities in this area
Nearby communities in Haines City
New homes in nearby cities
More New Homes in Haines City, FL
- Jome
- New homes search
- Florida
- Greater Orlando Area
- Polk County
- Haines City
- Hamilton Bluff - Signature Series
- 849 Silverado Trail Dr, Haines City, FL 33844

























