








Book your tour. Save an average of $18,473. We'll handle the rest.
We collect exclusive builder offers, book your tours, and support you from start to housewarming.
- Confirmed tours
- Get matched & compare top deals
- Expert help, no pressure
- No added fees
Estimated value based on Jome data, T&C apply








- 5 bd
- 4.5 ba
- 3,734 sqft
2661 Cyprus Dr, Palm Harbor, FL 34684
Why tour with Jome?
- No pressure toursTour at your own pace with no sales pressure
- Expert guidanceGet insights from our home buying experts
- Exclusive accessSee homes and deals not available elsewhere
Jome is featured in
- Single-Family
- Ready by December 2026
- $663.9/sqft
- South facing
Home description
Set on nearly 3 acres with over 300 feet of Lake Tarpon shoreline, this is a rare opportunity to bring a custom-designed waterfront estate to life.
Tucked beyond private gates at the end of a quiet cul-de-sac, the privacy and lakefront setting are truly exceptional.
The proposed home reflects a timeless coastal aesthetic, with a crisp white brick façade complemented by dark roofing and warm wood accents, creating a refined and inviting home. Front-facing gables add dimension and architectural character, while the arched entryway introduces a subtle softness that elevates the overall design.
Windows invite natural light and reinforce the connection between the home and its waterfront setting. A side-entry garage preserves the integrity of the front elevation, while landscaping enhances the home.
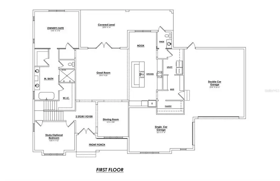
Inside, the first floor centers around a spacious great room that opens seamlessly to the outdoor living areas, creating a natural extension toward the water. A private owner’s suite offers a quiet retreat, while a dedicated office or optional bedroom adds flexibility. The expansive kitchen and main living areas are designed for effortless everyday living and elevated entertaining.
Upstairs, additional bedrooms are paired with a spacious game room and flexible living space, ideal for guests or multigenerational living.
The setting itself is what truly sets this property apart. From the moment you enter, the homesite opens to panoramic water views, mature trees, and the calm, private ambiance of Lake Tarpon. A 6,000 lb boat lift, open dock with electric and water, and direct access to one of the area’s most sought-after freshwater lakes allow for year-round boating, fishing, and recreation directly from your backyard.
Opportunities that combine land, location, and a clear path to build are increasingly rare. This is not just a homesite, it’s a vision ready to be brought to life.
Full home plans are available, while still allowing buyers the opportunity to personalize their selections. Exact build specifications to be determined between Buyer and Developer.
All site visits must be scheduled in advance. Please do not enter the property without prior authorization.
SOUTHERN LIFE REALTY, MLS TB8490955
Information last verified by Jome: Today at 9:38 AM (May 17, 2026)
Book your tour. Save an average of $18,473. We'll handle the rest.
We collect exclusive builder offers, book your tours, and support you from start to housewarming.
- Confirmed tours
- Get matched & compare top deals
- Expert help, no pressure
- No added fees
Estimated value based on Jome data, T&C apply
Home details
- Property status:
- Under construction
- Lot size (acres):
- 2.89
- Size:
- 3,734 sqft
- Stories:
- 2
- Beds:
- 5
- Baths:
- 4
- Half baths:
- 1
- Garage spaces:
- 3
- Facing direction:
- South
Construction details
- Completion Date:
- December, 2026
- Year Built:
- 2026
- Roof:
- Shingle Roofing
Home features & finishes
- Construction Materials:
- Block
- Cooling:
- Central Air
- Foundation Details:
- Slab
- Garage/Parking:
- GarageAttached Garage
- Home amenities:
- Internet
- Laundry facilities:
- Utility/Laundry Room
- Property amenities:
- Electric FireplaceFireplace
- Rooms:
- Open Concept Floorplan

Get a consultation with our New Homes Expert
- See how your home builds wealth
- Plan your home-buying roadmap
- Discover hidden gems
Utility information
- Heating:
- Electric Heating, Thermostat, Central Heating
- Sewer:
- Public Sewer
- Utilities:
- Electricity Available, Cable Available, Sewer Available, Water Available
- Water source:
- Public
Neighborhood
Home address
- City:
- Palm Harbor
- County:
- Pinellas
- Zip Code:
- 34684
Schools in Pinellas County School District
- Grades 10-12Charterst. petersburg collegiate high school north pinellas0.7 mi600 east klosterman road10/10
GreatSchools’ Summary Rating calculation is based on 4 of the school’s themed ratings, including test scores, student/academic progress, college readiness, and equity. This information should only be used as a reference. Jome is not affiliated with GreatSchools and does not endorse or guarantee this information. Please reach out to schools directly to verify all information and enrollment eligibility. Data provided by GreatSchools.org © 2025
Places of interest
Getting around
1 nearby routes: 1 bus, 0 rail, 0 otherNatural hazards risk
Provided by FEMA

Considering this home?
Our expert will guide your tour, in-person or virtual
Need more information?
Text or call (888) 545-5198
Financials
Estimated monthly payment
Let us help you find your dream home
How many bedrooms are you looking for?
Similar homes nearby
Recently added communities in this area
Nearby communities in Palm Harbor
New homes in nearby cities
More New Homes in Palm Harbor, FL
SOUTHERN LIFE REALTY, MLS TB8490955
Based on information submitted to the MLS GRID as of 10/21/2024 2:31 PM CDT. All data is obtained from various sources and may not have been verified by broker or MLS GRID. Supplied Open House Information is subject to change without notice. All information should be independently reviewed and verified for accuracy. Properties may or may not be listed by the office/agent presenting the information. Some IDX listings have been excluded from this website. Properties displayed may be listed or sold by various participants in the MLS. IDX information is provided exclusively for personal, non-commercial use, and may not be used for any purpose other than to identify prospective properties consumers may be interested in purchasing. Information is deemed reliable but not guaranteed. Use of the MLS GRID Data may be subject to an end user license agreement prescribed by the Member Participant’s applicable MLS if any and as amended from time to time. The Digital Millennium Copyright Act of 1998, 17 U.S.C. § 512 (the “DMCA”) provides recourse for copyright owners who believe that material appearing on the Internet infringes their rights under U.S. copyright law. If you believe in good faith that any content or material made available in connection with our website or services infringes your copyright, you (or your agent) may send us a notice requesting that the content or material be removed, or access to it blocked. Notices must be sent in writing by email to DMCAnotice@MLSGrid.com. The DMCA requires that your notice of alleged copyright infringement include the following information: (1) description of the copyrighted work that is the subject of claimed infringement; (2) description of the alleged infringing content and information sufficient to permit us to locate the content; (3) contact information for you, including your address, telephone number and email address; (4) a statement by you that you have a good faith belief that the content in the manner complained of is not authorized by the copyright owner, or its agent, or by the operation of any law; (5) a statement by you, signed under penalty of perjury, that the information in the notification is accurate and that you have the authority to enforce the copyrights that are claimed to be infringed; and (6) a physical or electronic signature of the copyright owner or a person authorized to act on the copyright owner’s behalf. Failure to include all of the above information may result in the delay of the processing of your complaint. Listing Information presented by local MLS brokerage: NewHomesMate LLC, DBA Jome (888) 545-5198
Read moreLast checked May 17, 9:10 pm
- Jome
- New homes search
- Florida
- Tampa Bay Area
- Pinellas County
- Palm Harbor
- 2661 Cyprus Dr, Palm Harbor, FL 34684























