














Book your tour. Save an average of $18,473. We'll handle the rest.
We collect exclusive builder offers, book your tours, and support you from start to housewarming.
- Confirmed tours
- Get matched & compare top deals
- Expert help, no pressure
- No added fees
Estimated value based on Jome data, T&C apply

















Why tour with Jome?
- No pressure toursTour at your own pace with no sales pressure
- Expert guidanceGet insights from our home buying experts
- Exclusive accessSee homes and deals not available elsewhere
Jome is featured in
- Single-Family
- Quick move-in
- $151.84/sqft
- 3 days on Jome
Home description
About this home
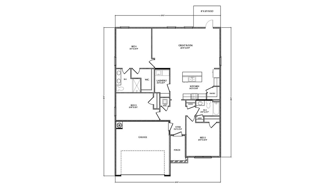
Welcome to 4029 Zinnia Drive at Sunny Hills in Chipley, Florida. This pre-construction homesite offers the opportunity to secure new construction prior to groundbreaking. This property will be developed with the Lismore floorplan and built to current design standards and specifications. Buyers may have the ability to personalize select finishes depending on the stage of construction. Estimated completion timelines and build details available upon request.
The Lismore has an inviting foyer that opens to a bright and functional living space designed for everyday comfort. Two secondary bedrooms and a full bathroom are conveniently located near the front of the home, offering flexible space for guests, family members, or a private home office—perfect for balancing work and play. Each room includes ample closet space and easy access to the shared bath.
At the heart of the home, an open concept living area brings everyone together. The kitchen features a center island with bar seating, creating a welcoming gathering place after a day on the golf course or enjoying nearby outdoor activities. The adjoining dining area flows seamlessly into the living room, making it easy to host casual dinners or relax with family and friends.
Tucked away at the rear of the home, the owner’s suite provides a quiet retreat. This spacious bedroom is paired with an ensuite bathroom offering a dual vanity, walk-in shower, and a large walk-in closet—ideal for storing everything from golf attire to outdoor gear.
May also be listed on the D.R. Horton website
Information last verified by Jome: Today at 1:00 AM (March 13, 2026)
Book your tour. Save an average of $18,473. We'll handle the rest.
We collect exclusive builder offers, book your tours, and support you from start to housewarming.
- Confirmed tours
- Get matched & compare top deals
- Expert help, no pressure
- No added fees
Estimated value based on Jome data, T&C apply
Home details
- Property status:
- Move-in ready
- Size:
- 1,580 sqft
- Stories:
- 1
- Beds:
- 3
- Baths:
- 2
- Garage spaces:
- 2
Construction details
- Builder Name:
- D.R. Horton
Home features & finishes
- Garage/Parking:
- Garage
- Rooms:
- Primary Bedroom On MainPrimary Bedroom Downstairs

Get a consultation with our New Homes Expert
- See how your home builds wealth
- Plan your home-buying roadmap
- Discover hidden gems

Community details
Sunny Hills
by D.R. Horton, Chipley, FL
- 13 homes
- 7 plans
- 1,281 - 2,516 sqft
View Sunny Hills details
More homes in Sunny Hills
- Home at address 2236 Shenandoah Blvd, Chipley, FL 32428

Poppy
$224,900
- 3 bd
- 2 ba
- 1,281 sqft
2236 Shenandoah Blvd, Chipley, FL 32428
- Home at address 2072 Apollo Dr, Chipley, FL 32428

Freeport
$234,900
- 4 bd
- 2 ba
- 1,458 sqft
2072 Apollo Dr, Chipley, FL 32428
- Home at address 4098 Gulliver Dr, Chipley, FL 32428

Lismore
$235,102
- 3 bd
- 2 ba
- 1,580 sqft
4098 Gulliver Dr, Chipley, FL 32428
- Home at address 4113 Gulliver Dr, Chipley, FL 32428

Cali
$254,702
- 4 bd
- 2 ba
- 1,799 sqft
4113 Gulliver Dr, Chipley, FL 32428
- Home at address 2295 Country Club Blvd, Chipley, FL 32428

Cali
$259,900
- 4 bd
- 2 ba
- 1,799 sqft
2295 Country Club Blvd, Chipley, FL 32428
- Home at address 2103 Babcock St, Chipley, FL 32428

Cali
$259,900
- 4 bd
- 2 ba
- 1,799 sqft
2103 Babcock St, Chipley, FL 32428
Floor plans in Sunny Hills
About the builder - D.R. Horton

- 1,171communities on Jome
- 10,262homes on Jome
Neighborhood
Home address
- City:
- Chipley
- County:
- Washington
- Zip Code:
- 32428
Schools in Washington County School District
GreatSchools’ Summary Rating calculation is based on 4 of the school’s themed ratings, including test scores, student/academic progress, college readiness, and equity. This information should only be used as a reference. Jome is not affiliated with GreatSchools and does not endorse or guarantee this information. Please reach out to schools directly to verify all information and enrollment eligibility. Data provided by GreatSchools.org © 2025
Places of interest
Getting around
Air quality

Considering this home?
Our expert will guide your tour, in-person or virtual
Need more information?
Text or call (888) 545-5198
Financials
Estimated monthly payment
Let us help you find your dream home
How many bedrooms are you looking for?
Similar homes nearby
Recently added communities in this area
Nearby communities in Chipley
New homes in nearby cities
More New Homes in Chipley, FL
- Jome
- New homes search
- Florida
- Washington County
- Chipley
- Sunny Hills
- 4029 Zinnia Dr, Chipley, FL 32428




























