














Book your tour. Save an average of $18,473. We'll handle the rest.
We collect exclusive builder offers, book your tours, and support you from start to housewarming.
- Confirmed tours
- Get matched & compare top deals
- Expert help, no pressure
- No added fees
Estimated value based on Jome data, T&C apply






























- 5 bd
- 3 ba
- 2,550 sqft
2909 Ervine St, Tallahassee, FL 32308
Why tour with Jome?
- No pressure toursTour at your own pace with no sales pressure
- Expert guidanceGet insights from our home buying experts
- Exclusive accessSee homes and deals not available elsewhere
Jome is featured in
- Single-Family
- Quick move-in
- $187.61/sqft
- 2 days on Jome
Home description
About this home
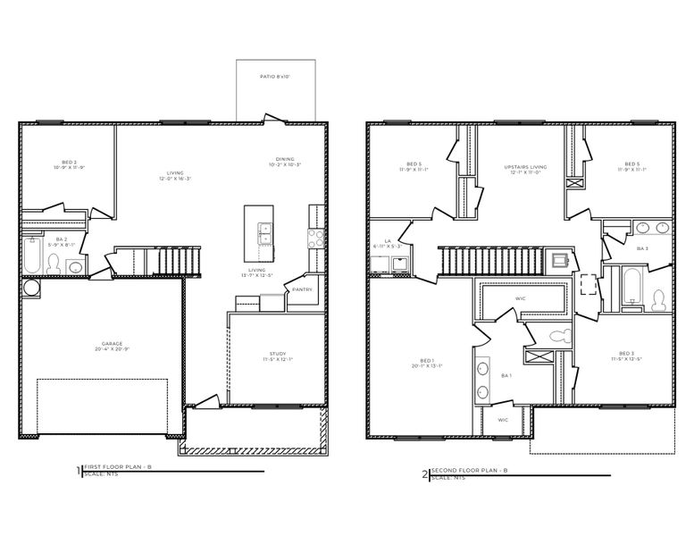
Welcome to 2909 Ervine Street, in Olson Ridge, our newest community in Tallahassee, FL. The Carol is a two-story home with 5 bedrooms, 3 bathrooms, and a two-car garage. The floor plan offers plenty of space and modern amenities, making it one of our popular floorplans.
Walking through the front door, you will first see the luxury vinyl plank flooring that goes throughout the living space. Directly off the entry way is the study in the front of the home, this is a great space for an office or a formal living or dining room.
Continuing in you will find the open living space, incorporating the living room, kitchen, and dining space. The kitchen comes complete with beautiful granite countertops, stainless-steel appliances, and white shaker-style cabinets. The large island centers the kitchen, offering the space to entertain and perfect for everyday life.
Upstairs you will find the bedrooms spaced apart, and an open area perfect for a kids play area or a reading spot in your home. Each bedroom offers space for your entire family and is complete with soft carpeting. The primary suite is an exceptional space made to be your private retreat. Your primary bathroom features double vanity, large shower, and two closets.
Beyond the interior features and open space, each home is equipped with our Smart Home package. This enhances your connective allowing you to control various aspects of your home with ease. Most importantly, you can feel comfortable knowing Quality materials and workmanship are done throughout, plus you will have a one-year builders’ warranty.
May also be listed on the D.R. Horton website
Information last verified by Jome: Today at 1:20 AM (March 12, 2026)
Book your tour. Save an average of $18,473. We'll handle the rest.
We collect exclusive builder offers, book your tours, and support you from start to housewarming.
- Confirmed tours
- Get matched & compare top deals
- Expert help, no pressure
- No added fees
Estimated value based on Jome data, T&C apply
Home details
- Property status:
- Move-in ready
- Size:
- 2,550 sqft
- Stories:
- 2
- Beds:
- 5
- Baths:
- 3
- Garage spaces:
- 2
Construction details
- Builder Name:
- D.R. Horton
Home features & finishes
- Garage/Parking:
- Garage

Get a consultation with our New Homes Expert
- See how your home builds wealth
- Plan your home-buying roadmap
- Discover hidden gems

Community details
Olson Ridge
by D.R. Horton, Tallahassee, FL
- 4 homes
- 5 plans
- 1,580 - 2,550 sqft
View Olson Ridge details
More homes in Olson Ridge
- Home at address 2951 Ervine St, Tallahassee, FL 32308

The Belfort
$435,900
- 4 bd
- 2.5 ba
- 2,259 sqft
2951 Ervine St, Tallahassee, FL 32308
- Home at address 2903 Ervine St, Tallahassee, FL 32308

The Belfort
$458,900
- 4 bd
- 2.5 ba
- 2,259 sqft
2903 Ervine St, Tallahassee, FL 32308
- Home at address 2927 Ervine St, Tallahassee, FL 32308

The Belfort
$459,900
- 4 bd
- 2.5 ba
- 2,259 sqft
2927 Ervine St, Tallahassee, FL 32308
Floor plans in Olson Ridge
About the builder - D.R. Horton

- 1,171communities on Jome
- 10,206homes on Jome
Neighborhood
Home address
- City:
- Tallahassee
- County:
- Leon
- Zip Code:
- 32308
Schools in Leon County School District
GreatSchools’ Summary Rating calculation is based on 4 of the school’s themed ratings, including test scores, student/academic progress, college readiness, and equity. This information should only be used as a reference. Jome is not affiliated with GreatSchools and does not endorse or guarantee this information. Please reach out to schools directly to verify all information and enrollment eligibility. Data provided by GreatSchools.org © 2025
Places of interest
Getting around
1 nearby routes: 1 bus, 0 rail, 0 otherAir quality
Noise level
A Soundscore™ rating is a number between 50 (very loud) and 100 (very quiet) that tells you how loud a location is due to environmental noise.

Considering this home?
Our expert will guide your tour, in-person or virtual
Need more information?
Text or call (888) 488-9243
Financials
Estimated monthly payment
Let us help you find your dream home
How many bedrooms are you looking for?
Similar homes nearby
Recently added communities in this area
Nearby communities in Tallahassee
New homes in nearby cities
More New Homes in Tallahassee, FL
- Jome
- New homes search
- Florida
- Leon County
- Tallahassee
- Olson Ridge
- 2909 Ervine St, Tallahassee, FL 32308
















