









Book your tour. Save an average of $18,473. We'll handle the rest.
We collect exclusive builder offers, book your tours, and support you from start to housewarming.
- Confirmed tours
- Get matched & compare top deals
- Expert help, no pressure
- No added fees
Estimated value based on Jome data, T&C apply

































- 4 bd
- 2.5 ba
- 2,416 sqft
157 Milestone Trl, Crawfordville, FL 32327
Why tour with Jome?
- No pressure toursTour at your own pace with no sales pressure
- Expert guidanceGet insights from our home buying experts
- Exclusive accessSee homes and deals not available elsewhere
Jome is featured in
- Single-Family
- Quick move-in
- $153.1/sqft
- 49 days on Jome
Home description
About this home
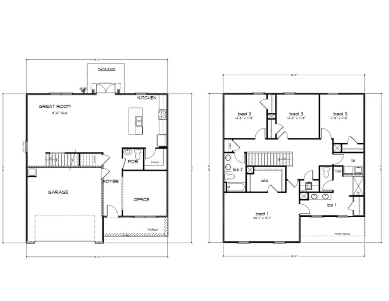
Welcome to 157 Milestone Trail in Wesley Park, our new home community in Crawfordville, FL. The Galen is an inviting two-story single-family home offers 2,416 square feet of modern living space with 4 bedrooms, 2.5 bathrooms, and a spacious 2-car garage, perfectly suited for families of all sizes.
On the first floor, the Galen welcomes you with an open-concept layout ideal for everyday living and entertaining. The expansive great room flows seamlessly into the well-appointed kitchen, complete with a large center island, ample countertop space, and a walk-in pantry—perfect for meal prep, gatherings, or casual dining. Adjacent to the main living area is a versatile flex room. A convenient half bathroom completes the first-floor layout, offering comfort and accessibility for guests.
On the second floor, all four bedrooms are thoughtfully positioned for privacy and comfort. The primary suite includes a spacious bedroom, an en-suite bathroom with dual vanities, a walk-n shower, and generous closet space. The three additional bedrooms each feature ample closet space and easy access to a well-designed shared full bathroom. A second-floor laundry room adds another layer of convenience, helping keep household routines running smoothly.
Beyond the interior features and details, every home is equipped with Smart Home Technology. This thoughtful integration of technology ensures that your new home is perfectly designed to meet the demands of modern life. Enjoy quality materials and workmanship throughout, with superior attention to detail, plus a one-year builder’s warranty. The Galen offers the perfect blend of style, functionality, and long-term value.
May also be listed on the D.R. Horton website
Information last verified by Jome: Today at 2:06 AM (May 8, 2026)
Book your tour. Save an average of $18,473. We'll handle the rest.
We collect exclusive builder offers, book your tours, and support you from start to housewarming.
- Confirmed tours
- Get matched & compare top deals
- Expert help, no pressure
- No added fees
Estimated value based on Jome data, T&C apply
Home details
- Property status:
- Move-in ready
- Size:
- 2,416 sqft
- Stories:
- 2
- Beds:
- 4
- Baths:
- 2.5
- Garage spaces:
- 2
Construction details
- Builder Name:
- D.R. Horton
Home features & finishes
- Garage/Parking:
- GarageAttached Garage
- Interior Features:
- Walk-In ClosetFoyer
- Laundry facilities:
- Utility/Laundry Room
- Property amenities:
- PatioPorch
- Rooms:
- KitchenOffice/StudyDining RoomFamily RoomPrimary Bedroom Upstairs

Get a consultation with our New Homes Expert
- See how your home builds wealth
- Plan your home-buying roadmap
- Discover hidden gems

Community details
Wesley Park
by D.R. Horton, Crawfordville, FL
- 19 homes
- 5 plans
- 1,580 - 2,550 sqft
View Wesley Park details
More homes in Wesley Park
- Home at address 189 Pruitt Dr, Crawfordville, FL 32327

The Cali
$314,900
- 4 bd
- 2 ba
- 1,799 sqft
189 Pruitt Dr, Crawfordville, FL 32327
- Home at address 153 Milestone Trl, Crawfordville, FL 32327

The Cali
$329,900
- 4 bd
- 2 ba
- 1,799 sqft
153 Milestone Trl, Crawfordville, FL 32327
- Home at address 203 Milestone Trl, Crawfordville, FL 32327

The Cali
$334,900
- 4 bd
- 2 ba
- 1,799 sqft
203 Milestone Trl, Crawfordville, FL 32327
- Home at address 164 Milestone Trl, Crawfordville, FL 32327

The Lakeside
$337,900
- 5 bd
- 3 ba
- 2,043 sqft
164 Milestone Trl, Crawfordville, FL 32327
- Home at address 173 Pruitt Dr, Crawfordville, FL 32327

The Galen
$339,900
- 4 bd
- 2.5 ba
- 2,416 sqft
173 Pruitt Dr, Crawfordville, FL 32327
- Home at address 152 Milestone Trl, Crawfordville, FL 32327

The Lakeside
$340,900
- 5 bd
- 3 ba
- 2,043 sqft
152 Milestone Trl, Crawfordville, FL 32327
Floor plans in Wesley Park
About the builder - D.R. Horton

- 1,147communities on Jome
- 11,228homes on Jome
Neighborhood
Home address
- City:
- Crawfordville
- County:
- Wakulla
- Zip Code:
- 32327
Schools in Wakulla County School District
- Grades PK-PKPublicteen parent pk child care program1.7 mi69 arran rdna
GreatSchools’ Summary Rating calculation is based on 4 of the school’s themed ratings, including test scores, student/academic progress, college readiness, and equity. This information should only be used as a reference. Jome is not affiliated with GreatSchools and does not endorse or guarantee this information. Please reach out to schools directly to verify all information and enrollment eligibility. Data provided by GreatSchools.org © 2025
Places of interest
Getting around
Air quality

Considering this home?
Our expert will guide your tour, in-person or virtual
Need more information?
Text or call (888) 545-5198
Financials
Estimated monthly payment
Let us help you find your dream home
How many bedrooms are you looking for?
Similar homes nearby
Recently added communities in this area
Nearby communities in Crawfordville
New homes in nearby cities
More New Homes in Crawfordville, FL
- Jome
- New homes search
- Florida
- Wakulla County
- Crawfordville
- Wesley Park
- 157 Milestone Trl, Crawfordville, FL 32327



















