














Book your tour. Save an average of $18,473. We'll handle the rest.
We collect exclusive builder offers, book your tours, and support you from start to housewarming.
- Confirmed tours
- Get matched & compare top deals
- Expert help, no pressure
- No added fees
Estimated value based on Jome data, T&C apply






















- 4 bd
- 3 ba
- 2,415 sqft
34 Foxtrail Run, Freeport, FL 32439
Why tour with Jome?
- No pressure toursTour at your own pace with no sales pressure
- Expert guidanceGet insights from our home buying experts
- Exclusive accessSee homes and deals not available elsewhere
Jome is featured in
- Single-Family
- Quick move-in
- $186.71/sqft
- 1 days on Jome
Home description
About this home
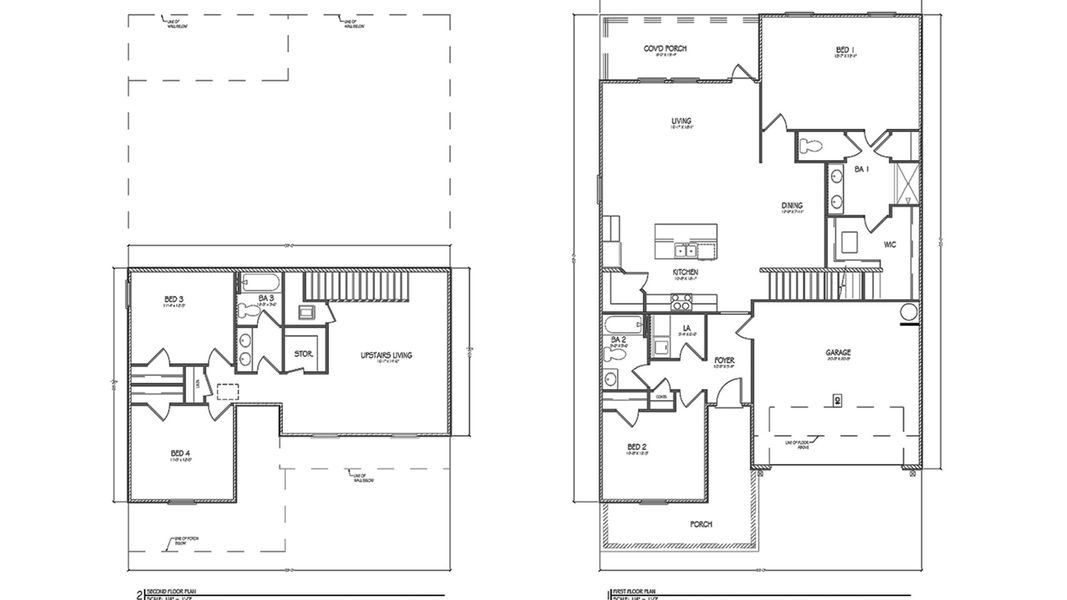
Welcome to 34 Foxtrail Run at Ashton Park Phase III in Freeport Florida. This pre-construction homesite offers the opportunity to secure new construction prior to groundbreaking. This property will be developed with the Ozark floorplan and built to current design standards and specifications. Buyers may have the ability to personalize select finishes depending on the stage of construction. Estimated completion timelines and build details available upon request.
This home has just over 2,500 square feet through two stories, with 4 bedrooms with 3 bathrooms, a 2-car garage, and a seamless open layout. There is a covered front porch and entry door.
As you enter the home, you are met with the foyer leading to the open concept living area. Just off the entry hall, you will find a guest bedroom featuring a full bathroom and the laundry room. Continuing through the foyer you enter the open concept living area including the kitchen, living room and dining space. The kitchen includes quartz countertops, under mount sink, smooth top range, stainless steel appliances, pantry, stylish shaker cabinetry, and a center island. With natural light and nearby covered patio access, the living and dining area are integrated perfectly.
At the back of the main living area is the primary bedroom. This bedroom is a spacious and relaxing room that includes an ensuite bathroom. The primary bathroom has a dual sink vanity, a separate water closet, shower and walk-in closet.
Returning to the foyer you will find stairs leading to the second floor. On the second level, there is an additional living area that could be used as a media room or study. There are two guest bedrooms on the second level as well as a full bathroom dual sink vanity and shower tub combination.
May also be listed on the D.R. Horton website
Information last verified by Jome: Today at 3:00 AM (February 26, 2026)
Book your tour. Save an average of $18,473. We'll handle the rest.
We collect exclusive builder offers, book your tours, and support you from start to housewarming.
- Confirmed tours
- Get matched & compare top deals
- Expert help, no pressure
- No added fees
Estimated value based on Jome data, T&C apply
Home details
- Property status:
- Move-in ready
- Size:
- 2,415 sqft
- Stories:
- 2
- Beds:
- 4
- Baths:
- 3
- Garage spaces:
- 2
Construction details
- Builder Name:
- D.R. Horton
Home features & finishes
- Garage/Parking:
- Garage

Get a consultation with our New Homes Expert
- See how your home builds wealth
- Plan your home-buying roadmap
- Discover hidden gems

Community details
Ashton Park Phase III
by D.R. Horton, Freeport, FL
- 16 homes
- 11 plans
- 1,580 - 3,001 sqft
View Ashton Park Phase III details
More homes in Ashton Park Phase III
- Home at address 31 Foxtrail Run, Freeport, FL 32439

Beau
$364,900
- 4 bd
- 2 ba
- 1,799 sqft
31 Foxtrail Run, Freeport, FL 32439
- Home at address 41 Foxtrail Run, Freeport, FL 32439

Creekside
$379,900
- 5 bd
- 3 ba
- 2,107 sqft
41 Foxtrail Run, Freeport, FL 32439
- Home at address 69 Foxtrail Run, Freeport, FL 32439

Creekside
$379,900
- 5 bd
- 3 ba
- 2,107 sqft
69 Foxtrail Run, Freeport, FL 32439
- Home at address 59 Foxtrail Run, Freeport, FL 32439

Easton
$389,900
- 4 bd
- 2 ba
- 2,109 sqft
59 Foxtrail Run, Freeport, FL 32439
- Home at address 68 Foxtrail Run, Freeport, FL 32439

Riverside
$411,900
- 5 bd
- 3 ba
- 2,107 sqft
68 Foxtrail Run, Freeport, FL 32439
- Home at address 50 Foxtrail Run, Freeport, FL 32439

Riverside
$411,900
- 5 bd
- 3 ba
- 2,107 sqft
50 Foxtrail Run, Freeport, FL 32439
Floor plans in Ashton Park Phase III
About the builder - D.R. Horton

- 1,201communities on Jome
- 9,954homes on Jome
Neighborhood
Home address
Schools in Walton County School District
- Grades 07-12Privatewestonwood ranch4.5 mi4390 state highway 20 wna
GreatSchools’ Summary Rating calculation is based on 4 of the school’s themed ratings, including test scores, student/academic progress, college readiness, and equity. This information should only be used as a reference. Jome is not affiliated with GreatSchools and does not endorse or guarantee this information. Please reach out to schools directly to verify all information and enrollment eligibility. Data provided by GreatSchools.org © 2025
Places of interest
Getting around

Considering this home?
Our expert will guide your tour, in-person or virtual
Need more information?
Text or call (888) 488-9243
Financials
Estimated monthly payment
Let us help you find your dream home
How many bedrooms are you looking for?
Similar homes nearby
Recently added communities in this area
Nearby communities in Freeport
New homes in nearby cities
More New Homes in Freeport, FL
- Jome
- New homes search
- Florida
- Walton County
- Freeport
- Ashton Park Phase III
- 34 Foxtrail Run, Freeport, FL 32439


































