














Book your tour. Save an average of $18,473. We'll handle the rest.
We collect exclusive builder offers, book your tours, and support you from start to housewarming.
- Confirmed tours
- Get matched & compare top deals
- Expert help, no pressure
- No added fees
Estimated value based on Jome data, T&C apply

- 3 bd
- 2 ba
- 1,223 sqft
17914 Wheat Stack Ct, Parrish, FL 34219
Why tour with Jome?
- No pressure toursTour at your own pace with no sales pressure
- Expert guidanceGet insights from our home buying experts
- Exclusive accessSee homes and deals not available elsewhere
Jome is featured in
- Single-Family
- Ready by June 2026
- $264.92/sqft
- $132/monthly HOA
Home description
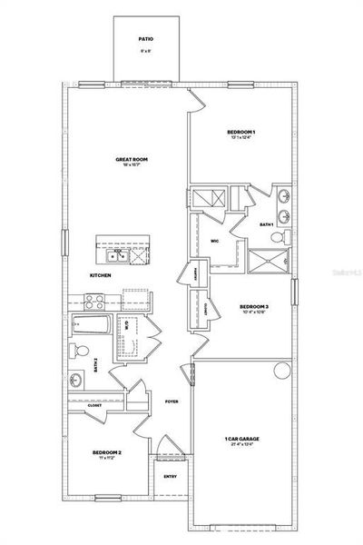
Receive up to $20,000 towards Flex Cash & Closing Costs + special interest rates with the use of our preferred lender - now through February 28th. The Greenbriar is a thoughtfully designed 3-bedroom, 2-bathroom single-family home that blends comfort and functionality, making it an ideal choice for families of all sizes. From the moment you step inside, you’re welcomed by an inviting layout that maximizes space. At the heart of the home, a well-appointed kitchen seamlessly flows into the spacious Great Room, creating the perfect setting for family gatherings or casual meals. Just beyond, large sliding doors lead to the outdoor patio, extending your living space. The Master Bedroom is thoughtfully tucked away at the rear of the home, offering a quiet and peaceful escape. With its en-suite bathroom and walk-in closet, this space provides both comfort and privacy. This community offers resort-style living with amenities for everyone, including a sparkling pool, fitness room, playground, dog park, and both pickleball and tennis courts. Residents can also enjoy friendly competition at the beach volleyball and basketball courts, creating the perfect blend of relaxation and recreation.
D.R. HORTON REALTY OF SARASOTA, MLS A4683937
May also be listed on the D.R. Horton website
Information last verified by Jome: Today at 9:55 AM (February 27, 2026)
Home highlights
MacDill AFB offers secure housing, top-rated schools, and abundant amenities in vibrant South Tampa.
Book your tour. Save an average of $18,473. We'll handle the rest.
We collect exclusive builder offers, book your tours, and support you from start to housewarming.
- Confirmed tours
- Get matched & compare top deals
- Expert help, no pressure
- No added fees
Estimated value based on Jome data, T&C apply
Home details
- Property status:
- Under construction
- Lot size (acres):
- 0.13
- Size:
- 1,223 sqft
- Stories:
- 1
- Beds:
- 3
- Baths:
- 2
- Garage spaces:
- 1
- Facing direction:
- Northeast
Construction details
- Builder Name:
- D.R. Horton
- Completion Date:
- June, 2026
- Year Built:
- 2026
- Roof:
- Shingle Roofing
Home features & finishes
- Construction Materials:
- Concrete
- Cooling:
- Central Air
- Flooring:
- Vinyl FlooringCarpet Flooring
- Foundation Details:
- Slab
- Garage/Parking:
- Door OpenerGarageAttached Garage
- Interior Features:
- Shutters
- Kitchen:
- DishwasherMicrowave OvenRefrigeratorKitchen Range
- Laundry facilities:
- DryerWasherUtility/Laundry Room
- Pets:
- Pets Allowed
- Property amenities:
- Smart Home System
- Rooms:
- Primary Bedroom On MainPrimary Bedroom Downstairs
- Security system:
- Smoke Detector

Get a consultation with our New Homes Expert
- See how your home builds wealth
- Plan your home-buying roadmap
- Discover hidden gems
Utility information
- Heating:
- Electric Heating, Thermostat
- Utilities:
- Electricity Available

Community details
Rye Crossing
by D.R. Horton, Parrish, FL
- 24 homes
- 16 plans
- 1,223 - 2,773 sqft
View Rye Crossing details
Community amenities
- Playground
- Fitness Center/Exercise Area
- Club House
- Tennis Courts
- Gated Community
- Community Pool
More homes in Rye Crossing
- Home at address 17901 Wheat Stack Ct, Parrish, FL 34219

Archer II
$347,000
- 3 bd
- 2 ba
- 1,328 sqft
17901 Wheat Stack Ct, Parrish, FL 34219
- Home at address 17917 Wheat Stack Ct, Parrish, FL 34219

Archer II
$347,000
- 3 bd
- 2 ba
- 1,328 sqft
17917 Wheat Stack Ct, Parrish, FL 34219
- Home at address 17929 Wheat Stack Ct, Parrish, FL 34219

Archer II
$349,000
- 3 bd
- 2 ba
- 1,328 sqft
17929 Wheat Stack Ct, Parrish, FL 34219
- Home at address 17947 Wheat Stack Ct, Parrish, FL 34219

Archer II
$352,000
- 3 bd
- 2 ba
- 1,328 sqft
17947 Wheat Stack Ct, Parrish, FL 34219
- Home at address 17930 Wheat Stack Ct, Parrish, FL 34219

Cameron
$359,000
- 4 bd
- 2 ba
- 1,560 sqft
17930 Wheat Stack Ct, Parrish, FL 34219
- Home at address 17910 Wheat Stack Ct, Parrish, FL 34219

Cameron
$359,990
- 4 bd
- 2 ba
- 1,560 sqft
17910 Wheat Stack Ct, Parrish, FL 34219
Floor plans in Rye Crossing
About the builder - D.R. Horton

- 1,201communities on Jome
- 9,882homes on Jome
Neighborhood
Home address
Schools in Manatee County School District
GreatSchools’ Summary Rating calculation is based on 4 of the school’s themed ratings, including test scores, student/academic progress, college readiness, and equity. This information should only be used as a reference. Jome is not affiliated with GreatSchools and does not endorse or guarantee this information. Please reach out to schools directly to verify all information and enrollment eligibility. Data provided by GreatSchools.org © 2025
Places of interest
Getting around
Air quality

Considering this home?
Our expert will guide your tour, in-person or virtual
Need more information?
Text or call (888) 488-9243
Financials
Estimated monthly payment
Let us help you find your dream home
How many bedrooms are you looking for?
Similar homes nearby
Recently added communities in this area
Nearby communities in Parrish
New homes in nearby cities
More New Homes in Parrish, FL
D.R. HORTON REALTY OF SARASOTA, MLS A4683937
Based on information submitted to the MLS GRID as of 10/21/2024 2:31 PM CDT. All data is obtained from various sources and may not have been verified by broker or MLS GRID. Supplied Open House Information is subject to change without notice. All information should be independently reviewed and verified for accuracy. Properties may or may not be listed by the office/agent presenting the information. Some IDX listings have been excluded from this website. Properties displayed may be listed or sold by various participants in the MLS. IDX information is provided exclusively for personal, non-commercial use, and may not be used for any purpose other than to identify prospective properties consumers may be interested in purchasing. Information is deemed reliable but not guaranteed. Use of the MLS GRID Data may be subject to an end user license agreement prescribed by the Member Participant’s applicable MLS if any and as amended from time to time. The Digital Millennium Copyright Act of 1998, 17 U.S.C. § 512 (the “DMCA”) provides recourse for copyright owners who believe that material appearing on the Internet infringes their rights under U.S. copyright law. If you believe in good faith that any content or material made available in connection with our website or services infringes your copyright, you (or your agent) may send us a notice requesting that the content or material be removed, or access to it blocked. Notices must be sent in writing by email to DMCAnotice@MLSGrid.com. The DMCA requires that your notice of alleged copyright infringement include the following information: (1) description of the copyrighted work that is the subject of claimed infringement; (2) description of the alleged infringing content and information sufficient to permit us to locate the content; (3) contact information for you, including your address, telephone number and email address; (4) a statement by you that you have a good faith belief that the content in the manner complained of is not authorized by the copyright owner, or its agent, or by the operation of any law; (5) a statement by you, signed under penalty of perjury, that the information in the notification is accurate and that you have the authority to enforce the copyrights that are claimed to be infringed; and (6) a physical or electronic signature of the copyright owner or a person authorized to act on the copyright owner’s behalf. Failure to include all of the above information may result in the delay of the processing of your complaint. Listing Information presented by local MLS brokerage: NewHomesMate LLC, DBA Jome (888) 488-9243
Read moreLast checked Feb 27, 9:10 am
- Jome
- New homes search
- Florida
- Tampa Bay Area
- Manatee County
- Parrish
- Rye Crossing
- 17914 Wheat Stack Ct, Parrish, FL 34219































