



Book your tour. Save an average of $18,473. We'll handle the rest.
We collect exclusive builder offers, book your tours, and support you from start to housewarming.
- Confirmed tours
- Get matched & compare top deals
- Expert help, no pressure
- No added fees
Estimated value based on Jome data, T&C apply
- 4 bd
- 2.5 ba
- 1,638 sqft
1089 Cornelius Blvd, Port Charlotte, FL 33953
Why tour with Jome?
- No pressure toursTour at your own pace with no sales pressure
- Expert guidanceGet insights from our home buying experts
- Exclusive accessSee homes and deals not available elsewhere
Jome is featured in
- Single-Family
- Ready by April 2026
- $289.93/sqft
- Southwest facing
Home description
Rare opportunity in Flood Zone X with city water — a highly desirable combination in Port Charlotte.
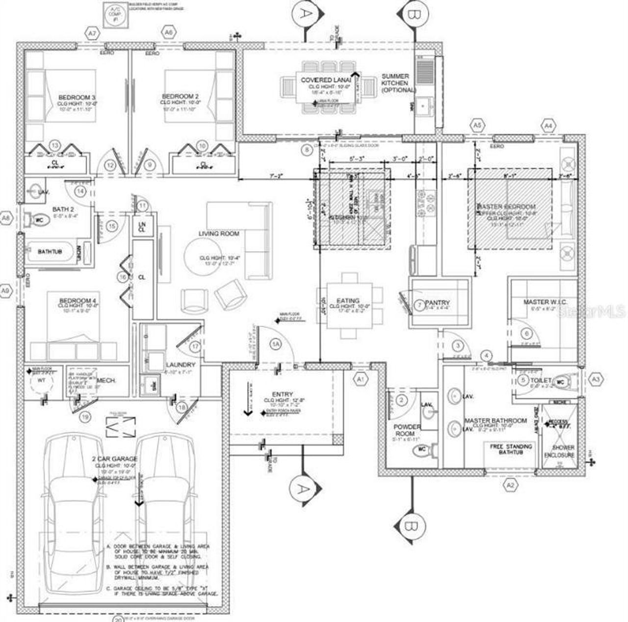
This exceptional new construction home have 4 Bedrooms, 2 Bathrooms and 1 additional Half Bath/Powder Room with a true open-concept layout seamlessly integrating the kitchen, dining, and living areas into one expansive central living space. Large sliding doors extend directly to a spacious covered lanai with a fully equipped summer kitchen, creating the ideal Florida indoor-outdoor lifestyle.
Built with upgraded construction standards and refined modern finishes throughout.
Property Features:
4 Bedrooms, 2 Bathrooms and 1additional Half Bath/Powder Room,
Flood Zone X (typically no flood insurance required),
City Water,
True open-concept integration,
Expansive covered lanai,
Fully equipped summer kitchen,
Level 3 smooth drywall finish (no textured walls),
Enhanced insulation for improved energy efficiency,
Modern kitchen cabinetry with contemporary hardware,
Waterfall style island ,
Kitchen appliance package included (refrigerator included),
Primary suite with freestanding soaking tub, Matte black fixtures and modern lighting throughout.
A rare combination of upgraded construction, desirable location advantages, and modern design at an exceptional price point.
Buyer incentives available: Seller contribution toward closing costs OR 2/1 interest rate buydown option, FHA financing available (3.5 percentage down)
Schedule your showing today.
WRA BUSINESS & REAL ESTATE, MLS O6384140
Information last verified by Jome: Today at 9:55 AM (February 27, 2026)
Book your tour. Save an average of $18,473. We'll handle the rest.
We collect exclusive builder offers, book your tours, and support you from start to housewarming.
- Confirmed tours
- Get matched & compare top deals
- Expert help, no pressure
- No added fees
Estimated value based on Jome data, T&C apply
Home details
- Property status:
- Under construction
- Lot size (acres):
- 0.23
- Size:
- 1,638 sqft
- Stories:
- 1
- Beds:
- 4
- Baths:
- 2
- Half baths:
- 1
- Garage spaces:
- 2
- Facing direction:
- Southwest
Construction details
- Completion Date:
- April, 2026
- Year Built:
- 2026
- Roof:
- Shingle Roofing
Home features & finishes
- Construction Materials:
- StuccoBlock
- Cooling:
- Central Air
- Flooring:
- Tile Flooring
- Foundation Details:
- Slab
- Garage/Parking:
- GarageAttached Garage
- Interior Features:
- Walk-In ClosetSliding Doors
- Kitchen:
- DishwasherMicrowave OvenRefrigeratorKitchen Range
- Lighting:
- Exterior Lighting
- Pets:
- Pets Allowed
- Property amenities:
- SidewalkCabinets
- Rooms:
- Primary Bedroom On MainDining RoomFamily RoomLiving RoomOpen Concept FloorplanPrimary Bedroom Downstairs

Get a consultation with our New Homes Expert
- See how your home builds wealth
- Plan your home-buying roadmap
- Discover hidden gems
Utility information
- Heating:
- Thermostat, Central Heating
- Utilities:
- Other
Neighborhood
Home address
- City:
- Port Charlotte
- County:
- Charlotte
- Zip Code:
- 33953
Schools in Charlotte County School District
GreatSchools’ Summary Rating calculation is based on 4 of the school’s themed ratings, including test scores, student/academic progress, college readiness, and equity. This information should only be used as a reference. Jome is not affiliated with GreatSchools and does not endorse or guarantee this information. Please reach out to schools directly to verify all information and enrollment eligibility. Data provided by GreatSchools.org © 2025
Places of interest
Getting around
Air quality
Noise level
A Soundscore™ rating is a number between 50 (very loud) and 100 (very quiet) that tells you how loud a location is due to environmental noise.
Natural hazards risk
Provided by FEMA

Considering this home?
Our expert will guide your tour, in-person or virtual
Need more information?
Text or call (888) 488-9243
Financials
Estimated monthly payment
Let us help you find your dream home
How many bedrooms are you looking for?
Similar homes nearby
Recently added communities in this area
Nearby communities in Port Charlotte
New homes in nearby cities
More New Homes in Port Charlotte, FL
WRA BUSINESS & REAL ESTATE, MLS O6384140
Based on information submitted to the MLS GRID as of 10/21/2024 2:31 PM CDT. All data is obtained from various sources and may not have been verified by broker or MLS GRID. Supplied Open House Information is subject to change without notice. All information should be independently reviewed and verified for accuracy. Properties may or may not be listed by the office/agent presenting the information. Some IDX listings have been excluded from this website. Properties displayed may be listed or sold by various participants in the MLS. IDX information is provided exclusively for personal, non-commercial use, and may not be used for any purpose other than to identify prospective properties consumers may be interested in purchasing. Information is deemed reliable but not guaranteed. Use of the MLS GRID Data may be subject to an end user license agreement prescribed by the Member Participant’s applicable MLS if any and as amended from time to time. The Digital Millennium Copyright Act of 1998, 17 U.S.C. § 512 (the “DMCA”) provides recourse for copyright owners who believe that material appearing on the Internet infringes their rights under U.S. copyright law. If you believe in good faith that any content or material made available in connection with our website or services infringes your copyright, you (or your agent) may send us a notice requesting that the content or material be removed, or access to it blocked. Notices must be sent in writing by email to DMCAnotice@MLSGrid.com. The DMCA requires that your notice of alleged copyright infringement include the following information: (1) description of the copyrighted work that is the subject of claimed infringement; (2) description of the alleged infringing content and information sufficient to permit us to locate the content; (3) contact information for you, including your address, telephone number and email address; (4) a statement by you that you have a good faith belief that the content in the manner complained of is not authorized by the copyright owner, or its agent, or by the operation of any law; (5) a statement by you, signed under penalty of perjury, that the information in the notification is accurate and that you have the authority to enforce the copyrights that are claimed to be infringed; and (6) a physical or electronic signature of the copyright owner or a person authorized to act on the copyright owner’s behalf. Failure to include all of the above information may result in the delay of the processing of your complaint. Listing Information presented by local MLS brokerage: NewHomesMate LLC, DBA Jome (888) 488-9243
Read moreLast checked Feb 27, 9:10 am
- Jome
- New homes search
- Florida
- Charlotte County
- Port Charlotte
- 1089 Cornelius Blvd, Port Charlotte, FL 33953


























