




Book your tour. Save an average of $18,473. We'll handle the rest.
- Confirmed tours
- Get matched & compare top deals
- Expert help, no pressure
- No added fees
Estimated value based on Jome data, T&C apply
Why tour with Jome?
- No pressure toursTour at your own pace with no sales pressure
- Expert guidanceGet insights from our home buying experts
- Exclusive accessSee homes and deals not available elsewhere
Jome is featured in
- Single-Family
- Quick move-in
- $186.13/sqft
- $289/quarterly HOA
Home description
About this home
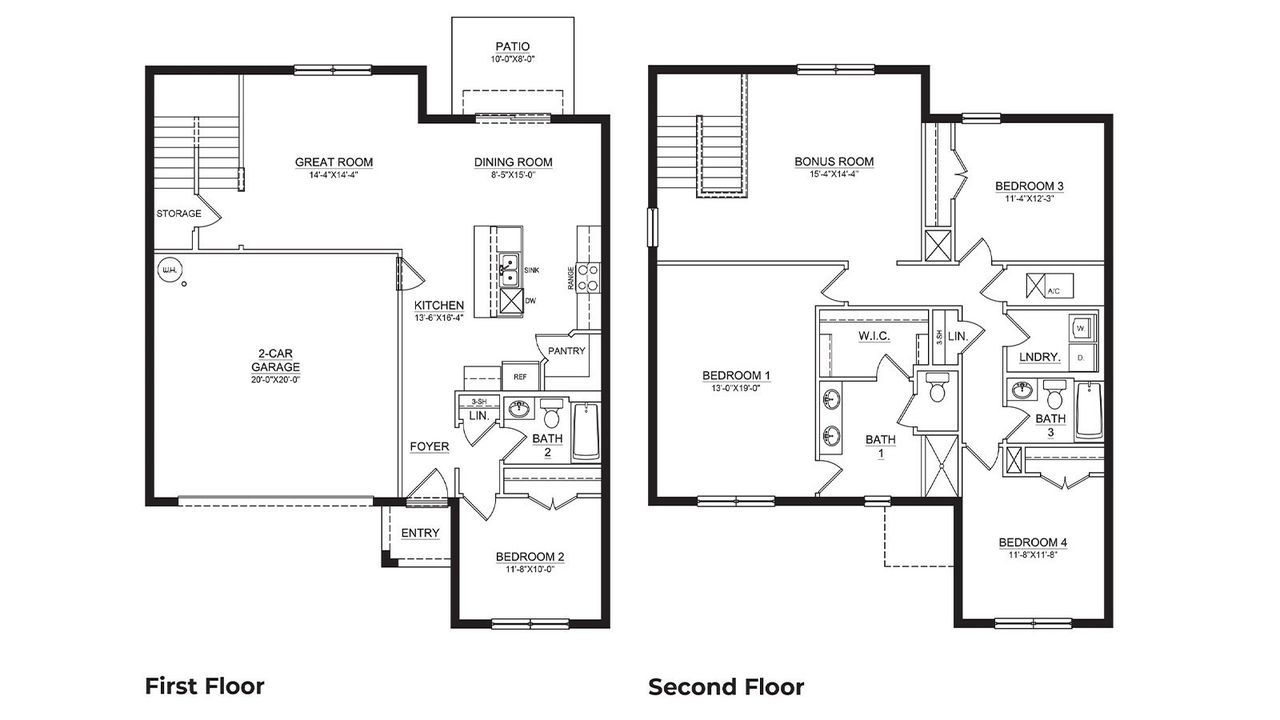
Introducing the Ensley floorplan, a unique two-story all block construction home available in Timberwalk., one of our communities in Mount Dora, Florida.
Inside this 4 bedroom, 3 bathroom home you will find 2,372 square feet of desirable living. As you step through the foyer you are greeted with a well-appointed kitchen that features an island with bar seating, cabinets for storage, quartz countertops and stainless-steel appliances. The kitchen overlooks the dining room, great room and outdoor patio making entertaining guests or enjoying time with family easy.
The first floor also consists of a bedroom and full bathroom. Perfect for giving your guests extra privacy during their stay. The second floor is complete with bedroom one, two additional bedrooms and the laundry room. The primary bedroom includes its own bathroom with a dual vanity sink, separate shower and walk in closet.
Like all homes in Timberwalk, the Ensley includes smart home technology, which allows you to control your home anytime with your smart device while near or away.
May also be listed on the D.R. Horton website
Information last verified by Jome: Today at 3:12 AM (December 23, 2025)
Home highlights
Natural spring park near Orlando with clear swimming waters, canoeing, and trails amid lush Central Florida forest.
Book your tour. Save an average of $18,473. We'll handle the rest.
We collect exclusive builder offers, book your tours, and support you from start to housewarming.
- Confirmed tours
- Get matched & compare top deals
- Expert help, no pressure
- No added fees
Estimated value based on Jome data, T&C apply
Home details
- Property status:
- Move-in ready
- Size:
- 2,372 sqft
- Stories:
- 2
- Beds:
- 4
- Baths:
- 3
- Garage spaces:
- 2
Construction details
- Builder Name:
- D.R. Horton
Home features & finishes
- Garage/Parking:
- GarageAttached Garage
- Interior Features:
- Walk-In ClosetFoyerPantryStorage
- Laundry facilities:
- Laundry Facilities On Upper LevelUtility/Laundry Room
- Property amenities:
- Patio
- Rooms:
- Bonus RoomKitchenDining RoomFamily RoomOpen Concept FloorplanPrimary Bedroom Upstairs

Community details
Timberwalk
by D.R. Horton, Mount Dora, FL
- 11 homes
- 7 plans
- 1,605 - 2,725 sqft
View Timberwalk details
More homes in Timberwalk
Floor plans in Timberwalk
About the builder - D.R. Horton
Neighborhood
Home address
- City:
- Mount Dora
- County:
- Lake
- Zip Code:
- 32757
Schools in Lake County School District
- Grades KG-08Privatemontessori at roseborough2.5 mi500 s clayton stna
GreatSchools’ Summary Rating calculation is based on 4 of the school’s themed ratings, including test scores, student/academic progress, college readiness, and equity. This information should only be used as a reference. Jome is not affiliated with GreatSchools and does not endorse or guarantee this information. Please reach out to schools directly to verify all information and enrollment eligibility. Data provided by GreatSchools.org © 2025
Places of interest
Getting around
Noise level
A Soundscore™ rating is a number between 50 (very loud) and 100 (very quiet) that tells you how loud a location is due to environmental noise.
Natural hazards risk
Climate hazards can impact homes and communities, with risks varying by location. These scores reflect the potential impact of natural disasters and climate-related risks on Lake County
Provided by FEMA

Considering this home?
Our expert will guide your tour, in-person or virtual
Need more information?
Text or call (888) 486-2818
Financials
Estimated monthly payment
Similar homes nearby
Recently added communities in this area
Nearby communities in Mount Dora
New homes in nearby cities
More New Homes in Mount Dora, FL
- Jome
- New homes search
- Florida
- Greater Orlando Area
- Lake County
- Mount Dora
- Timberwalk
- 1245 Alstonia Ln, Mount Dora, FL 32757






































