


































- 2 bd
- 2 ba
- 1,778 sqft
Undisclosed Address
- Single-Family
- $236.01/sqft
- $514/monthly HOA
- South facing
New Homes for Sale Nearby
About this Home
What's Special: North Facing Patio | No Rear Neighbors| Flex Room| Dedicated Study. New Construction - February Completion! Built by Americ'a Most Trusted Home Builder. Welcome to the Bergamo at 13329 SW Mazzano Street in Esplanade at Tradition. This inviting home features an open layout with a bright kitchen that flows into the great room and out to a covered lanai. The primary suite is tucked away for privacy, while a secondary bedroom, full bath, and study sit near the front. Discover Esplanade at Tradition, a vibrant 55+ community with resort-style amenities, pool, tropical beach, and cabanas. Additional highlights include: extended covered lanai, study, 8' interior doors throughout, pre-plumb for future laundry sink. Photos are for representative purposes only. MLS#F10542202
Taylor Morrison Realty of Florida, MLS F10542202
May also be listed on the Taylor Morrison website
Information last verified by Jome: Today at 11:00 AM (May 17, 2026)
Home details
- Property status:
- Sold
- Lot size (acres):
- 0.15
- Size:
- 1,778 sqft
- Stories:
- 1
- Beds:
- 2
- Baths:
- 2
- Garage spaces:
- 2
- Facing direction:
- South
Construction details
- Builder Name:
- Taylor Morrison
- Completion Date:
- March, 2026
- Year Built:
- 2026
- Roof:
- Flat Roofing, Tile Roofing
Home features & finishes
- Appliances:
- Water SoftenerWater PurifierSprinkler System
- Cooling:
- Central Air
- Flooring:
- Ceramic FlooringCarpet FlooringTile Flooring
- Garage/Parking:
- Door OpenerGarageAttached Garage
- Interior Features:
- Ceiling-HighWalk-In ClosetPantrySeparate Shower
- Kitchen:
- DishwasherMicrowave OvenOvenDisposalGas CooktopDouble SinkKitchen IslandFurnished KitchenGas OvenKitchen Range
- Laundry facilities:
- Laundry Facilities in BathroomUtility/Laundry Room
- Property amenities:
- BasementBalconyOutdoor LivingPatioFireplacePorch
- Rooms:
- Primary Bedroom On MainOffice/StudyDining RoomFamily RoomPrimary Bedroom Downstairs
Room details
Master Bedroom
Kitchen
Dining Room
Utility information
- Heating:
- Electric Heating, Water Heater, Central Heating
- Utilities:
- Sewer Available

Community details
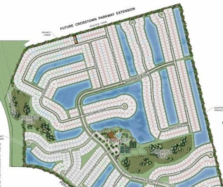
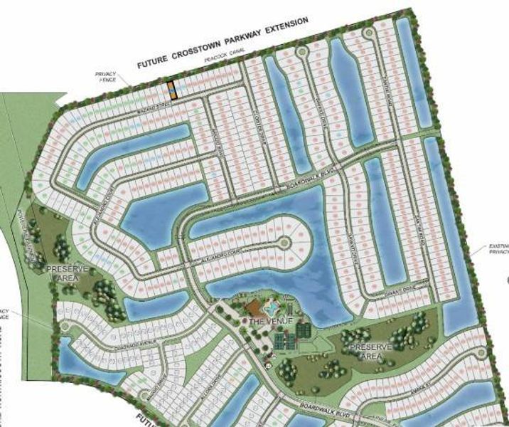
Esplanade at Tradition at Tradition
by Taylor Morrison, Port St. Lucie, FL
- 10 homes
- 12 plans
- 1,603 - 3,051 sqft
View Esplanade at Tradition details
Community amenities
- Dog Park
- Playground
- Fitness Center/Exercise Area
- Club House
- Tennis Courts
- Gated Community
- Community Pool
- Spa Zone
- Lifestyle Director
- Bocce Field
- High Speed Internet Access
- Pickleball Court
More homes in Esplanade at Tradition
- Home at address 9953 Sw Arezzo Rd, Port St. Lucie, FL 34987

$439,000
Move-in ready- 2 bd
- 2 ba
- 1,603 sqft
9953 Sw Arezzo Rd, Port St. Lucie, FL 34987
- Home at address 13605 Sw Alejandro Ct, Port St. Lucie, FL 34987

$484,999
Move-in ready- 3 bd
- 3 ba
- 2,250 sqft
13605 Sw Alejandro Ct, Port St. Lucie, FL 34987
- Home at address 13529 Sw Mazzano St, Port St. Lucie, FL 34987

$525,404
Move-in ready- 3 bd
- 4 ba
- 2,100 sqft
13529 Sw Mazzano St, Port St. Lucie, FL 34987
- Home at address 13437 Sw Alejandro Ct, Port St. Lucie, FL 34987

$531,953
Move-in ready- 3 bd
- 3 ba
- 2,275 sqft
13437 Sw Alejandro Ct, Port St. Lucie, FL 34987
- Home at address 9959 Sw Cloister Dr, Port St. Lucie, FL 34987

$599,000
Move-in ready- 3 bd
- 4 ba
- 2,250 sqft
9959 Sw Cloister Dr, Port St. Lucie, FL 34987
- Home at address 13461 Sw Alejandro Ct, Port St. Lucie, FL 34987

$599,000
Move-in ready- 3 bd
- 3 ba
- 2,405 sqft
13461 Sw Alejandro Ct, Port St. Lucie, FL 34987
Floor plans in Esplanade at Tradition
About the builder - Taylor Morrison

- 320communities on Jome
- 1,372homes on Jome
Neighborhood
Home address
- City:
- Port St. Lucie
- County:
- St. Lucie
- Zip Code:
- 34987
Schools in St. Lucie County School District
- Grades M-MPublicfau/slcsd palm pointe research school palm pointe k8 school1.9 mi10680 sw academic wayna
- Grades KG-06Privateexceptional academy for differently-abled learners3.1 mi8557 commerce centre drivena
- Grades 06-12Publicmosaic digital academy (st. lucie virtual franchise)3.1 mi12051 northwest copper creek drivena
GreatSchools’ Summary Rating calculation is based on 4 of the school’s themed ratings, including test scores, student/academic progress, college readiness, and equity. This information should only be used as a reference. Jome is not affiliated with GreatSchools and does not endorse or guarantee this information. Please reach out to schools directly to verify all information and enrollment eligibility. Data provided by GreatSchools.org © 2025
Places of interest
Getting around
Air quality
Financials
Nearby communities in Port St. Lucie
Homes in Port St. Lucie by Taylor Morrison
Recently added communities in this area
Other Builders in Port St. Lucie, FL
Nearby sold homes
New homes in nearby cities
More New Homes in Port St. Lucie, FL
Taylor Morrison Realty of Florida, MLS F10542202
All listings featuring the BMLS logo are provided by BeachesMLS, Inc. This information is not verified for authenticity or accuracy and is not guaranteed. Information is provided exclusively for consumers’ personal, non-commercial use and may not be used for any purpose other than to identify prospective properties consumers may be interested in purchasing. Copyright © 2025 BeachesMLS, Inc.
Read moreLast checked May 17, 12:00 pm







































































