














Book your tour. Save an average of $18,473. We'll handle the rest.
We collect exclusive builder offers, book your tours, and support you from start to housewarming.
- Confirmed tours
- Get matched & compare top deals
- Expert help, no pressure
- No added fees
Estimated value based on Jome data, T&C apply






















































- 3 bd
- 4 ba
- 2,496 sqft
13704 Sw Shinnecock Dr, Port St. Lucie, FL 34987
Why tour with Jome?
- No pressure toursTour at your own pace with no sales pressure
- Expert guidanceGet insights from our home buying experts
- Exclusive accessSee homes and deals not available elsewhere
Jome is featured in
- Single-Family
- Quick move-in
- $318.51/sqft
- $225/monthly HOA
Home description
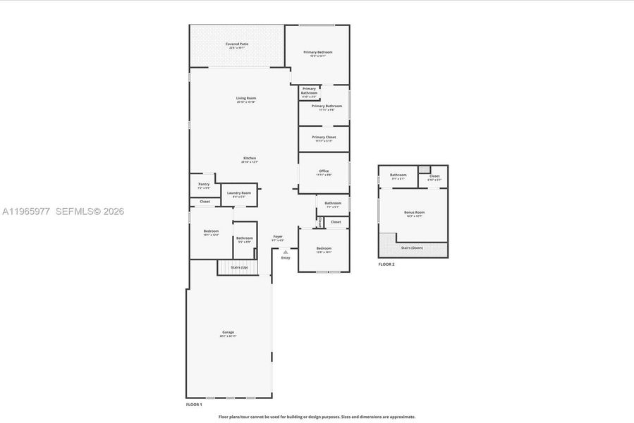
Move-in ready new construction, this Kolter Homes Leslie model is located in Tradition's Astor Creek, one of the most desirable communities in Port St. Lucie. This is one of few homes set on a private lot, offering tremendous savings with full access to resort-style amenities and the 18-hole championship course. Highlights include: soaring 11'4" ceilings, dramatic 16'W x 10'H sliding glass doors, gourmet kitchen, and bright second floor room with full bath, ideal for a media room, office, or guest space. The luxurious owner's suite features a spa-like bath and generous closet space. Upgrades throughout, including a 3 car garage. Astor Creek features a brand-new clubhouse, on-site bar and restaurant, and is the only new construction golf course community in the area.
HomeCoin.com, MLS A11965977
Information last verified by Jome: Today at 6:20 AM (February 23, 2026)
Home highlights
Environmental learning center with nature trails, wildlife exhibits, and eco-programs in a peaceful Port St. Lucie preserve.
Book your tour. Save an average of $18,473. We'll handle the rest.
We collect exclusive builder offers, book your tours, and support you from start to housewarming.
- Confirmed tours
- Get matched & compare top deals
- Expert help, no pressure
- No added fees
Estimated value based on Jome data, T&C apply
Home details
- Property status:
- Move-in ready
- Lot size (acres):
- 0.20
- Size:
- 2,496 sqft
- Stories:
- 2
- Beds:
- 3
- Baths:
- 4
- Garage spaces:
- 3
- Facing direction:
- East
Construction details
- Year Built:
- 2026
- Roof:
- Concrete Roofing
Home features & finishes
- Cooling:
- Central Air
- Flooring:
- Carpet FlooringTile Flooring
- Garage/Parking:
- GarageAttached Garage
- Interior Features:
- Walk-In ClosetFoyerPantryLibraryLoft
- Kitchen:
- DishwasherMicrowave OvenOvenRefrigeratorDisposalKitchen Range
- Laundry facilities:
- DryerWasher
- Pets:
- Pets Allowed
- Property amenities:
- Patio
- Rooms:
- Primary Bedroom On MainDen RoomOffice/StudyDining RoomFamily RoomLiving RoomPrimary Bedroom Downstairs

Get a consultation with our New Homes Expert
- See how your home builds wealth
- Plan your home-buying roadmap
- Discover hidden gems
Utility information
- Heating:
- Water Heater, Central Heating
Community amenities
- Fitness Center/Exercise Area
- Club House
- Golf Course
- Tennis Courts
- Gated Community
- Community Pool
- Game Room/Area
- Spa Zone
- Community Hot Tub
- Lifestyle Director
- Sidewalks Available
- Fully Maintained Lawns
Neighborhood
Home address
- City:
- Port St. Lucie
- County:
- St. Lucie
- Zip Code:
- 34987
Schools in St. Lucie County School District
- Grades M-MPublicfau/slcsd palm pointe research school palm pointe k8 school2.3 mi10680 sw academic wayna
- Grades 06-12Publicmosaic digital academy (st. lucie virtual franchise)3.0 mi12051 nw copper creek dr9/10
GreatSchools’ Summary Rating calculation is based on 4 of the school’s themed ratings, including test scores, student/academic progress, college readiness, and equity. This information should only be used as a reference. Jome is not affiliated with GreatSchools and does not endorse or guarantee this information. Please reach out to schools directly to verify all information and enrollment eligibility. Data provided by GreatSchools.org © 2025
Places of interest
Getting around
Air quality
Natural hazards risk
Provided by FEMA

Considering this home?
Our expert will guide your tour, in-person or virtual
Need more information?
Text or call (888) 488-9243
Financials
Estimated monthly payment
Let us help you find your dream home
How many bedrooms are you looking for?
Similar homes nearby
Recently added communities in this area
Nearby communities in Port St. Lucie
New homes in nearby cities
More New Homes in Port St. Lucie, FL
HomeCoin.com, MLS A11965977
IDX information is provided exclusively for personal, non-commercial use, and may not be used for any purpose other than to identify prospective properties consumers may be interested in purchasing. Information is deemed reliable but not guaranteed.
Read moreLast checked Feb 23, 6:20 am
- Jome
- New homes search
- Florida
- Treasure Coast
- St. Lucie County
- Port St. Lucie
- 13704 Sw Shinnecock Dr, Port St. Lucie, FL 34987




























