







Book your tour. Save an average of $18,473. We'll handle the rest.
We collect exclusive builder offers, book your tours, and support you from start to housewarming.
- Confirmed tours
- Get matched & compare top deals
- Expert help, no pressure
- No added fees
Estimated value based on Jome data, T&C apply
























































- 3 bd
- 2 ba
- 1,985 sqft
15360 Hennipen Cir, Port Charlotte, FL 33981
Why tour with Jome?
- No pressure toursTour at your own pace with no sales pressure
- Expert guidanceGet insights from our home buying experts
- Exclusive accessSee homes and deals not available elsewhere
Jome is featured in
- Single-Family
- Quick move-in
- $377.33/sqft
- North facing
Home description
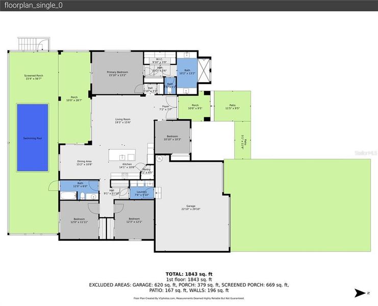
Another fine home by BF Homes. First Time Offered the "Boca Grande Model". This meticulously crafted single-family residence in the Community of South Gulf Cove Community of Port Charlotte, Florida, presents an exceptional opportunity for discerning buyers. Spanning 1,985 square feet, this home features 3 bedrooms and 2 full bathrooms, providing ample space for both comfort and functionality.
The thoughtfully designed interior showcases high ceilings and an open floor plan, seamlessly integrating the living areas. The gourmet kitchen is equipped with premium stainless steel appliances, elegant light stone countertops, and a central island, catering to both culinary enthusiasts and those who enjoy entertaining. The primary suite offers a retreat, complete with a tray ceiling and a well-appointed ensuite bathroom featuring dual vanities and a tile shower. Outdoors, the property boasts a large lanai, pool cage, pool area with a spa, complemented by a glass enclosure for year-round enjoyment. The canal in the back yard provides an ample area for your future dock and boat lift and has access to Charlotte harbor and the Gulf of Mexico. The surrounding landscape enhances the outdoor living experience, making it ideal for entertaining or relaxing in privacy. Located in South Gulf Cove, residents benefit from proximity to waterfront access, parks, and community amenities, making this property an attractive investment for those seeking a vibrant lifestyle.
EXIT GULF COAST REALTY, MLS C7517728
Information last verified by Jome: Today at 11:32 AM (March 20, 2026)
Book your tour. Save an average of $18,473. We'll handle the rest.
We collect exclusive builder offers, book your tours, and support you from start to housewarming.
- Confirmed tours
- Get matched & compare top deals
- Expert help, no pressure
- No added fees
Estimated value based on Jome data, T&C apply
Home details
- Property status:
- Move-in ready
- Lot size (acres):
- 0.23
- Size:
- 1,985 sqft
- Stories:
- 1
- Beds:
- 3
- Baths:
- 2
- Garage spaces:
- 3
- Facing direction:
- North
Construction details
- Year Built:
- 2025
- Roof:
- Shingle Roofing
Home features & finishes
- Appliances:
- Exhaust Fan
- Construction Materials:
- Block
- Cooling:
- Ceiling Fan(s)Central Air
- Flooring:
- Ceramic FlooringVinyl FlooringTile Flooring
- Foundation Details:
- Block
- Garage/Parking:
- GarageAttached Garage
- Interior Features:
- Ceiling-HighCeiling-VaultedWalk-In ClosetTray Ceiling
- Kitchen:
- DishwasherOvenRefrigeratorBuilt-In OvenConvection Oven
- Laundry facilities:
- DryerWasherLaundry Facilities In ClosetUtility/Laundry Room
- Lighting:
- Exterior LightingLighting
- Pets:
- Cat(s) Only AllowedDog(s) Only Allowed
- Property amenities:
- PoolDeckCabinets
- Rooms:
- Primary Bedroom On MainKitchenDining RoomFamily RoomPrimary Bedroom Downstairs

Get a consultation with our New Homes Expert
- See how your home builds wealth
- Plan your home-buying roadmap
- Discover hidden gems
Utility information
- Heating:
- Electric Heating, Water Heater
- Utilities:
- Electricity Available, Cable Available, Water Available
Neighborhood
Home address
- City:
- Port Charlotte
- County:
- Charlotte
- Zip Code:
- 33981
Schools in Charlotte County School District
- Grades KG-05Privateredeemer lutheran school6.7 mi6970 mineola rdna
GreatSchools’ Summary Rating calculation is based on 4 of the school’s themed ratings, including test scores, student/academic progress, college readiness, and equity. This information should only be used as a reference. Jome is not affiliated with GreatSchools and does not endorse or guarantee this information. Please reach out to schools directly to verify all information and enrollment eligibility. Data provided by GreatSchools.org © 2025
Places of interest
Getting around
Air quality
Noise level
A Soundscore™ rating is a number between 50 (very loud) and 100 (very quiet) that tells you how loud a location is due to environmental noise.
Natural hazards risk
Provided by FEMA

Considering this home?
Our expert will guide your tour, in-person or virtual
Need more information?
Text or call (888) 545-5198
Financials
Estimated monthly payment
Let us help you find your dream home
How many bedrooms are you looking for?
Similar homes nearby
Recently added communities in this area
Nearby communities in Port Charlotte
New homes in nearby cities
More New Homes in Port Charlotte, FL
EXIT GULF COAST REALTY, MLS C7517728
Based on information submitted to the MLS GRID as of 10/21/2024 2:31 PM CDT. All data is obtained from various sources and may not have been verified by broker or MLS GRID. Supplied Open House Information is subject to change without notice. All information should be independently reviewed and verified for accuracy. Properties may or may not be listed by the office/agent presenting the information. Some IDX listings have been excluded from this website. Properties displayed may be listed or sold by various participants in the MLS. IDX information is provided exclusively for personal, non-commercial use, and may not be used for any purpose other than to identify prospective properties consumers may be interested in purchasing. Information is deemed reliable but not guaranteed. Use of the MLS GRID Data may be subject to an end user license agreement prescribed by the Member Participant’s applicable MLS if any and as amended from time to time. The Digital Millennium Copyright Act of 1998, 17 U.S.C. § 512 (the “DMCA”) provides recourse for copyright owners who believe that material appearing on the Internet infringes their rights under U.S. copyright law. If you believe in good faith that any content or material made available in connection with our website or services infringes your copyright, you (or your agent) may send us a notice requesting that the content or material be removed, or access to it blocked. Notices must be sent in writing by email to DMCAnotice@MLSGrid.com. The DMCA requires that your notice of alleged copyright infringement include the following information: (1) description of the copyrighted work that is the subject of claimed infringement; (2) description of the alleged infringing content and information sufficient to permit us to locate the content; (3) contact information for you, including your address, telephone number and email address; (4) a statement by you that you have a good faith belief that the content in the manner complained of is not authorized by the copyright owner, or its agent, or by the operation of any law; (5) a statement by you, signed under penalty of perjury, that the information in the notification is accurate and that you have the authority to enforce the copyrights that are claimed to be infringed; and (6) a physical or electronic signature of the copyright owner or a person authorized to act on the copyright owner’s behalf. Failure to include all of the above information may result in the delay of the processing of your complaint. Listing Information presented by local MLS brokerage: NewHomesMate LLC, DBA Jome (888) 545-5198
Read moreLast checked Mar 20, 3:10 pm
- Jome
- New homes search
- Florida
- Charlotte County
- Port Charlotte
- 15360 Hennipen Cir, Port Charlotte, FL 33981


























