




Book your tour. Save an average of $18,473. We'll handle the rest.
- Confirmed tours
- Get matched & compare top deals
- Expert help, no pressure
- No added fees
Estimated value based on Jome data, T&C apply
- 3 bd
- 2.5 ba
- 2,071 sqft
3588 Rocky Island Rd, New Port Richey, FL 34655
Why tour with Jome?
- No pressure toursTour at your own pace with no sales pressure
- Expert guidanceGet insights from our home buying experts
- Exclusive accessSee homes and deals not available elsewhere
Jome is featured in
- Single-Family
- $260.83/sqft
- $175/annual HOA
- West facing
Home description
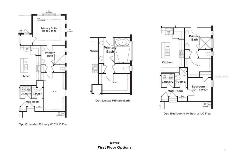
Discover the Only New Construction Pool-Sized Homesites in Longleaf! Welcome to the Aster plan — a beautifully designed home offering 3 spacious bedrooms, 2.5 luxurious baths, and a versatile flex room perfect for an office, playroom, or guest space. This open-concept layout blends modern design with timeless charm, featuring professionally curated finishes and premier appointments throughout. Set within a classic neighborhood known for its front porches and warm sense of community, this home captures the essence of Longleaf living. Enjoy easy access to shopping, dining, and the vibrant boutique downtown just minutes away, along with the local favorite — Starkey Market Residents enjoy top-tier amenities including a resort-style community pool, playground, and a dog park, making this the perfect place to call home. Don't miss your chance to own in Longleaf's most desirable new neighborhood!
DRB GROUP REALTY, LLC, MLS TB8450866
May also be listed on the DRB Homes website
Information last verified by Jome: Today at 10:27 AM (December 6, 2025)
Home highlights
Historic theme park with thrill rides and wildlife, unique for its neighborhood-adjacent layout.
Book your tour. Save an average of $18,473. We'll handle the rest.
We collect exclusive builder offers, book your tours, and support you from start to housewarming.
- Confirmed tours
- Get matched & compare top deals
- Expert help, no pressure
- No added fees
Estimated value based on Jome data, T&C apply
Home details
- Property status:
- Pending/Under contract
- Lot size (acres):
- 0.14
- Size:
- 2,071 sqft
- Stories:
- 1
- Beds:
- 3
- Baths:
- 2
- Half baths:
- 1
- Garage spaces:
- 2
- Facing direction:
- West
Construction details
- Builder Name:
- DRB Homes
- Completion Date:
- May, 2026
- Year Built:
- 2026
- Roof:
- Shingle Roofing
Home features & finishes
- Construction Materials:
- Stucco
- Cooling:
- Central Air
- Flooring:
- Ceramic FlooringVinyl FlooringCarpet FlooringTile Flooring
- Foundation Details:
- Slab
- Garage/Parking:
- Door OpenerGarageAttached Garage
- Home amenities:
- InternetGreen Construction
- Interior Features:
- Ceiling-HighWalk-In ClosetShuttersFoyerPantrySliding DoorsTray Ceiling
- Kitchen:
- DishwasherMicrowave OvenOvenDisposalBuilt-In OvenCook Top
- Laundry facilities:
- DryerWasherUtility/Laundry Room
- Lighting:
- Exterior Lighting
- Pets:
- Pets Allowed
- Property amenities:
- SidewalkGardenLandscapingLanaiSmart Home SystemPorch
- Rooms:
- Flex RoomPrimary Bedroom On MainKitchenPowder RoomMudroomDining RoomFamily RoomOpen Concept FloorplanPrimary Bedroom Downstairs
Utility information
- Heating:
- Electric Heating, Heat Pump, Water Heater, Central Heating
- Utilities:
- Electricity Available, Underground Utilities, Water Available

Community details
Primrose at Longleaf at Longleaf
by DRB Homes, New Port Richey, FL
- 2 homes
- 3 plans
- 2,071 - 2,802 sqft
View Primrose at Longleaf details
Community amenities
- Dog Park
- Playground
- Community Pool
- Sidewalks Available
More homes in Primrose at Longleaf
Floor plans in Primrose at Longleaf
About the builder - DRB Homes
Neighborhood
Home address
- City:
- New Port Richey
- County:
- Pasco
- Zip Code:
- 34655
Schools in Pasco County School District
- Grades PK-07Publicstarkey ranch k-81.5 mi12200 lake blanche drivena
GreatSchools’ Summary Rating calculation is based on 4 of the school’s themed ratings, including test scores, student/academic progress, college readiness, and equity. This information should only be used as a reference. Jome is not affiliated with GreatSchools and does not endorse or guarantee this information. Please reach out to schools directly to verify all information and enrollment eligibility. Data provided by GreatSchools.org © 2025
Places of interest
Getting around
Air quality
Noise level
A Soundscore™ rating is a number between 50 (very loud) and 100 (very quiet) that tells you how loud a location is due to environmental noise.
Natural hazards risk
Climate hazards can impact homes and communities, with risks varying by location. These scores reflect the potential impact of natural disasters and climate-related risks on Pasco County
Provided by FEMA

Considering this home?
Our expert will guide your tour, in-person or virtual
Need more information?
Text or call (888) 486-2818
Financials
Estimated monthly payment
Similar homes nearby
Recently added communities in this area
Nearby communities in New Port Richey
New homes in nearby cities
More New Homes in New Port Richey, FL
DRB GROUP REALTY, LLC, MLS TB8450866
Based on information submitted to the MLS GRID as of 10/21/2024 2:31 PM CDT. All data is obtained from various sources and may not have been verified by broker or MLS GRID. Supplied Open House Information is subject to change without notice. All information should be independently reviewed and verified for accuracy. Properties may or may not be listed by the office/agent presenting the information. Some IDX listings have been excluded from this website. Properties displayed may be listed or sold by various participants in the MLS. IDX information is provided exclusively for personal, non-commercial use, and may not be used for any purpose other than to identify prospective properties consumers may be interested in purchasing. Information is deemed reliable but not guaranteed. Use of the MLS GRID Data may be subject to an end user license agreement prescribed by the Member Participant’s applicable MLS if any and as amended from time to time. The Digital Millennium Copyright Act of 1998, 17 U.S.C. § 512 (the “DMCA”) provides recourse for copyright owners who believe that material appearing on the Internet infringes their rights under U.S. copyright law. If you believe in good faith that any content or material made available in connection with our website or services infringes your copyright, you (or your agent) may send us a notice requesting that the content or material be removed, or access to it blocked. Notices must be sent in writing by email to DMCAnotice@MLSGrid.com. The DMCA requires that your notice of alleged copyright infringement include the following information: (1) description of the copyrighted work that is the subject of claimed infringement; (2) description of the alleged infringing content and information sufficient to permit us to locate the content; (3) contact information for you, including your address, telephone number and email address; (4) a statement by you that you have a good faith belief that the content in the manner complained of is not authorized by the copyright owner, or its agent, or by the operation of any law; (5) a statement by you, signed under penalty of perjury, that the information in the notification is accurate and that you have the authority to enforce the copyrights that are claimed to be infringed; and (6) a physical or electronic signature of the copyright owner or a person authorized to act on the copyright owner’s behalf. Failure to include all of the above information may result in the delay of the processing of your complaint. Listing Information presented by local MLS brokerage: NewHomesMate LLC, DBA Jome (888) 486-2818
Read moreLast checked Dec 6, 9:10 am
- Home
- New homes
- Florida
- Tampa Bay Area
- Pasco County
- New Port Richey
- Primrose at Longleaf
- 3588 Rocky Island Rd, New Port Richey, FL 34655
































