



Book your tour. Save an average of $18,473. We'll handle the rest.
- Confirmed tours
- Get matched & compare top deals
- Expert help, no pressure
- No added fees
Estimated value based on Jome data, T&C apply
- 4 bd
- 2.5 ba
- 2,850 sqft
4895 Madras Dr Nw, Palm Bay, FL 32907
Why tour with Jome?
- No pressure toursTour at your own pace with no sales pressure
- Expert guidanceGet insights from our home buying experts
- Exclusive accessSee homes and deals not available elsewhere
Jome is featured in
- Single-Family
- Ready by July 2026
- $142.98/sqft
- $20/monthly HOA
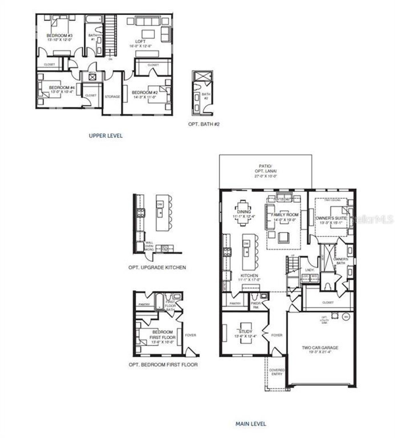
Home description
The brand new Malabar Springs community is nestled adjacent to the serene Three Forks conservation area with 35,000 acres of conservation protection, boat launch, picnic area, and 70 miles of trails. With resort-style 3900 square foot pool featuring a sun shelf, cabana, 2 dog parks, outdoor fitness equipment, nature trail, and multi-use park/field Malabar Springs is the ideal location for the stylish and spacious Serena floorplan featuring 4 bedrooms with a large first-floor owner's suite, 2.5 bathrooms, tray ceiling in the great room & owner's bedroom, spa-like bathroom, oversized kitchen island, walk-in pantry offering granite in the kitchen counters, quartz in the bathroom vanities, 20'' ceramic tile in the wet areas and great room, and much much more. Options can make this a 5 bed, 4 full bath home. Make an appointment to design and customize your home today! Come live the dream at Malabar Springs! All Ryan Homes now include WIFI-enabled garage opener and Ecobee thermostat. Closing cost assistance is available with use of Builder’s affiliated lender. DISCLAIMER: Prices, financing, promotion, and offers subject to change without notice. Offer valid on new sales only. See Community Sales and Marketing Representative for details. Promotions cannot be combined with any other offer. All uploaded photos are stock photos of this floor plan. Actual home may differ from photos. Schools: Elem: Jupiter Elementary School; Middle: Southwestern Middle School; HS: Heritage High School.
MALTBIE REALTY GROUP, MLS W7880963
May also be listed on the Ryan Homes website
Information last verified by Jome: Today at 10:00 AM (January 21, 2026)
Home highlights
Patrick Space Force Base offers secure, family-friendly living with top-rated Brevard schools and coastal amenities.
Book your tour. Save an average of $18,473. We'll handle the rest.
We collect exclusive builder offers, book your tours, and support you from start to housewarming.
- Confirmed tours
- Get matched & compare top deals
- Expert help, no pressure
- No added fees
Estimated value based on Jome data, T&C apply
Home details
- Property status:
- Under construction
- Lot size (acres):
- 0.14
- Size:
- 2,850 sqft
- Stories:
- 2
- Beds:
- 4
- Baths:
- 2
- Half baths:
- 1
- Garage spaces:
- 2
- Facing direction:
- East
Construction details
- Builder Name:
- Ryan Homes
- Completion Date:
- July, 2026
- Year Built:
- 2026
- Roof:
- Shingle Roofing
Home features & finishes
- Construction Materials:
- StuccoWood FrameBlock
- Cooling:
- Central Air
- Flooring:
- Ceramic FlooringCarpet FlooringTile Flooring
- Foundation Details:
- Slab
- Garage/Parking:
- Door OpenerGarageAttached Garage
- Home amenities:
- InternetGreen Construction
- Interior Features:
- Walk-In ClosetShuttersFoyerPantryLoftFrench Doors
- Kitchen:
- DishwasherMicrowave OvenDisposalKitchen IslandKitchen Range
- Laundry facilities:
- Utility/Laundry Room
- Lighting:
- Lighting
- Property amenities:
- SidewalkPatio
- Rooms:
- Primary Bedroom On MainKitchenDining RoomFamily RoomLiving RoomOpen Concept FloorplanPrimary Bedroom Downstairs
- Security system:
- Smoke Detector

Get a consultation with our New Homes Expert
- See how your home builds wealth
- Plan your home-buying roadmap
- Discover hidden gems
Utility information
- Heating:
- Thermostat, Water Heater, Central Heating
- Utilities:
- HVAC, Cable Available

Community details
Malabar Springs
by Ryan Homes, Palm Bay, FL
- 10 homes
- 7 plans
- 1,833 - 3,029 sqft
View Malabar Springs details
Community amenities
- Playground
- Community Pool
- Park Nearby
More homes in Malabar Springs
- Home at address 4864 Madras Dr Nw, Palm Bay, FL 32907

Cascade
$348,490
- 4 bd
- 3 ba
- 2,177 sqft
4864 Madras Dr Nw, Palm Bay, FL 32907
- Home at address 5145 Madras Dr Nw, Palm Bay, FL 32907

Brooks
$349,990
- 4 bd
- 2 ba
- 1,833 sqft
5145 Madras Dr Nw, Palm Bay, FL 32907
- Home at address 5164 Madras Dr Nw, Palm Bay, FL 32907

Grove
$353,990
- 4 bd
- 2.5 ba
- 2,187 sqft
5164 Madras Dr Nw, Palm Bay, FL 32907
- Home at address 5154 Madras Dr Nw, Palm Bay, FL 32907

Marina
$359,990
- 5 bd
- 3 ba
- 2,520 sqft
5154 Madras Dr Nw, Palm Bay, FL 32907
- Home at address 5155 Madras Dr Nw, Palm Bay, FL 32907

Patterson
$365,990
- 4 bd
- 2.5 ba
- 2,080 sqft
5155 Madras Dr Nw, Palm Bay, FL 32907
- Home at address 2548 Nilgiri St Nw, Palm Bay, FL 32907

Heritage Bay
$396,990
- 4 bd
- 3 ba
- 2,753 sqft
2548 Nilgiri St Nw, Palm Bay, FL 32907
Floor plans in Malabar Springs
About the builder - Ryan Homes
Neighborhood
Home address
Schools in Brevard County School District
- Grades KG-12Privateelementary sinai christian academy4.1 mi351 americana blvd nwna
GreatSchools’ Summary Rating calculation is based on 4 of the school’s themed ratings, including test scores, student/academic progress, college readiness, and equity. This information should only be used as a reference. Jome is not affiliated with GreatSchools and does not endorse or guarantee this information. Please reach out to schools directly to verify all information and enrollment eligibility. Data provided by GreatSchools.org © 2025
Places of interest
Getting around
Air quality

Considering this home?
Our expert will guide your tour, in-person or virtual
Need more information?
Text or call (888) 486-2818
Financials
Estimated monthly payment
Let us help you find your dream home
How many bedrooms are you looking for?
Similar homes nearby
Recently added communities in this area
Nearby communities in Palm Bay
New homes in nearby cities
More New Homes in Palm Bay, FL
MALTBIE REALTY GROUP, MLS W7880963
Based on information submitted to the MLS GRID as of 10/21/2024 2:31 PM CDT. All data is obtained from various sources and may not have been verified by broker or MLS GRID. Supplied Open House Information is subject to change without notice. All information should be independently reviewed and verified for accuracy. Properties may or may not be listed by the office/agent presenting the information. Some IDX listings have been excluded from this website. Properties displayed may be listed or sold by various participants in the MLS. IDX information is provided exclusively for personal, non-commercial use, and may not be used for any purpose other than to identify prospective properties consumers may be interested in purchasing. Information is deemed reliable but not guaranteed. Use of the MLS GRID Data may be subject to an end user license agreement prescribed by the Member Participant’s applicable MLS if any and as amended from time to time. The Digital Millennium Copyright Act of 1998, 17 U.S.C. § 512 (the “DMCA”) provides recourse for copyright owners who believe that material appearing on the Internet infringes their rights under U.S. copyright law. If you believe in good faith that any content or material made available in connection with our website or services infringes your copyright, you (or your agent) may send us a notice requesting that the content or material be removed, or access to it blocked. Notices must be sent in writing by email to DMCAnotice@MLSGrid.com. The DMCA requires that your notice of alleged copyright infringement include the following information: (1) description of the copyrighted work that is the subject of claimed infringement; (2) description of the alleged infringing content and information sufficient to permit us to locate the content; (3) contact information for you, including your address, telephone number and email address; (4) a statement by you that you have a good faith belief that the content in the manner complained of is not authorized by the copyright owner, or its agent, or by the operation of any law; (5) a statement by you, signed under penalty of perjury, that the information in the notification is accurate and that you have the authority to enforce the copyrights that are claimed to be infringed; and (6) a physical or electronic signature of the copyright owner or a person authorized to act on the copyright owner’s behalf. Failure to include all of the above information may result in the delay of the processing of your complaint. Listing Information presented by local MLS brokerage: NewHomesMate LLC, DBA Jome (888) 486-2818
Read moreLast checked Jan 21, 3:10 pm
- Jome
- New homes search
- Florida
- Space Coast
- Brevard County
- Palm Bay
- Malabar Springs
- 4895 Madras Dr Nw, Palm Bay, FL 32907






























