



Book your tour. Save an average of $18,473. We'll handle the rest.
- Confirmed tours
- Get matched & compare top deals
- Expert help, no pressure
- No added fees
Estimated value based on Jome data, T&C apply
- 4 bd
- 3 ba
- 3,008 sqft
12718 Driftwood Tide Dr, Palmetto, FL 34221
Why tour with Jome?
- No pressure toursTour at your own pace with no sales pressure
- Expert guidanceGet insights from our home buying experts
- Exclusive accessSee homes and deals not available elsewhere
Jome is featured in
- Single-Family
- Under construction
- $202.01/sqft
- $580/annual HOA
Home description
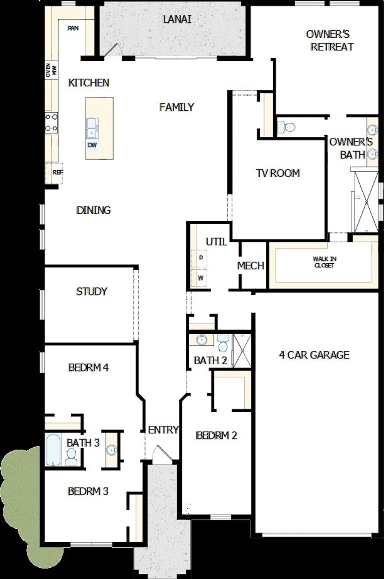
Welcome to The Gilbert, a beautifully designed single-story home by David Weekley Homes, offering 3,008 square feet of comfortable and stylish living space. This well-appointed floorplan features 4 spacious bedrooms, 3 full bathrooms, and a 4-car garage, perfect for car enthusiasts, storage needs, or creating a home workshop.
Inside, the home includes a private office for quiet productivity and a dedicated TV room—ideal for cozy movie nights or entertaining on game day. The Owner’s Retreat is tucked at the rear of the home, providing peaceful views of the backyard pond and a spa-like bath complete with an upgraded super shower.
Design features throughout the home include laminate flooring, quartz countertops, champagne bronze hardware, and designer tile in all wet areas, blending timeless elegance with modern function.
Located in the new Coasterra community in Palmetto, FL, residents will enjoy access to exceptional community amenities and the natural beauty of nearby walking trails, perfect for enjoying the Florida lifestyle.
Whether you're looking for space to grow or a comfortable forever home, The Gilbert offers the perfect balance of luxury, practicality, and serene surroundings.
May also be listed on the David Weekley Homes website
Information last verified by Jome: Sunday at 1:16 AM (November 30, 2025)
Home highlights
MacDill AFB offers secure housing, top-rated schools, and abundant amenities in vibrant South Tampa.
Book your tour. Save an average of $18,473. We'll handle the rest.
We collect exclusive builder offers, book your tours, and support you from start to housewarming.
- Confirmed tours
- Get matched & compare top deals
- Expert help, no pressure
- No added fees
Estimated value based on Jome data, T&C apply
Home details
- Property status:
- Under construction
- Size:
- 3,008 sqft
- Stories:
- 1
- Beds:
- 4
- Baths:
- 3
- Garage spaces:
- 4
Construction details
- Builder Name:
- David Weekley Homes
Home features & finishes
- Flooring:
- Laminate Flooring
- Garage/Parking:
- GarageAttached Garage
- Interior Features:
- Walk-In ClosetPantry
- Kitchen:
- Quartz countertopKitchen Island
- Laundry facilities:
- Utility/Laundry Room
- Property amenities:
- Lanai
- Rooms:
- Primary Bedroom On MainKitchenMedia RoomOffice/StudyDining RoomFamily RoomOpen Concept FloorplanPrimary Bedroom Downstairs

Community details
Coasterra
by David Weekley Homes, Palmetto, FL
- 8 homes
- 7 plans
- 2,394 - 3,453 sqft
View Coasterra details
More homes in Coasterra
Floor plans in Coasterra
About the builder - David Weekley Homes
Neighborhood
Home address
Schools in Manatee County School District
- Grades 07-12Publicpalmetto youth academy3.4 mi14494 harlee rdna
GreatSchools’ Summary Rating calculation is based on 4 of the school’s themed ratings, including test scores, student/academic progress, college readiness, and equity. This information should only be used as a reference. Jome is not affiliated with GreatSchools and does not endorse or guarantee this information. Please reach out to schools directly to verify all information and enrollment eligibility. Data provided by GreatSchools.org © 2025
Places of interest
Getting around
Air quality
Natural hazards risk
Climate hazards can impact homes and communities, with risks varying by location. These scores reflect the potential impact of natural disasters and climate-related risks on Manatee County
Provided by FEMA

Considering this home?
Our expert will guide your tour, in-person or virtual
Need more information?
Text or call (888) 486-2818
Financials
Estimated monthly payment
Similar homes nearby
Recently added communities in this area
Nearby communities in Palmetto
New homes in nearby cities
More New Homes in Palmetto, FL
- Home
- New homes
- Florida
- Tampa Bay Area
- Manatee County
- Palmetto
- Coasterra
- 12718 Driftwood Tide Dr, Palmetto, FL 34221








































