



Book your tour. Save an average of $18,473. We'll handle the rest.
- Confirmed tours
- Get matched & compare top deals
- Expert help, no pressure
- No added fees
Estimated value based on Jome data, T&C apply
- 3 bd
- 2 ba
- 1,697 sqft
3136 Breezy Bay Ct, Panama City, FL 32409
Why tour with Jome?
- No pressure toursTour at your own pace with no sales pressure
- Expert guidanceGet insights from our home buying experts
- Exclusive accessSee homes and deals not available elsewhere
Jome is featured in
- Single-Family
- Quick move-in
- $185.56/sqft
- 32 days on Jome
Home description
About this home
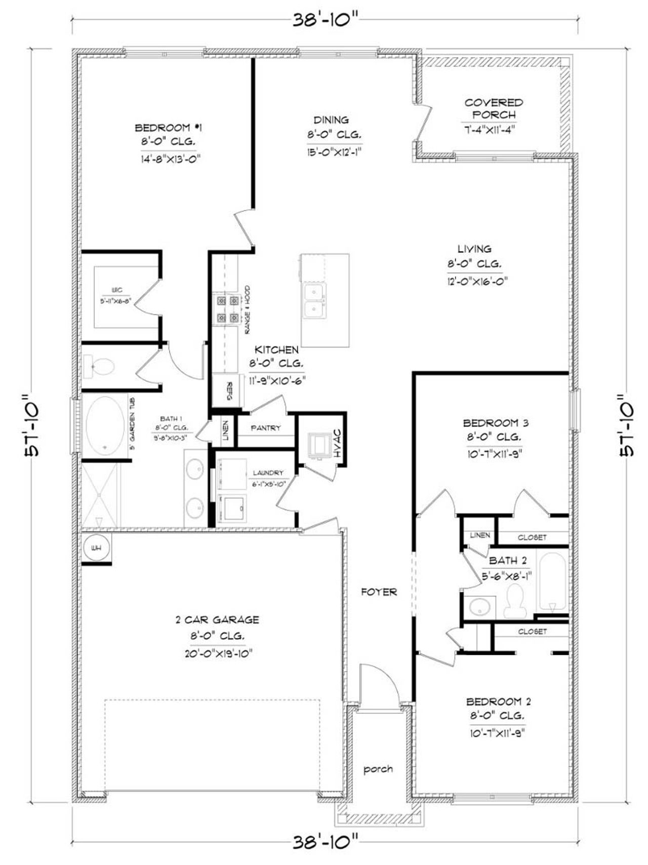
Welcome to 3136 Breezy Bay Court, a new home at Hodges Bayou Plantation in Southport, Florida. This Aria plan has three bedrooms, two full bathrooms and a 2-car garage. Step inside through the covered entry where you will find a bright foyer leading into the optimized living space designed with open concept kitchen overlooking the living area, dining room, and covered back patio. You'll notice the beautiful EVP flooring throughout the main areas and plush carpet in the bedrooms. The heart of this home includes the spacious kitchen that features quartz countertops, center island and a walk-in pantry with ample storage space. The living and dining areas offer a comfortable space for family and guests. Enjoy your covered patio that is accessible from the dining area that has room for a dining table or outdoor seating area.
The primary suite is located in the rear of the home creating a split floor plan that features ample space for a king-sized bedroom suite. The walk-in closet is located within the main suite and has all the space you need to get ready in the morning. The primary bathroom has a dual quartz sink vanity, a separate shower, separate soaking tub, enclosed toilet for extra privacy and linen closet. There are two additional bedrooms that have large closet spaces and share a full bath. This home also features a laundry room with space for a full-size washer and dryer. These homes come equipped with a Home is Connected® smart home technology package including QOLSYS IQ Panel, Skybell Doorbell, Kwikset Smartcode front door lock and DEAKO Smart Switches which allows you to control your home with your smart device while near or away.
The exterior of this home features a brick front exterior with vinyl siding, dimensional shingles with 30-year warranty. Each home in Hodges Bayou Plantation includes a fully sodded lawn to each property line and flower beds at front entry. Sidewalks line every street so you can enjoy the unbeatable Florida sunsets and sunrises on your walk to the playground with the kids or the dogs.
Stop by our model home today and get connected with us to see why Hodges Bayou Plantation is the neighborhood everyone loves!
May also be listed on the D.R. Horton website
Information last verified by Jome: Today at 1:01 AM (December 6, 2025)
Home highlights
Book your tour. Save an average of $18,473. We'll handle the rest.
We collect exclusive builder offers, book your tours, and support you from start to housewarming.
- Confirmed tours
- Get matched & compare top deals
- Expert help, no pressure
- No added fees
Estimated value based on Jome data, T&C apply
Home details
- Property status:
- Move-in ready
- Size:
- 1,697 sqft
- Stories:
- 1
- Beds:
- 3
- Baths:
- 2
- Garage spaces:
- 2
Construction details
- Builder Name:
- D.R. Horton
Home features & finishes
- Garage/Parking:
- Garage
- Rooms:
- Primary Bedroom On MainPrimary Bedroom Downstairs

Community details
Hodges Bayou Plantation
by D.R. Horton, Panama City, FL
- 9 homes
- 8 plans
- 1,458 - 2,275 sqft
View Hodges Bayou Plantation details
More homes in Hodges Bayou Plantation
Floor plans in Hodges Bayou Plantation
About the builder - D.R. Horton
Neighborhood
Home address
- City:
- Panama City
- County:
- Bay
- Zip Code:
- 32409
Schools in Bay County School District
GreatSchools’ Summary Rating calculation is based on 4 of the school’s themed ratings, including test scores, student/academic progress, college readiness, and equity. This information should only be used as a reference. Jome is not affiliated with GreatSchools and does not endorse or guarantee this information. Please reach out to schools directly to verify all information and enrollment eligibility. Data provided by GreatSchools.org © 2025
Places of interest
Getting around
Noise level
A Soundscore™ rating is a number between 50 (very loud) and 100 (very quiet) that tells you how loud a location is due to environmental noise.
Natural hazards risk
Climate hazards can impact homes and communities, with risks varying by location. These scores reflect the potential impact of natural disasters and climate-related risks on Bay County
Provided by FEMA

Considering this home?
Our expert will guide your tour, in-person or virtual
Need more information?
Text or call (888) 486-2818
Financials
Estimated monthly payment
Similar homes nearby
Recently added communities in this area
Nearby communities in Panama City
New homes in nearby cities
More New Homes in Panama City, FL
- Home
- New homes
- Florida
- Bay County
- Panama City
- Hodges Bayou Plantation
- 3136 Breezy Bay Ct, Panama City, FL 32409








































