































- 4 bd
- 3 ba
- 2,853 sqft
233 Se Via, Port St. Lucie, FL 34952
- Single-Family
- $219.06/sqft
- $231/monthly HOA
- 220 days on Jome
New Homes for Sale Near 233 Se Via, Port St. Lucie, FL 34952
About this Home
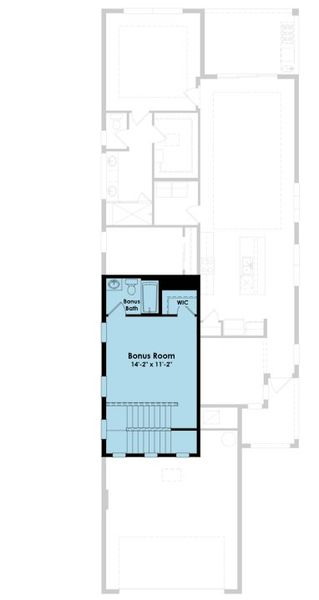
This Caroline floorplan offers 3 bedrooms, 3 baths, a flex room, and a bonus room on a west-facing lakefront homesite, perfect for enjoying sunsets over the water. 12' x 10' sliding glass doors in the main living area fill the home with natural light and showcase the spectacular views. The interior features high-end white modern finishes, second-tier glass cabinets, designer pendants over the island, and a kitchen with an upgraded hood and wall microwave/oven combo. Laminate flooring extends throughout the home, including the bonus room, creating a seamless, contemporary look that is both stylish and functional.
* This Move-In Ready home in Rivella is located in Port St. Lucie. Some home images may contain additional upgrades, finishes and/or features not included. Floorplan shown is base model and may not include structural options in this home.
May also be listed on the Kolter Homes website
Information last verified by Jome: Wednesday at 6:48 AM (February 18, 2026)
Home details
- Property status:
- Sold
- Size:
- 2,853 sqft
- Stories:
- 1
- Beds:
- 4
- Baths:
- 3
- Garage spaces:
- 2
Construction details
- Builder Name:
- Kolter Homes
- Completion Date:
- October, 2025
Home features & finishes
- Garage/Parking:
- GarageAttached Garage
- Interior Features:
- Ceiling-HighWalk-In Closet
- Laundry facilities:
- Utility/Laundry Room
- Property amenities:
- BasementLanaiSmart Home System
- Rooms:
- Flex RoomPrimary Bedroom On MainKitchenOffice/StudyDining RoomFamily RoomPrimary Bedroom Downstairs

Community details
Rivella
by Kolter Homes, Port St. Lucie, FL
- 10 homes
- 1,494 - 2,395 sqft
View Rivella details
More homes in Rivella
- Home at address 108 Se Via, Port St. Lucie, FL 34952

$610,000
Move-in ready- 4 bd
- 3 ba
- 2,395 sqft
108 Se Via, Port St. Lucie, FL 34952
- Home at address 108 Se Via Tirso, Port St. Lucie, FL 34952

$610,000
Move-in ready- 4 bd
- 3 ba
- 2,165 sqft
108 Se Via Tirso, Port St. Lucie, FL 34952
About the builder - Kolter Homes
Neighborhood
Home address
- City:
- Port St. Lucie
- County:
- St. Lucie
- Zip Code:
- 34952
Schools in St. Lucie County School District
GreatSchools’ Summary Rating calculation is based on 4 of the school’s themed ratings, including test scores, student/academic progress, college readiness, and equity. This information should only be used as a reference. Jome is not affiliated with GreatSchools and does not endorse or guarantee this information. Please reach out to schools directly to verify all information and enrollment eligibility. Data provided by GreatSchools.org © 2025
Places of interest
Getting around
Air quality
Noise level
A Soundscore™ rating is a number between 50 (very loud) and 100 (very quiet) that tells you how loud a location is due to environmental noise.
Financials
Nearby communities in Port St. Lucie
Homes in Port St. Lucie by Kolter Homes
Recently added communities in this area
Other Builders in Port St. Lucie, FL
Nearby sold homes
New homes in nearby cities
More New Homes in Port St. Lucie, FL
- Jome
- New homes search
- Florida
- Treasure Coast
- St. Lucie County
- Port St. Lucie
- Rivella
- 233 Se Via, Port St. Lucie, FL 34952



































































