














Book your tour. Save an average of $18,473. We'll handle the rest.
- Confirmed tours
- Get matched & compare top deals
- Expert help, no pressure
- No added fees
Estimated value based on Jome data, T&C apply
























- 4 bd
- 2 ba
- 1,954 sqft
3113 Nighthawk Ave, Palm Bay, FL 32908
Why tour with Jome?
- No pressure toursTour at your own pace with no sales pressure
- Expert guidanceGet insights from our home buying experts
- Exclusive accessSee homes and deals not available elsewhere
Jome is featured in
- Single-Family
- Quick move-in
- $203.68/sqft
- 0.25-acre lot
Home description
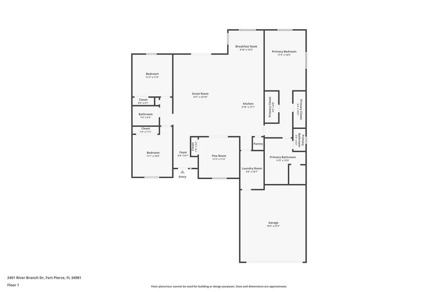
Move right in to this stunning 4/2 new construction home loaded with upgrades throughout. Featuring an open-concept layout, modern kitchen with upgraded countertops and stainless steel appliances, impact windows, high-end finishes, and a flex room, this home blends style and comfort seamlessly.The spacious primary suite includes a walk-in closet and a spa-style bath with dual vanities and a beautifully tiled shower and soaking tub. Enjoy peace of mind with a brand-new roof, AC, plumbing, and electrical systems. The covered patio and large backyard are perfect for relaxing or entertaining.Located in a quiet Palm Bay neighborhood close to shopping, dining, and I-95 access. No HOA, move-in ready, and built to impress.
Southern Key Realty, MLS R11130516
Information last verified by Jome: Today at 10:00 AM (December 24, 2025)
Home highlights
Scenic coastal park with surfing, fishing, and wildlife watching where Indian River meets the Atlantic.
Book your tour. Save an average of $18,473. We'll handle the rest.
We collect exclusive builder offers, book your tours, and support you from start to housewarming.
- Confirmed tours
- Get matched & compare top deals
- Expert help, no pressure
- No added fees
Estimated value based on Jome data, T&C apply
Home details
- Property status:
- Move-in ready
- Lot size (acres):
- 0.25
- Size:
- 1,954 sqft
- Stories:
- 1
- Beds:
- 4
- Baths:
- 2
- Garage spaces:
- 2
Construction details
- Year Built:
- 2025
Home features & finishes
- Cooling:
- Central Air
- Flooring:
- Vinyl FlooringTile Flooring
- Garage/Parking:
- GarageAttached Garage
- Interior Features:
- Walk-In ClosetPantryGarden TubSeparate Shower
- Kitchen:
- DishwasherMicrowave OvenRefrigeratorDouble SinkKitchen Range
- Pets:
- Pets Allowed
- Rooms:
- Primary Bedroom On MainPrimary Bedroom Downstairs

Get a consultation with our New Homes Expert
- See how your home builds wealth
- Plan your home-buying roadmap
- Discover hidden gems
Utility information
- Heating:
- Central Heating
Neighborhood
Home address
Schools in Brevard County School District
GreatSchools’ Summary Rating calculation is based on 4 of the school’s themed ratings, including test scores, student/academic progress, college readiness, and equity. This information should only be used as a reference. Jome is not affiliated with GreatSchools and does not endorse or guarantee this information. Please reach out to schools directly to verify all information and enrollment eligibility. Data provided by GreatSchools.org © 2025
Places of interest
Getting around
Air quality
Noise level
A Soundscore™ rating is a number between 50 (very loud) and 100 (very quiet) that tells you how loud a location is due to environmental noise.
Natural hazards risk
Climate hazards can impact homes and communities, with risks varying by location. These scores reflect the potential impact of natural disasters and climate-related risks on Brevard County
Provided by FEMA

Considering this home?
Our expert will guide your tour, in-person or virtual
Need more information?
Text or call (888) 486-2818
Financials
Let us help you find your dream home
How many bedrooms are you looking for?
Similar homes nearby
Recently added communities in this area
Nearby communities in Palm Bay
New homes in nearby cities
More New Homes in Palm Bay, FL
Southern Key Realty, MLS R11130516
All listings featuring the BMLS logo are provided by BeachesMLS, Inc. This information is not verified for authenticity or accuracy and is not guaranteed. Information is provided exclusively for consumers’ personal, non-commercial use and may not be used for any purpose other than to identify prospective properties consumers may be interested in purchasing. Copyright © 2025 BeachesMLS, Inc.
Read moreLast checked Dec 24, 12:00 pm
- Jome
- New homes search
- Florida
- Space Coast
- Brevard County
- Palm Bay
- 3113 Nighthawk Ave, Palm Bay, FL 32908
























