














Book your tour. Save an average of $18,473. We'll handle the rest.
We collect exclusive builder offers, book your tours, and support you from start to housewarming.
- Confirmed tours
- Get matched & compare top deals
- Expert help, no pressure
- No added fees
Estimated value based on Jome data, T&C apply














- 4 bd
- 3.5 ba
- 2,211 sqft
41 Ne 24Th St, Wilton Manors, FL 33305
Why tour with Jome?
- No pressure toursTour at your own pace with no sales pressure
- Expert guidanceGet insights from our home buying experts
- Exclusive accessSee homes and deals not available elsewhere
Jome is featured in
- Single-Family
- Quick move-in
- $766.62/sqft
- South facing
Home description
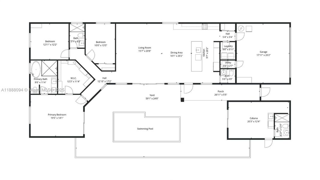
This modern new construction home outside flood zone offers 4 bedrooms, including a detached cabana with kitchenette and ensuite bath that doubles as a proven income generator. Open, loft-like interiors with soaring ceilings create a bright, minimalist backdrop. The chef’s kitchen is both stylish and functional, featuring quartzite counters and a 10' island that anchors the living area. The primary suite feels like a retreat, with a massive walk-in closet and spa bath showcasing Italian fixtures, including the Rapsel Arne soaking tub and Fantini dual showers. Outdoors, enjoy a heated saltwater pool and lush gardens. Solid concrete construction, impact glass, solar panels, EV charger, elevated from the street—and just minutes to Wilton Drive. Low insurance cost + Two-car garage.
Maz Group FL LLC, MLS A11888094
Information last verified by Jome: Today at 12:04 AM (February 21, 2026)
Book your tour. Save an average of $18,473. We'll handle the rest.
We collect exclusive builder offers, book your tours, and support you from start to housewarming.
- Confirmed tours
- Get matched & compare top deals
- Expert help, no pressure
- No added fees
Estimated value based on Jome data, T&C apply
Home details
- Property status:
- Move-in ready
- Lot size (acres):
- 0.14
- Size:
- 2,211 sqft
- Stories:
- 1
- Beds:
- 4
- Baths:
- 3
- Half baths:
- 1
- Garage spaces:
- 2
- Facing direction:
- South
Construction details
- Roof:
- Concrete Roofing
Home features & finishes
- Construction Materials:
- Concrete
- Cooling:
- Central Air
- Garage/Parking:
- Door OpenerGarageAttached Garage
- Home amenities:
- Solar PanelsGreen Construction
- Interior Features:
- Walk-In Closet
- Kitchen:
- DishwasherDisposal
- Laundry facilities:
- Dryer
- Property amenities:
- Patio
- Rooms:
- Primary Bedroom On MainGuest RoomDining RoomLiving RoomPrimary Bedroom Downstairs

Get a consultation with our New Homes Expert
- See how your home builds wealth
- Plan your home-buying roadmap
- Discover hidden gems
Utility information
- Heating:
- Water Heater, Central Heating
Neighborhood
Home address
- City:
- Wilton Manors
- County:
- Broward
- Zip Code:
- 33305
Schools in Broward County School District
- Grades 06-08Chartersomerset academy village charter middle school0.4 mi225 northwest 29th street7/10
GreatSchools’ Summary Rating calculation is based on 4 of the school’s themed ratings, including test scores, student/academic progress, college readiness, and equity. This information should only be used as a reference. Jome is not affiliated with GreatSchools and does not endorse or guarantee this information. Please reach out to schools directly to verify all information and enrollment eligibility. Data provided by GreatSchools.org © 2025
Places of interest
Getting around
Air quality
Natural hazards risk
Provided by FEMA

Considering this home?
Our expert will guide your tour, in-person or virtual
Need more information?
Text or call (888) 488-9243
Financials
Estimated monthly payment
Let us help you find your dream home
How many bedrooms are you looking for?
Similar homes nearby
Recently added communities in this area
Nearby communities in Wilton Manors
New homes in nearby cities
More New Homes in Wilton Manors, FL
Maz Group FL LLC, MLS A11888094
IDX information is provided exclusively for personal, non-commercial use, and may not be used for any purpose other than to identify prospective properties consumers may be interested in purchasing. Information is deemed reliable but not guaranteed.
Read moreLast checked Feb 21, 6:20 pm
- Jome
- New homes search
- Florida
- Miami Metropolitan Area
- Broward County
- Wilton Manors
- 41 Ne 24Th St, Wilton Manors, FL 33305
























