



Book your tour. Save an average of $18,473. We'll handle the rest.
- Confirmed tours
- Get matched & compare top deals
- Expert help, no pressure
- No added fees
Estimated value based on Jome data, T&C apply
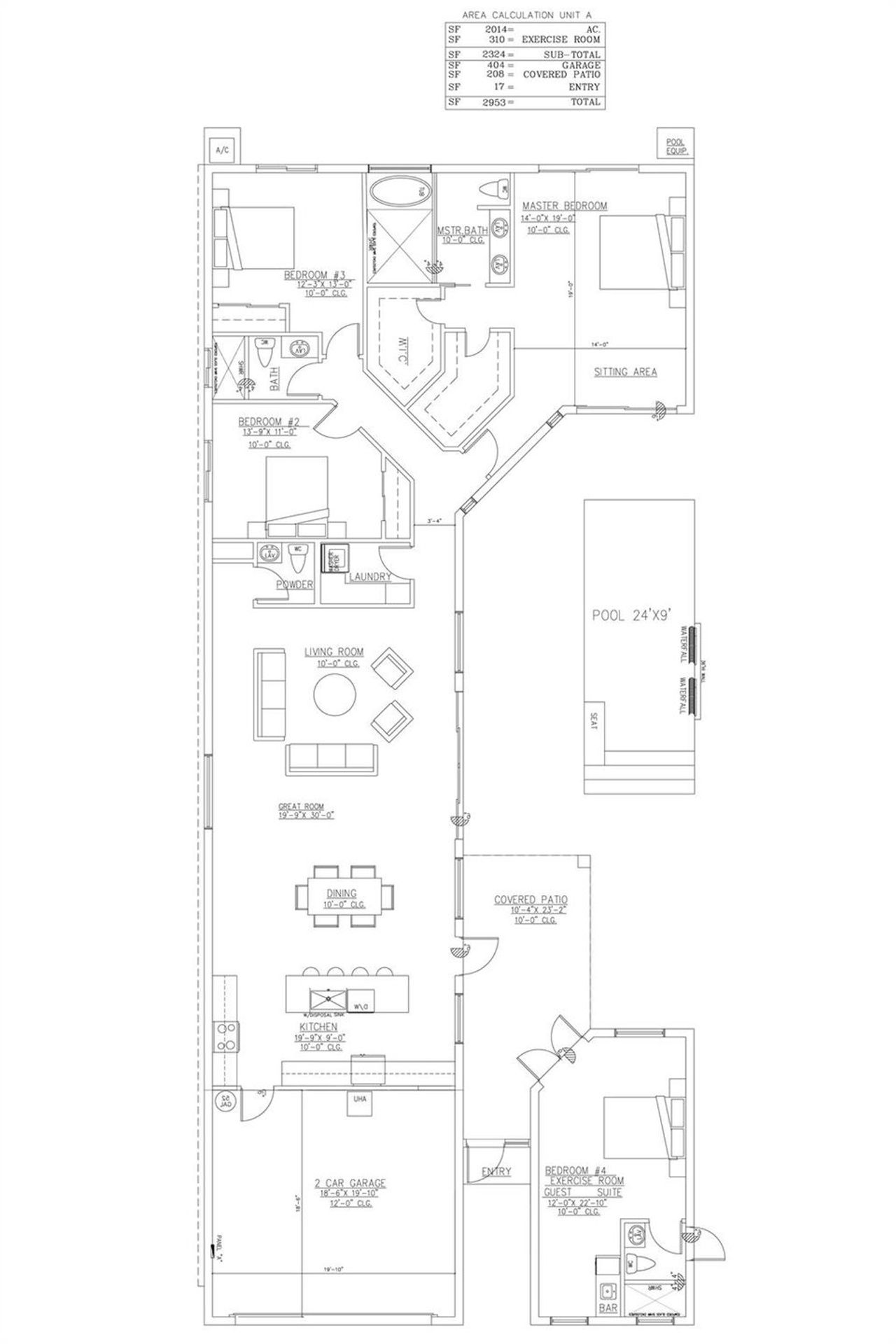
- 4 bd
- 4 ba
- 2,324 sqft
1520 Ne 1St Ave, Fort Lauderdale, FL 33304
Why tour with Jome?
- No pressure toursTour at your own pace with no sales pressure
- Expert guidanceGet insights from our home buying experts
- Exclusive accessSee homes and deals not available elsewhere
Jome is featured in
- Single-Family
- Under construction
- $839.07/sqft
- West facing
Home description
BRAND NEW CONSTRUCTION STEEL FRAME HOME WITH CONCRETE ROOF - With a 30 X 19 Great Room and 10 foot ceilings throughout this home is a masterpiece for those looking to entertain and enjoy the South Florida Lifestyle with friends and family. Four bedrooms and three and a half baths surround a tropical courtyard built for entertaining. The fourth bedroom connected via a covered patio is a perfect workout room, home office, of ideal suite as a short tern rental. The flexibility of this floor plan makes this a dream property for anyone looking to upgrade their Florida Lifestyle. Within 10 minutes of the beach, downtown Fort Lauderdale and a shorter distance to Wilton Drive this area is about to see major development. You won't be the first incredible home built but you can be the next.
EXP Realty LLC, MLS F10514885
Information last verified by Jome: Today at 10:56 AM (December 30, 2025)
Home highlights
Lively Hallandale Beach destination blending horse racing, dining, shopping, and events in a walkable village setting.
Book your tour. Save an average of $18,473. We'll handle the rest.
We collect exclusive builder offers, book your tours, and support you from start to housewarming.
- Confirmed tours
- Get matched & compare top deals
- Expert help, no pressure
- No added fees
Estimated value based on Jome data, T&C apply
Home details
- Property status:
- Under construction
- Neighborhood:
- South Middle River
- Lot size (acres):
- 0.16
- Size:
- 2,324 sqft
- Stories:
- 1
- Beds:
- 4
- Baths:
- 4
- Half baths:
- 1
- Garage spaces:
- 2
- Facing direction:
- West
Construction details
- Year Built:
- 2025
- Roof:
- Concrete Roofing
Home features & finishes
- Cooling:
- Central Air
- Flooring:
- Tile Flooring
- Garage/Parking:
- GarageAttached Garage
- Interior Features:
- Walk-In Closet
- Kitchen:
- DishwasherMicrowave OvenDisposalSelf Cleaning Oven
- Laundry facilities:
- DryerWasherUtility/Laundry Room
- Pets:
- Pets Allowed
- Property amenities:
- CourtyardPatio
- Rooms:
- Primary Bedroom On MainPrimary Bedroom Downstairs

Get a consultation with our New Homes Expert
- See how your home builds wealth
- Plan your home-buying roadmap
- Discover hidden gems
Utility information
- Heating:
- Electric Heating, Central Heating
Community amenities
- Garden View
- Waterfront View
Neighborhood
Home address
- Neighborhood:
- South Middle River
- City:
- Fort Lauderdale
Schools in Broward County School District
GreatSchools’ Summary Rating calculation is based on 4 of the school’s themed ratings, including test scores, student/academic progress, college readiness, and equity. This information should only be used as a reference. Jome is not affiliated with GreatSchools and does not endorse or guarantee this information. Please reach out to schools directly to verify all information and enrollment eligibility. Data provided by GreatSchools.org © 2025
Places of interest
Getting around
7 nearby routes: 7 bus, 0 rail, 0 otherAir quality
Natural hazards risk
Climate hazards can impact homes and communities, with risks varying by location. These scores reflect the potential impact of natural disasters and climate-related risks on Broward County
Provided by FEMA

Considering this home?
Our expert will guide your tour, in-person or virtual
Need more information?
Text or call (888) 486-2818
Financials
Let us help you find your dream home
How many bedrooms are you looking for?
Similar homes nearby
Recently added communities in this area
Nearby communities in Fort Lauderdale
New homes in nearby cities
More New Homes in Fort Lauderdale, FL
EXP Realty LLC, MLS F10514885
All listings featuring the BMLS logo are provided by BeachesMLS, Inc. This information is not verified for authenticity or accuracy and is not guaranteed. Information is provided exclusively for consumers’ personal, non-commercial use and may not be used for any purpose other than to identify prospective properties consumers may be interested in purchasing. Copyright © 2025 BeachesMLS, Inc.
Read moreLast checked Dec 30, 7:36 pm
- Jome
- New homes search
- Florida
- Miami Metropolitan Area
- Broward County
- Fort Lauderdale
- 1520 Ne 1St Ave, Fort Lauderdale, FL 33304


























