






































- 4 bd
- 2 ba
- 2,108 sqft
125 Gray Owl Dr W, Freeport, FL 32439
- Single-Family
- $165.99/sqft
- 112 days on Jome
New Homes for Sale Near 125 Gray Owl Dr W, Freeport, FL 32439
About this Home
About this home
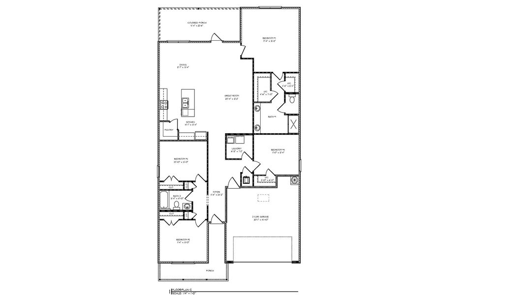
Welcome to 125 W Gray Owl Drive, a new home at Owl's Head Farms in Freeport, Florida. This home is ready for move in and features a covered front porch. Inside you will find a foyer and hall leading to a light-filled open-concept living area with 9' ceilings. The kitchen impresses with quartz countertops, undermount single basin sink and a dedicated water filter faucet. Whirlpool stainless steel appliances, and a large center island with bar seating overlooks the great room. Brushed nickel fixtures are throughout the home and include a lifetime warranty. Adjacent to the kitchen is the dining area perfectly positioned for meals and gatherings, while the living room's wide layout invites relaxation and socializing.
The primary bedroom, set at the back of the home, offers a serene escape with a luxurious bathroom featuring a double vanity, a walk-in shower, and two generously sized walk-in closets. Three additional bedrooms and a full bathroom are in a separate area, ensuring privacy for family or guests. You’ll find EVP flooring throughout the main areas of the home, allowing for a seamless transition and carpet in each bedroom.
Rounding out the home is an oversized covered back patio, ideal for enjoying Florida’s sunny days, and a convenient laundry room.
May also be listed on the D.R. Horton website
Information last verified by Jome: Wednesday at 4:29 AM (December 10, 2025)
Home details
- Property status:
- Sold
- Size:
- 2,108 sqft
- Stories:
- 1
- Beds:
- 4
- Baths:
- 2
- Garage spaces:
- 2
Construction details
- Builder Name:
- D.R. Horton
Home features & finishes
- Garage/Parking:
- GarageAttached Garage
- Interior Features:
- Walk-In ClosetFoyer
- Laundry facilities:
- Utility/Laundry Room
- Property amenities:
- Porch
- Rooms:
- Primary Bedroom On MainKitchenDining RoomFamily RoomPrimary Bedroom Downstairs

Community details
Owl's Head Farms
by D.R. Horton, Freeport, FL
- 12 homes
- 11 plans
- 1,458 - 2,831 sqft
View Owl's Head Farms details
More homes in Owl's Head Farms
- Home at address 31 Gray Owl Dr E, Freeport, FL 32439

$357,900
Move-in ready- 4 bd
- 2 ba
- 1,856 sqft
31 Gray Owl Dr E, Freeport, FL 32439
- Home at address 11 Gray Owl Dr W, Freeport, FL 32439

$362,685
Move-in ready- 4 bd
- 2 ba
- 1,856 sqft
11 Gray Owl Dr W, Freeport, FL 32439
- Home at address 80 Gray Owl Dr W, Freeport, FL 32439

$367,950
Move-in ready- 4 bd
- 2 ba
- 2,108 sqft
80 Gray Owl Dr W, Freeport, FL 32439
- Home at address 16 Gray Owl Dr W, Freeport, FL 32439

$406,900
Move-in ready- 4 bd
- 2 ba
- 2,108 sqft
16 Gray Owl Dr W, Freeport, FL 32439
- Home at address 39 Gray Owl Dr E, Freeport, FL 32439

$407,900
Move-in ready- 4 bd
- 2 ba
- 2,108 sqft
39 Gray Owl Dr E, Freeport, FL 32439
- Home at address 36 Gray Owl Dr E, Freeport, FL 32439

$414,255
Move-in ready- 4 bd
- 2 ba
- 2,108 sqft
36 Gray Owl Dr E, Freeport, FL 32439
Floor plans in Owl's Head Farms
About the builder - D.R. Horton

- 1,202communities on Jome
- 8,971homes on Jome
Neighborhood
Home address
Schools in Walton County School District
- Grades 07-12Privatewestonwood ranch6.6 mi4390 state highway 20 wna
GreatSchools’ Summary Rating calculation is based on 4 of the school’s themed ratings, including test scores, student/academic progress, college readiness, and equity. This information should only be used as a reference. Jome is not affiliated with GreatSchools and does not endorse or guarantee this information. Please reach out to schools directly to verify all information and enrollment eligibility. Data provided by GreatSchools.org © 2025
Places of interest
Getting around
Financials
Nearby communities in Freeport
Homes in Freeport by D.R. Horton
Recently added communities in this area
Other Builders in Freeport, FL
Nearby sold homes
New homes in nearby cities
More New Homes in Freeport, FL
- Jome
- New homes search
- Florida
- Walton County
- Freeport
- Owl's Head Farms
- 125 Gray Owl Dr W, Freeport, FL 32439







































































